Knus vakantiehuis met zeezicht nabij strand en winkels

Ballen Strandpark 19 A - Ballen - 8305 - Samsø

Objectnr: 101-20423
Gezellig vakantiehuis in Ballen met zeezicht, vlak bij strand en supermarkt, perfect voor een ontspannen verblijf.
  • Personen
    4 personen
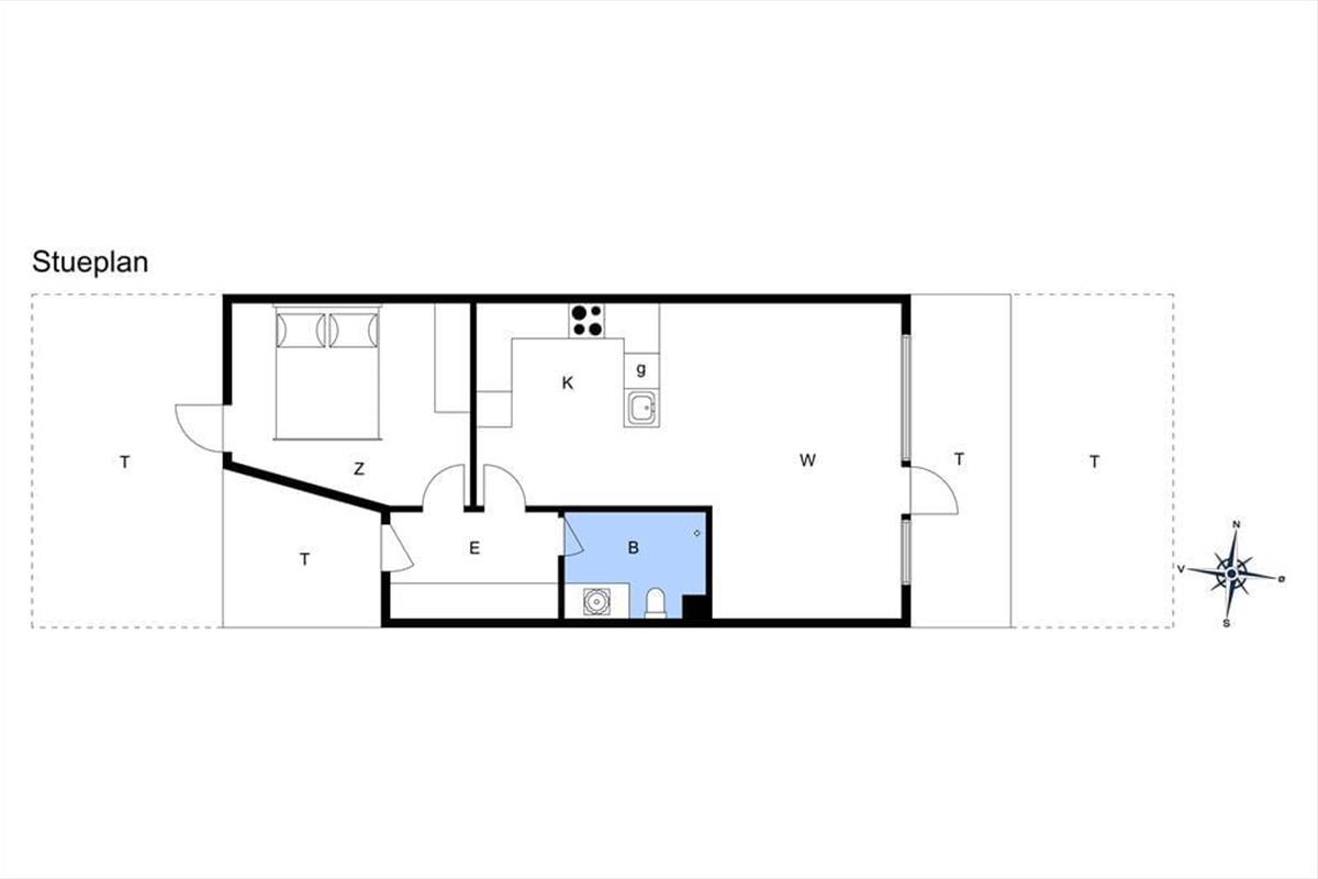
  • Slaapkamers2 Slaapkamers
  • Badkamers1 Badkamers
  • Woonoppervlakte72 m² Woonoppervlakte
  • HuisdierenNiet toegestaan Huisdieren

Beschrijving

Vakantiehuis in Ballen, Oost-Jutland, met plaats voor 4 volwassenen. De woning heeft een gezellig interieur, en beschikt daarnaast over een wasmachine en een vaatwasser.
Als u deze vakantiewoning huurt, heeft u toegang tot internet. Het is 100 meter naar het dichtstbijzijnde strand en 300 meter naar de dichtstbijzijnde supermarkt.
De woning heeft een oppervlakte van 72 m² en ligt op een 0 m² groot perceel.
7 nachten
Vanaf 650,-
Incl. schoonmaak en verzekering
4 personen

Prijzen en kalender

Duur
Personen
Aankomst
Vorige Volgende
   Kijk of het object beschikbaar is op de geselecteerde datum
Vrij
Bezet
   Aankomst mogelijk

Prijs

Periode
Aankomst
Vertrek
Duur
1 week
Personen
Geen personen geselecteerd

Let op

Aankomst is niet geselecteerd.
Er zijn geen personen geselecteerd.
Contract- en huurvoorwaarden

Indeling & inrichting

Ligging & omgeving

Locatie pin Kaart Denemarken

Klantenservice

Stel ons een vraag over dit object

Klik hier om ons een vraag over dit object te sturen.