Agersnerlevej - Begtrup Vig - 8420 - Knebel

Objectnr: 048-8241
  • Personen
    7 personen
    waarvan 1 kind (0-11 jaar)
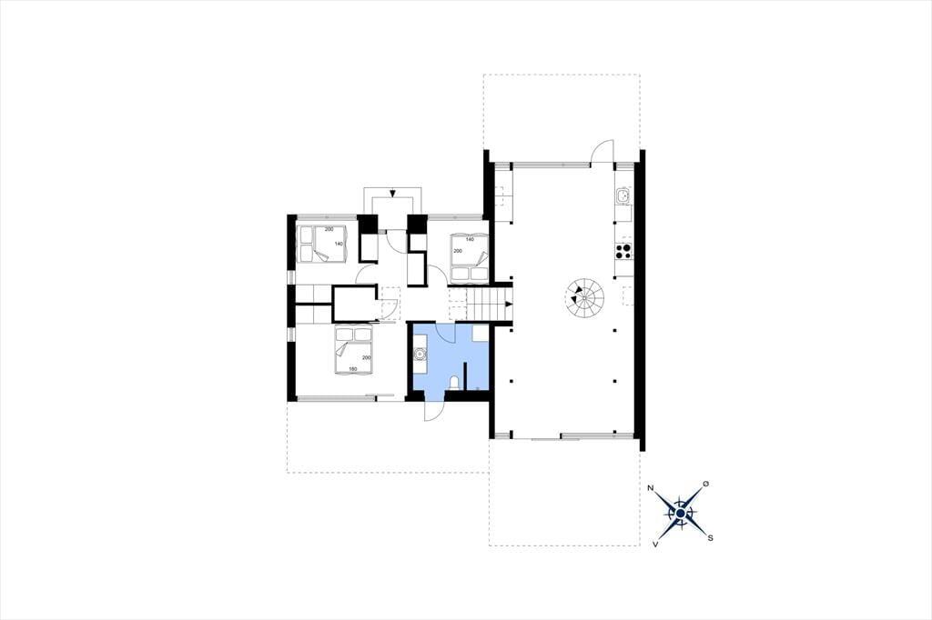
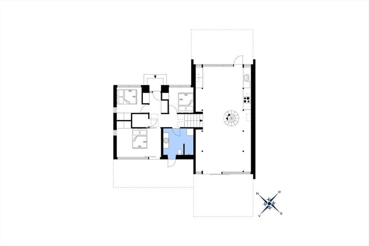
  • Slaapkamers3 Slaapkamers
  • Badkamers1 Badkamers
  • Woonoppervlakte139 m² Woonoppervlakte
  • HuisdierenNiet toegestaan Huisdieren

Beschrijving

De beschrijving is helaas niet beschikbaar in het Nederlands. Bekijk de tekst hieronder in het Duits of bekijk de automatisch vertaalde tekst in Nederlands.

Nur 200 Meter vom schönen, kinderfreundlichen Sandstrand in der Begtrup Vig liegt dieses kleine Ferienjuwel, das 2024 umfassend renoviert und mit einem neuen Anbau erweitert wurde. Das Haus und die Terrassen sind von Bäumen und Büschen umgeben und liegen wunderbar windgeschützt – auf der Südterrasse kannst du bereits im frühen Frühling die Sonne genießen. Große Fenster, helle Räume und eine stilvolle Einrichtung auf drei charmanten Ebenen sorgen für eine ganz besondere Atmosphäre. Vom Haus aus hast du einen herrlichen Blick über die Begtrup Vig – mitten im Nationalpark Mols Bjerge.

Willkommen in deinem Ferienhaus

Wenn du das Haus betrittst, empfängt dich ein einladendes, geschmackvolles Zuhause mit liebevollen Details. In der Wohnküche wurden die alten Holzbalken erhalten, die dem Raum seinen besonderen Charakter verleihen. Die sanften, pudrigen Farbtöne in den Fluren und Schlafzimmern harmonieren wunderbar miteinander und stehen im schönen Kontrast zu den massiven Eichenholzdielen. Durch die clevere Aufteilung auf drei Ebenen sowie Dachfenster, schräge Fenster und Deckenfenster wird das gesamte Haus von morgens bis abends mit natürlichem Licht durchflutet. Die neue Küche (inkl. Geschirrspüler) bietet alles, was du brauchst, und grenzt an einen gemütlichen Essbereich. Von hier aus gelangst du direkt auf die nordöstlich gelegene Terrasse mit Blick in den Wald – mit etwas Glück kannst du hier Eichhörnchen beobachten oder ein Reh entdecken. Das Wohnzimmer ist hell und offen gestaltet, mit großen Fenstern und Zugang zu einer weiteren südlich ausgerichteten Terrasse – perfekt, um den Vögeln zu lauschen oder den Kindern beim Spielen auf dem Naturgrundstück zuzusehen. Das Haus verfügt über drei Schlafzimmer mit Doppelbetten und bietet Platz für sechs Erwachsene und ein Kind. Im Obergeschoss erwartet dich eine gemütliche Leseecke mit Panoramablick – ideal zum Entspannen mit einem guten Buch. Das geräumige Badezimmer ist mit Dusche, Waschmaschine und Trockner ausgestattet – und von hier aus gelangst du direkt auf eine weitere Südterrasse mit Außendusche. Ideal für eine erfrischende Dusche nach dem Strandbesuch!

Genieße das Leben im Freien
Mit mehreren schönen Terrassen rund ums Haus gibt es viele Möglichkeiten, das Leben draußen in vollen Zügen zu genießen. Auf der einen Terrasse kannst du mit Blick in den Wald entspannen, auf der anderen gemütlich essen und lange Sommerabende verbringen. Das Naturgrundstück lädt zum Abschalten, Träumen oder Spielen ein. Und in nur zwei Gehminuten stehst du am Strand – oft ganz für dich allein – mit freiem Blick über die Bucht. Perfekt für ein Bad, einen Spaziergang, Spiel oder einfach zum Seele baumeln lassen.

Entdecke deine Umgebung
Begtrup Vig ist ein ruhiges, idyllisches Feriengebiet mit feinem Sandstrand und flachem Wasser – perfekt für Familien mit Kindern. Du befindest dich mitten in der Nähe des Nationalparks Mols Bjerge, wo dich atemberaubende Naturkulissen zum Wandern oder Radfahren einladen. In Fahrradreichweite erreichst du Highlights wie Helgenæs, das Gut Isgård oder Skødshoved – Orte, an denen die Natur noch wild und vom letzten Eiszeitalter Dänemarks geformt ist. Pack den Picknickkorb – oder halte unterwegs Ausschau nach kleinen Eisläden, Hofläden und charmanten Landcafés. Nur etwa 20 Autominuten entfernt liegt das malerische Ebeltoft, wo du das Alte Rathaus besichtigen, durch die gemütlichen Straßen bummeln oder in einem der vielen Restaurants essen kannst. Am Hafen bekommst du frisch gefangenen Fisch oder moderne Glaskunst im Glasmuseum zu sehen. Für Familien mit Kindern lohnen sich Tagesausflüge in den Ree Park Safari, ins Kattegatcenter oder ins Djurs Sommerland – alles innerhalb von 30 Minuten erreichbar.

Viele weitere Tipps für deinen Urlaub findest du hier: https://issuu.com/erhverv_djursland/docs/djursland_turistguide_2025

Dieses Ferienhaus ist die perfekte Wahl für dich, wenn du von einem Urlaub in herrlicher Natur träumst – nah am Strand, umgeben von Ruhe und mit vielen spannenden Erlebnissen ganz in der Nähe.


Raumaufteilung

  • Schlafzimmer
    • Doppelbett - 140*200
  • Schlafzimmer
    • Doppelbett - 180*200
  • Schlafzimmer
    • Doppelbett - 140*200
7 nachten
Vanaf 1.610,-
Incl. schoonmaak en verzekering

Prijzen en kalender

Duur
Aankomst
Vorige Volgende
  • juni 2026
    madiwodovrzazo
    231234567
    24891011121314
    2515161718192021
    2622232425262728
    272930
    28
  • juli 2026
    madiwodovrzazo
    2712345
    286789101112
    2913141516171819
    3020212223242526
    312728293031
    32
   Kijk of het object beschikbaar is op de geselecteerde datum
Vrij
Bezet
   Aankomst mogelijk

Prijs

Periode
Aankomst
Vertrek
Duur
1 week
Personen
Tot 7 personen
waarvan 1 kind (0-11 jaar)

Let op

Aankomst is niet geselecteerd.
Contract- en huurvoorwaarden

Indeling & inrichting

Ligging & omgeving

Locatie pin Kaart Denemarken

Onze gastbeoordelingen Externe beoordelingen

5,0 gemiddeld 1 waardering
5
(1)
4
(0)
3
(0)
2
(0)
1
(0)

Opmerkingen

Geen beoordelingen hebben commentaar.

Klantenservice

Stel ons een vraag over dit object

Klik hier om ons een vraag over dit object te sturen.