Bjerregårdsvej - Bjerregård - 6960 - Hvide Sande

Objectnr: 328-807371
  • Personen
    6 personen
  • Slaapkamers3 Slaapkamers
  • Badkamers1 Badkamers
  • Woonoppervlakte93 m² Woonoppervlakte
  • Huisdieren1 Huisdieren

Beschrijving

De beschrijving is helaas niet beschikbaar in het Nederlands. Bekijk de tekst hieronder in het Engels of bekijk de automatisch vertaalde tekst in Nederlands.

This holiday home is situated on a peaceful natural plot, directly adjacent to a protected heathland area. The holiday home is spacious and well-appointed with large windows allowing plenty of natural light. It's ideal for families with children, featuring a swing and sandpit.

Well-equipped holiday home

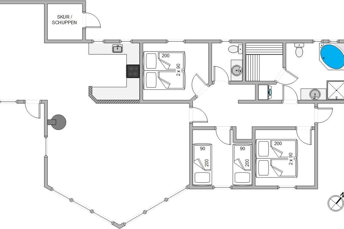
The 1,001 sq ft (93 m²) holiday home comprises a kitchen/living room, three bedrooms, two bathrooms and a hallway. The living room is wonderfully bright with a vaulted ceiling and features a cosy corner with a sleeping alcove. There are three bedrooms, two with double beds and one with twin beds. With two additional sleeping spaces in the alcove, the house accommodates up to eight people. Most floors are carpeted, while the kitchen has wooden flooring and the bathroom features heated tile flooring. The large bathroom is tastefully fitted with black tiles, a beautiful whirlpool, an excellent shower enclosure and a spacious sauna. Free WiFi is available, and the holiday home includes a wood-burning stove, dishwasher and washing machine.

Perfect for families with children

The holiday home is well-suited for families with children. There's a swing and sandpit in the grounds. For rainy days, the house even includes a PlayStation 4. Legoland is just an hour's drive away. There are numerous fishing opportunities and shopping facilities in Hvide Sande or Ringkøbing.

This outstanding holiday home stands on a beautiful and peaceful natural plot.

The electric car charging facility is a Type 2 charging point, available for overnight use only.

7 nachten
Vanaf 534,-

Prijzen en kalender

Duur
Aankomst
Vorige Volgende
  • januari 2026
    madiwodovrzazo
    11234
    2567891011
    312131415161718
    419202122232425
    5262728293031
    6
  • februari 2026
    madiwodovrzazo
    51
    62345678
    79101112131415
    816171819202122
    9232425262728
    10
   Kijk of het object beschikbaar is op de geselecteerde datum
Vrij
Bezet
   Aankomst mogelijk

Prijs

Periode
Aankomst
Vertrek
Duur
1 week
Personen
Tot 6 personen

Let op

Aankomst is niet geselecteerd.
Contract- en huurvoorwaarden

Indeling & inrichting

Ligging & omgeving

Locatie pin Kaart Denemarken

Klantenservice

Stel ons een vraag over dit object

Klik hier om ons een vraag over dit object te sturen.