Sejlet - 4793 - Bogø

Objectnr: 034-7025
  • Personen
    4 personen
  • Slaapkamers2 Slaapkamers
  • Badkamers1 Badkamers
  • Woonoppervlakte51 m² Woonoppervlakte
  • HuisdierenNiet toegestaan Huisdieren

Beschrijving

De beschrijving is helaas niet beschikbaar in het Nederlands. Bekijk de tekst hieronder in het Deens of bekijk de automatisch vertaalde tekst in Nederlands.

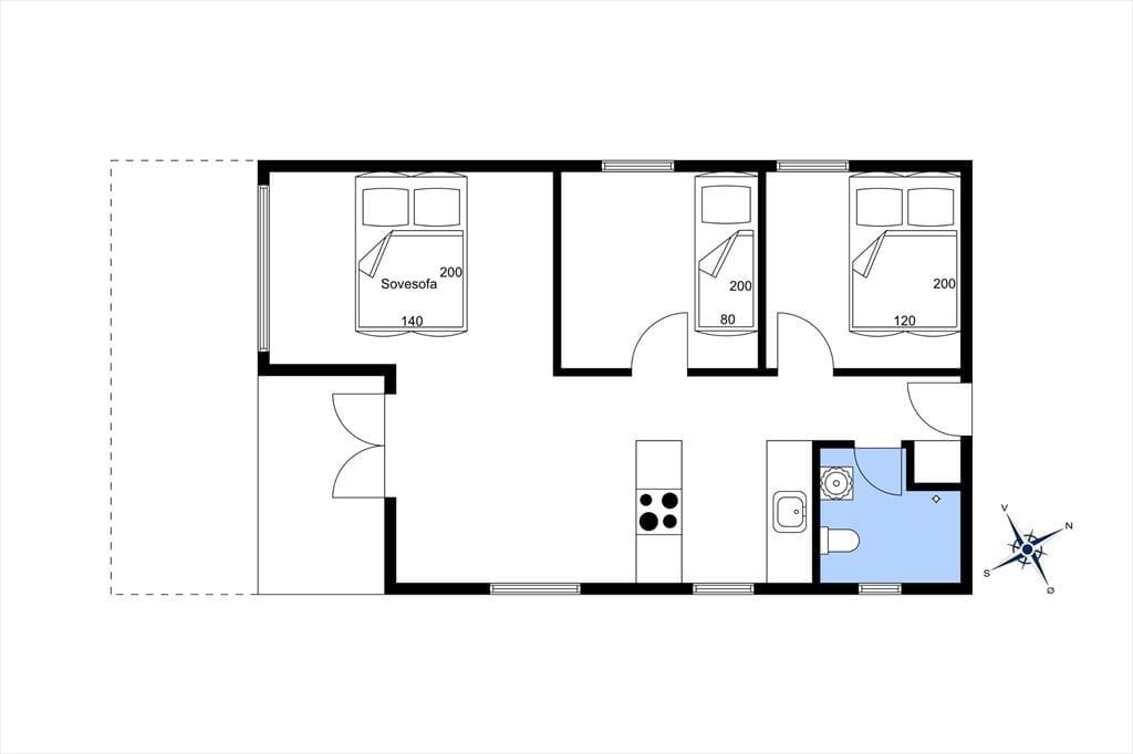
Huset er hyggeligt indrettet i lyse farver.
Entré.

Badeværelse med toilet, håndvask og bruseniche.

1 værelse med 1 dobbeltseng.

Fra entreen kommer man ind i køkkenet som indeholder komfur med ovn, emhætte, elkedel, samt køleskab og fryser.
Stue er indrettet med 1 dobbeltsovesofa, TV (vær opmærksom på at man kun kan streame via chromecast), spiseplads og udgang til terrassen. Skøn havudsigt fra stuen og terrassen. Ikke-ryger-hus.

Der er adgang til endnu 1 værelse med en enkeltseng.
Træterrasse på 19 m2 og 4 m2 overdækket terrasse. 
Huset ligger tæt på lille sti-stystem, som bl.a. fører op til Bogø Mølle. 
På terrassen kan man sidde og nyde udsigten over Grønsund, Bogø Færgen eller den
lille eng hvor fårene græsser.


Beskrivelse af området:
Feriehuset ligger på Bogø – en lille ø med mange facetter. Skal du bade er der badebro ved Skåninge hvor du også kan nyde solnedgangen. Huset ligger tæt på Bogø Havn, hvor der ligger en rigtig italiensk pizzabager. Her kan man købe de dejligste pizza’er, og det skønneste italienske brød. Færgen ”Ida” sejler om sommeren mellem Bogø og Stubbekøbing.


Bogø er forbundet til Møn med en dæmning. 
Møn byder på mange udflugtsmuligheder og vandreture, heriblandt Camønoen.
I Stege findes caféer og restauranter og mange spændende butikker og indkøbsmuligheder.



Rumindretning

  • Soveværelse
    • Enkelt seng
  • Soveværelse
    • Dobbeltseng
7 nachten
Vanaf 825,-
Incl. schoonmaak en verzekering

Prijzen en kalender

Duur
Aankomst
Vorige Volgende
  • juli 2026
    madiwodovrzazo
    2712345
    286789101112
    2913141516171819
    3020212223242526
    312728293031
    32
  • augustus 2026
    madiwodovrzazo
    3112
    323456789
    3310111213141516
    3417181920212223
    3524252627282930
    3631
   Kijk of het object beschikbaar is op de geselecteerde datum
Vrij
Bezet
   Aankomst mogelijk

Prijs

Periode
Aankomst
Vertrek
Duur
1 week
Personen
Tot 4 personen

Let op

Aankomst is niet geselecteerd.
Contract- en huurvoorwaarden

Indeling & inrichting

Ligging & omgeving

Locatie pin Kaart Denemarken

Klantenservice

Stel ons een vraag over dit object

Klik hier om ons een vraag over dit object te sturen.