Bork Hytteby - Bork Havn - 6893 - Hemmet Strand

Objectnr: 074-C11083
  • Personen
    5 personen
  • Slaapkamers2 Slaapkamers
  • Badkamers1 Badkamers
  • Woonoppervlakte50 m² Woonoppervlakte
  • Huisdieren1 Huisdieren

Beschrijving

De beschrijving is helaas niet beschikbaar in het Nederlands. Bekijk de tekst hieronder in het Duits of bekijk de automatisch vertaalde tekst in Nederlands.

Hier in der Straße Bork Hytteby 43 wird drinnen wie draußen jeder Quadratmeter genutzt. Das schöne Ferienhaus ist gepflegt und in wohl durchdachter Weise eingerichtet. Somit werden Sie je nach Laune und Wetterlage stets einen schönen Aufenthaltsplatz finden.

Einrichtung
Eine Wohnfläche von 50 m² klingen im ersten Augenblick vielleicht recht klein. Eigentlich benötigen Sie aber auch nicht mehr Platz, da diese Wohnfläche einen überaus funktionalen und gemütlichen Rahmen für herrliche Urlaubstage bietet. Das Badezimmer empfängt Sie mit einer Dusche, einer Fußbodenheizung und einer Waschmaschine. Die beiden Schlafräume sind mit jeweils einem Doppelbett ausgestattet. Falls Sie weitere Schlafgelegenheiten benötigen, können Sie problemlos die Schlafnische im Wohnraum nutzen, die tagsüber auch als gemütliche Kuschelecke für ein kleines Nickerchen oder auch für eine entspannte Lesestunde mit einem guten Buch dienen kann. Beim Wohnzimmer handelt es sich um einen schönen Aufenthaltsraum mit einer offenen Küche, einem Esstisch, einer Sofaecke und einem Flachbild-TV. Für ein angenehmes Raumklima sorgt die ebenfalls vorhandene Wärmepumpe, die zusätzlich auch über eine Kühlfunktion verfügt.

Außenbereich
Bei sonnigem Wetter wird es Sie hinaus auf die Terrassen ziehen. Dabei genießen Sie die Wahl zwischen einem nach Süden und Osten ausgerichteten Terrassenbereich und einer wunderbar abgeschirmten Terrasse hinter dem Haus, neben der sich auch gleich die Sandkiste für die jüngsten Urlauber befindet.

Lage
Bork Hytteby ist ein ruhiges und familienfreundliches Fleckchen, das erholsame und entspannte Urlaubstage verspricht. Die grüne Bepflanzung schafft eine natürliche Unterteilung zwischen den kleinen Stichwegen. Offene Rasenflächen und Spielplätze bieten viel Platz zum Umhertollen und Spielen. An das Ferienhausgebiet grenzt zudem ein kleiner Sportboothafen, an dem Sie Ihr eigens mitgebrachtes Kajak zu Wasser lassen können. Vom Hafen aus können Sie dann über den Fluss Fahl Å bis auf den Ringkøbing Fjord paddeln. Wer sich lieber auf seinem Surfbrett oder SUP-Board aufs Wasser begeben möchte, der ist am beliebten Surfstrand von Bork Havn bestens aufgehoben. Neben dem Surfstrand lockt der Hafen des beschaulichen Urlaubsortes, in dem Sie einen schönen Blick auf die schaukelnden Segel- und Fischerboote genießen und sich zudem auch kulinarisch verwöhnen lassen können. In Bork Havn gibt es darüber hinaus mehrere Attraktionen, wie beispielsweise das Spieleparadies Bork Legeland und das für Klein und Groß gleichermaßen interessante und spannende Freilichtmuseum Bork Vikingehavn. Bei können Sie außerdem eine vergnügliche Runde Minigolf spielen und Fahrräder ausleihen, auf denen Sie die herrliche Natur und Landschaft ringsum erkunden können.


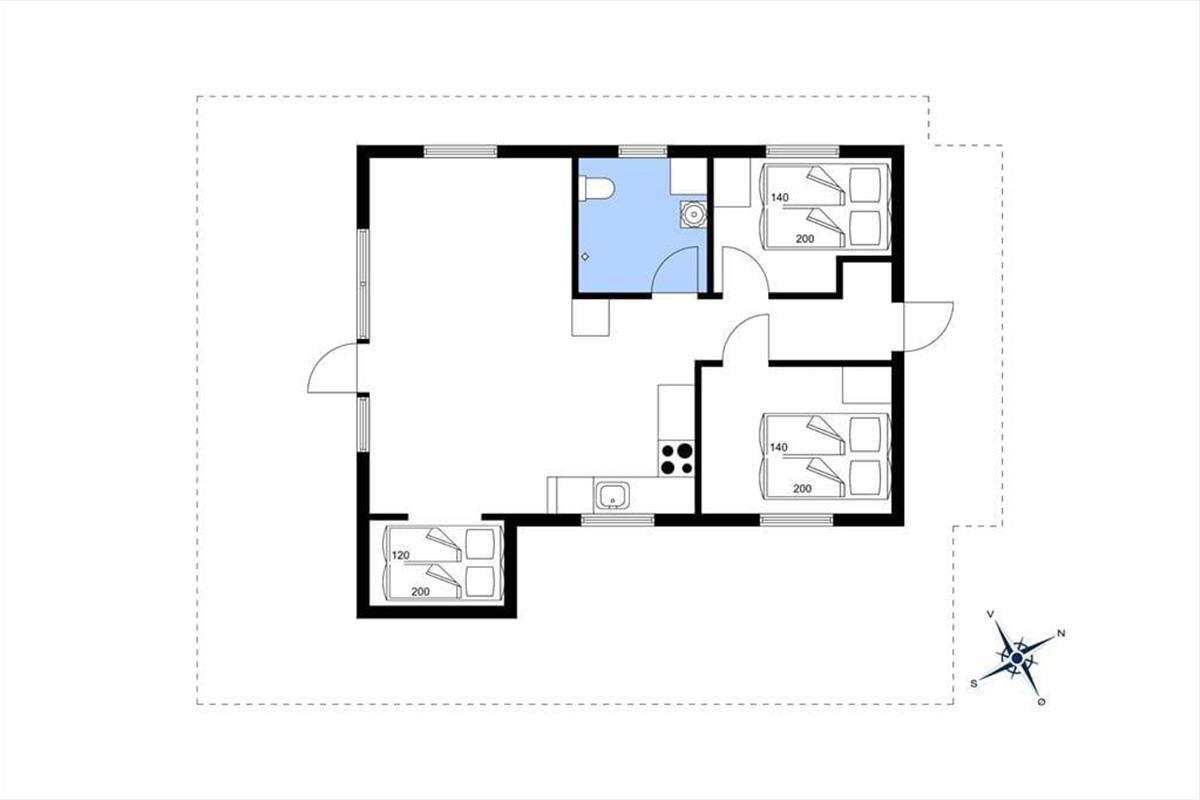
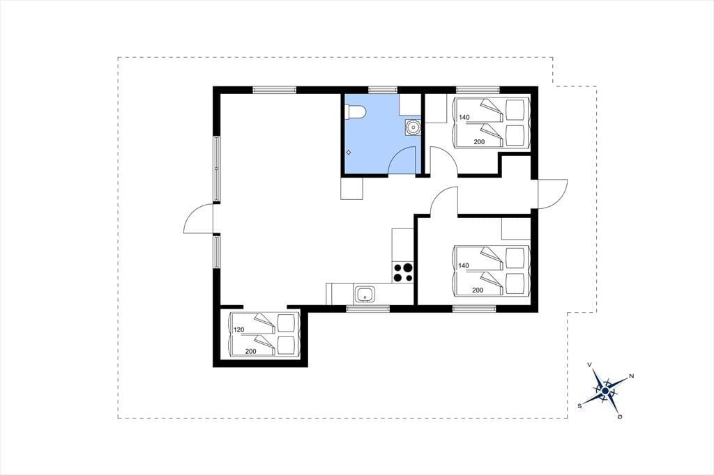
Raumaufteilung

  • Schlafzimmer
    • Doppelbett - 1x140x200
  • Schlafzimmer
    • Doppelbett - 1x140x200
  • Wohnküche
    • Einzelbett - 1x120x200
7 nachten
Vanaf 335,-
Incl. schoonmaak en verzekering
5 personen

Prijzen en kalender

Duur
Personen
Aankomst
Vorige Volgende
   Kijk of het object beschikbaar is op de geselecteerde datum
Vrij
Bezet
   Aankomst mogelijk

Prijs

Periode
Aankomst
Vertrek
Duur
1 week
Personen
Geen personen geselecteerd

Let op

Aankomst is niet geselecteerd.
Er zijn geen personen geselecteerd.
Contract- en huurvoorwaarden

Indeling & inrichting

Ligging & omgeving

Locatie pin Kaart Denemarken

Onze gastbeoordelingen Externe beoordelingen

3,5 gemiddeld 2 waarderingen
5
(0)
4
(1)
3
(1)
2
(0)
1
(0)

Opmerkingen

Geen beoordelingen hebben commentaar op Nederlands
Beoordeling van 1 bevat commentaar in een andere taal.

Klantenservice

Stel ons een vraag over dit object

Klik hier om ons een vraag over dit object te sturen.