Bork Hytteby 2 C - Bork Havn - 6893 - Hemmet Strand

Objectnr: 074-C11131
  • Personen
    4 personen
  • Slaapkamers2 Slaapkamers
  • Badkamers1 Badkamers
  • Woonoppervlakte50 m² Woonoppervlakte
  • Huisdieren1 Huisdieren

Beschrijving

De beschrijving is helaas niet beschikbaar in het Nederlands. Bekijk de tekst hieronder in het Duits of bekijk de automatisch vertaalde tekst in Nederlands.

Dieses schöne Holzferienhaus in Bork Havn ist eine hervorragende Wahl für diejenigen, die von erholsamen Urlaubstagen in einem gemütlichen, stimmungsvollen Rahmen träumen und gleichzeitig gerne nah an attraktiver Natur und unterhaltsamen Aktivitätsmöglichkeiten wohnen.

Einrichtung
Von außen betrachtet, handelt es sich bei diesem Ferienhaus um ein ansprechendes, klassisches Exemplar mit schwarzer Holzfassade und weißen Fensterrahmen. Die gute Ferienhausatmosphäre setzt sich auch in schönster Weise im Hausinneren fort, wo Sie von hell vertäfelten Holzwänden, einem romantisch knisternden Kaminofen und anderen Gemütlichkeit spendenden Ausstattungsdetails in Empfang genommen werden. Dank einer umfassenden Renovierung im Jahr 2017 befinden sich alle Räume in einem schönen und einladenden Zustand. Dies gilt selbstverständlich auch für die beiden Schlafräume und das Badezimmer, das mit einer Waschmaschine, einer Duschnische und einer Fußbodenheizung ausgestattet ist. Der ansprechende Zustand des Hauses spiegelt sich natürlich auch im Wohnraum wieder, bei dem es sich um einen schönen Aufenthaltsraum mit einer offenen Küche und einem direkten Zugang zu einem großen Schlafboden handelt. Im Laufe des Tages wird sich wahrscheinlich gerne hin und wieder ein Familienmitglied zu einer gemütlichen Lesestunde auf den Schlafboden zurückziehen. Des Nachts dient dieser mit seinen zwei Matratzen hingegen als gemütliche Schlafgelegenheit.

Außenbereich
Sobald die Sommersonne vom blauen Himmel lacht, wird es Sie unwiderstehlich hinaus ins Freie ziehen. Problemlos können Sie Ihr Frühstück, Ihre Lesestunden, Ihre gemeinsamen Spielrunden und die gemütlichen Gespräche hinaus auf das Grundstück des Hauses verlegen. Das Grundstück ist schlicht angelegt und begrüßt Sie mit einer Grasfläche und Terrassenbereichen. Die beiden Terrassen sind umzäunt, wodurch Sie während Ihres entspannten, gemütlichen Aufenthalts auf der Terrasse nicht nur angenehmen Windschutz, sondern auch angenehm viel Privatsphäre genießen.

Lage
Wenn Ihnen die Rasenfläche des Grundstücks zu klein erscheinen sollte, können Sie auch gerne das grüne Gemeinschaftsareal nutzen, welches sich direkt gegenüber befindet. Im beschaulichen und familienfreundlichen Ferienhausgebiet Bork Hytteby locken zudem zwei gute Spielplätze und ein kleiner Jollenhafen, von dem Sie mit Ihrem mitgebrachten Kanu oder Kajak auf dem Fluss Fahl Å bis hinaus auf das offene Wasser des mächtigen Ringkøbing Fjords fahren können. Wer hingegen seine Windsurf- oder Kitesurfausrüstung mit in den Urlaub genommen hat, der wird sich am beliebten Surfstrand Bork Havns ausgesprochen wohl fühlen. Surfausrüstungen können im Übrigen auch vor Ort geliehen werden. Anfängerkurse und dergleichen können ebenfalls belegt werden. Das beliebte, familienfreundliche Freilichtmuseum Bork Vikingehavn ist von Ihrem Urlaubsdomizil aus ebenfalls schnell erreicht. Dort wird Ihnen die Wikingerzeit in dieser Gegend auf überaus anschauliche Weise nähergebracht. Von der Wikingerzeit wurde auch die schöne Minigolfanlage von Bork Havn inspiriert. Diese liegt in der Ortsmitte, nahe dem Supermarkt und den verschiedenen Lokalitäten, die sich im Hafenbereich bereits darauf freuen, Sie kulinarisch verwöhnen zu dürfen.


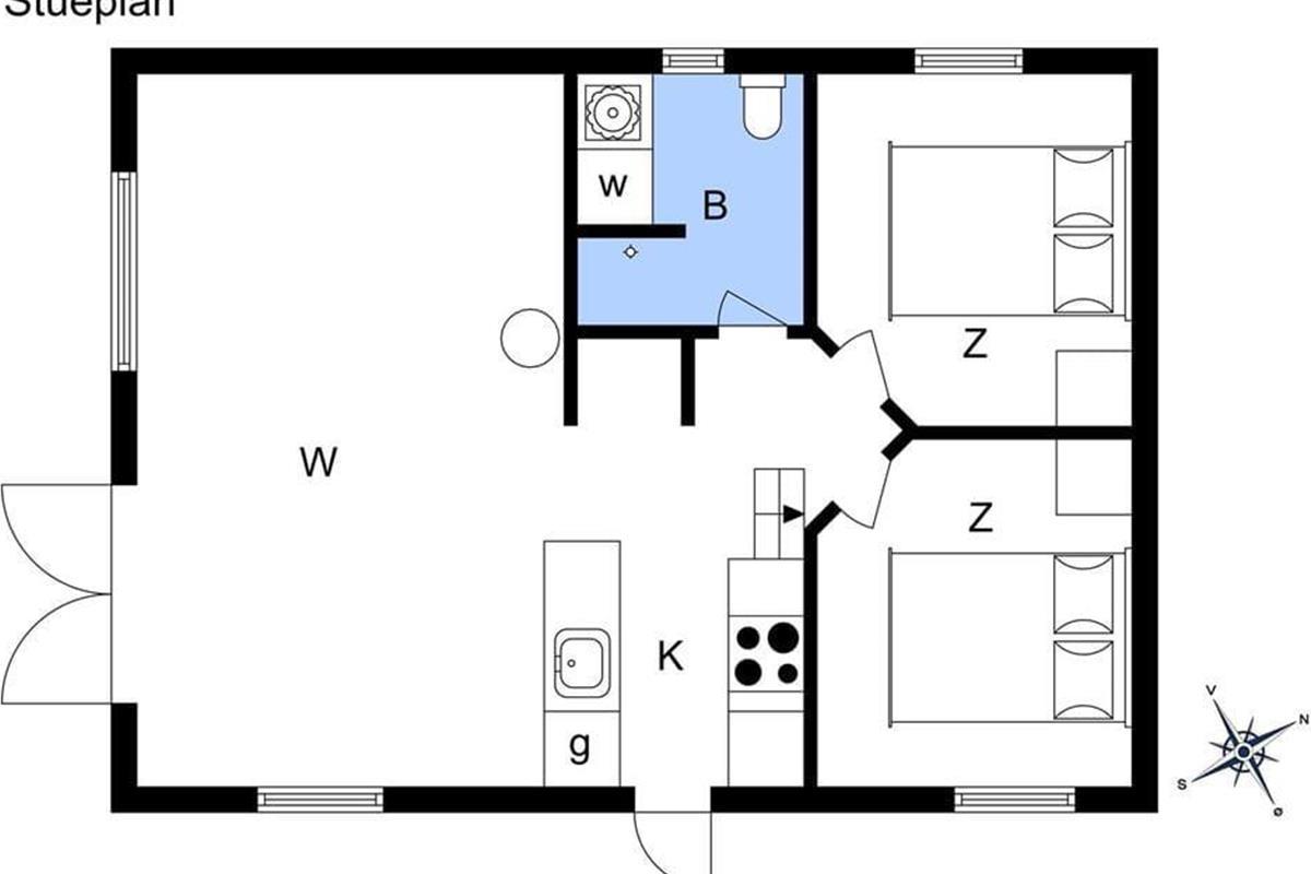
Raumaufteilung

  • Schlafzimmer
    • Doppelbett - 1x160x200
  • Schlafzimmer
    • Doppelbett - 1x160x200
  • Schlafboden
    • Einzelmatratze - 1x90x209
    • Einzelmatratze - 1x90x209
7 nachten
Vanaf 470,-
Incl. schoonmaak en verzekering

Prijzen en kalender

Duur
Aankomst
Vorige Volgende
   Kijk of het object beschikbaar is op de geselecteerde datum
Vrij
Bezet
   Aankomst mogelijk

Prijs

Periode
Aankomst
Vertrek
Duur
1 week
Personen
Tot 4 personen

Let op

Aankomst is niet geselecteerd.
Contract- en huurvoorwaarden

Indeling & inrichting

Ligging & omgeving

Locatie pin Kaart Denemarken

Klantenservice

Stel ons een vraag over dit object

Klik hier om ons een vraag over dit object te sturen.