Vester Fælled - Bork Havn - 6893 - Hemmet Strand

Objectnr: 074-C11573
  • Personen
    6 personen
  • Slaapkamers3 Slaapkamers
  • Badkamers1 Badkamers
  • Woonoppervlakte82 m² Woonoppervlakte
  • HuisdierenNiet toegestaan Huisdieren

Beschrijving

De beschrijving is helaas niet beschikbaar in het Nederlands. Bekijk de tekst hieronder in het Duits of bekijk de automatisch vertaalde tekst in Nederlands.

In der Nähe des beliebten Surfstrands in Bork Havn finden Sie dieses Juwel von einem Ferienhaus, das sowohl Seele als auch Charme sowie einen fantastischen Blick über den Ringkøbing Fjord bietet.

Einrichtung
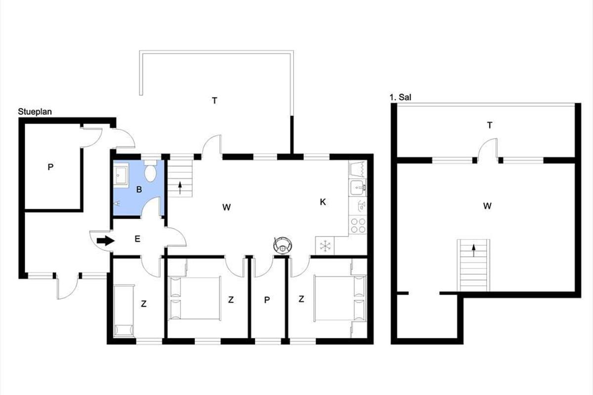
Schon beim Betreten des Hauses spüren Sie die Wärme und Persönlichkeit des Hauses. Dieses Haus ist nicht nur „eins in einer Reihe“, sondern eines, das über die Jahre hinweg mit Liebe gefüllt wurde. Treffpunkt im Erdgeschoss ist das Wohnzimmer, das mit der Küche verbunden ist. Hier finden Sie alle praktischen Dinge, die Sie zum Kochen und Wäschewaschen benötigen – aber auch jede Menge Gemütlichkeit herrscht hier, denn das Haus verfügt über einen schönen Holzofen in der Mitte des Raumes, perfekt, wenn Sie nach dem Essen noch am Tisch bleiben und vielleicht etwas spielen möchten. Oder Sie gehen direkt auf die teilweise überdachte Terrasse, wo Sie bei schönem Wetter natürlich auch das Essen und die Gesellschaft genießen können. Im Erdgeschoss finden Sie außerdem alle Schlafzimmer, die jeweils Platz für zwei Personen bieten. Hier befindet sich auch das Badezimmer des Hauses sowie ein schöner, nach Osten ausgerichteter Wintergarten und ein Abstelölraum mit Platz für alle praktischen Dinge. Im 1. Stock des Hauses ist das Wohnzimmer mit schönen Möbeln ausgestattet – und einem fantastischen Blick auf den Fjord. Selbstverständlich lässt sich dies auch vom Balkon aus genießen, denn die Aussicht ist nach Westen ausgerichtet, sodass Sie den berühmten Sonnenuntergang über der Nordsee genießen können, ohne dafür fahren zu müssen.

Außenbereich
Das Haus liegt auf einem großen Grundstück und verfügt über eine große und nutzbare Rasenfläche – ideal zum Spielen, Spielen und Sonnenbaden. Der Garten ist eine Erweiterung der teilweise überdachten Terrasse und bietet daher bei schönem Wetter viel Platz für alle Familienmitglieder im Freien. Die Größe des Grundstücks ermöglicht es auch, die gesamte Ausrüstung unterzubringen, die man für den Surfstrand benötigt. Wenn Sie nicht selbst über die Ausrüstung verfügen, können Sie diese problemlos in der Stadt mieten. Außerdem können Sie bequem direkt vor dem Ferienhaus parken, sodass Sie nicht zu weit laufen müssen, wenn Sie von einem Ausflug oder Einkauf zurückkommen.

Lage
Wenn Sie Lust auf intensiven Kontakt mit dem Wasser haben, können Sie in wenigen Minuten in den Neoprenanzug schlüpfen und mit dem Surfbrett an den Strand kommen. Dank der guten Windverhältnisse und des flachen Wassers können hier sowohl Anfänger als auch Könner Windsurfen und Kitesurfen genießen, außerdem besteht die Möglichkeit, SUP und andere Wassersportarten auszuüben. Ein kinderfreundlicher Badestrand befindet sich ebenfalls ganz in der Nähe des Ferienhauses. Wenn Sie lieber an Land bleiben möchten, sind es nur ein paar hundert Meter bis zum Hafen, wo Sie ein Eis essen oder in einem der nahegelegenen Restaurants Platz nehmen können. Es gibt viele familienfreundliche Aktivitäten in der Umgebung, unter anderem ist ein Besuch im Bork Vikingehavn, im Bork Legeland oder eine Partie Minigolf bei zu empfehlen. Wenn Sie mit dem Auto anreisen, ist es nicht weit zum Strand von Nymindegab, nach Skjern Enge oder zum Vogelschutzgebiet Tipperne – die Gegend bietet einen Haufen an Naturerlebnissen, die nur darauf warten, erkundet zu werden.


Raumaufteilung

  • Schlafzimmer
    • Doppelbett - 1x160X200
  • Schlafzimmer
    • Etagenbett - 2x70x190
  • Schlafzimmer
    • Doppelbett - 2x80x200
7 nachten
Vanaf 515,-
Incl. schoonmaak en verzekering

Prijzen en kalender

Duur
Aankomst
Volgende
   Kijk of het object beschikbaar is op de geselecteerde datum
Vrij
Bezet
   Aankomst mogelijk

Prijs

Periode
Aankomst
Vertrek
Duur
1 week
Personen
Tot 6 personen

Let op

Aankomst is niet geselecteerd.
Contract- en huurvoorwaarden

Indeling & inrichting

Ligging & omgeving

Locatie pin Kaart Denemarken

Onze gastbeoordelingen Externe beoordelingen

5,0 gemiddeld 1 waardering
5
(1)
4
(0)
3
(0)
2
(0)
1
(0)

Opmerkingen

Geen beoordelingen hebben commentaar.

Klantenservice

Stel ons een vraag over dit object

Klik hier om ons een vraag over dit object te sturen.