Modern vakantiehuis met zeezicht in Egernsund
Sundgade - Egernsund Strand - 6320 - Egernsund
Objectnr: 130-F08157
Vakantiehuis met prachtig zeezicht en moderne inrichting aan Egernsund Strand.
Beschrijving
Geniet van je vakantie in dit vakantiehuis met een prachtig uitzicht op zee.
Laat je verwelkomen door het open ontwerp van het huis. De woon- en eetkamer is modern ingericht, met heldere kleuren en veel natuurlijk licht. Bereid je favoriete gerechten in de elegante keuken terwijl je geniet van het uitzicht op de omgeving door de ramen. Ontbijt en diner smaken dubbel zo goed aan de eettafel onder het dakraam.
Stap op het ruime balkon en geniet van het uitzicht op de baai. Adem de frisse zeelucht in terwijl je de dag begint met een kopje koffie in de ochtendzon. De verhoogde ligging en de moderne glazen balustrade bieden je een fantastisch uitzicht over de daken naar de zee. De kleine tuin nodigt je ook uit om te blijven hangen en te ontspannen.
Ontdek het charmante Egernsund strand tijdens je verblijf. Maak een wandeling langs het water of bezoek het nabijgelegen stadje Gråsten met zijn kasteel en park. Steek de brug over naar Sønderborg en ervaar de havensfeer, de kleine boetiekjes en de Deense levensvreugde.
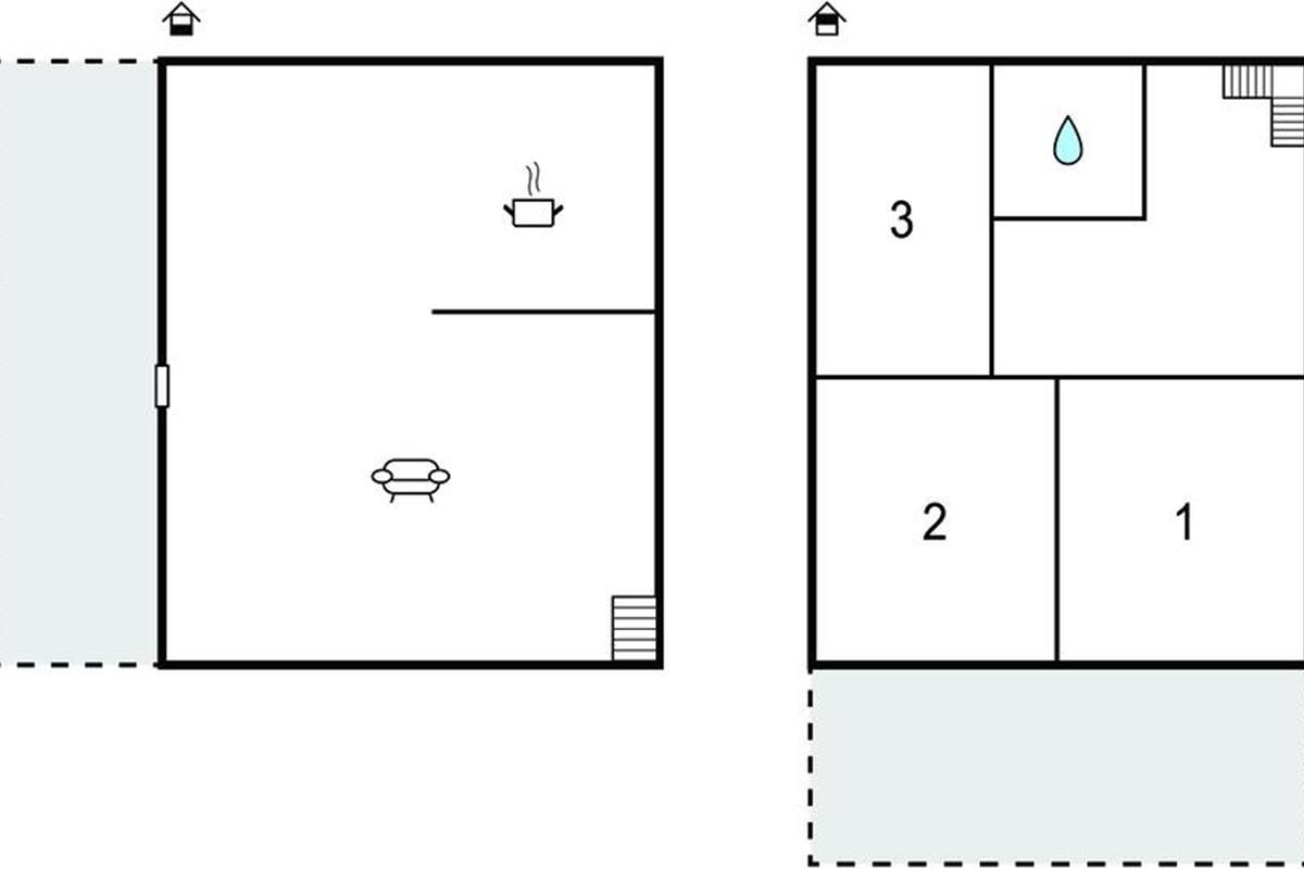
Vakantiehuis
Slaapkamer (nr. 1) - 2 Slaapplaatsen. (2-persoonsbed(den)).
Slaapkamer (nr. 2) - 2 Slaapplaatsen. (2-persoonsbed(den)).
Slaapkamer (nr. 3) - 2 Slaapplaatsen. (1-persoonsbed(den)).
Woonkamer met open keuken
Toilet (nr. 1) - Toilet: warm en koud water
Badkamer (nr. 1) - Toilet: warm en koud water. Douche en ligbad
Terras of vergelijkbaar - Open en overdekt terras
Laat je verwelkomen door het open ontwerp van het huis. De woon- en eetkamer is modern ingericht, met heldere kleuren en veel natuurlijk licht. Bereid je favoriete gerechten in de elegante keuken terwijl je geniet van het uitzicht op de omgeving door de ramen. Ontbijt en diner smaken dubbel zo goed aan de eettafel onder het dakraam.
Stap op het ruime balkon en geniet van het uitzicht op de baai. Adem de frisse zeelucht in terwijl je de dag begint met een kopje koffie in de ochtendzon. De verhoogde ligging en de moderne glazen balustrade bieden je een fantastisch uitzicht over de daken naar de zee. De kleine tuin nodigt je ook uit om te blijven hangen en te ontspannen.
Ontdek het charmante Egernsund strand tijdens je verblijf. Maak een wandeling langs het water of bezoek het nabijgelegen stadje Gråsten met zijn kasteel en park. Steek de brug over naar Sønderborg en ervaar de havensfeer, de kleine boetiekjes en de Deense levensvreugde.
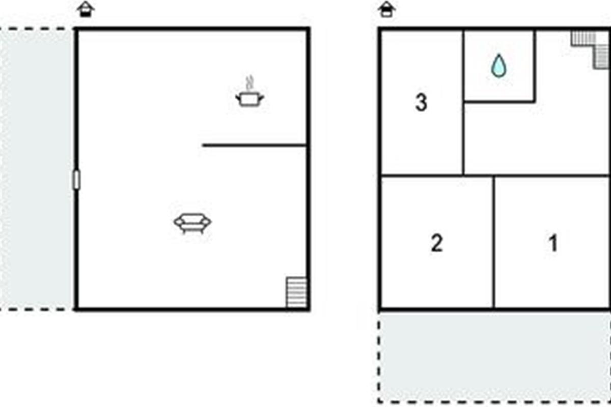
Vakantiehuis
Slaapkamer (nr. 1) - 2 Slaapplaatsen. (2-persoonsbed(den)).
Slaapkamer (nr. 2) - 2 Slaapplaatsen. (2-persoonsbed(den)).
Slaapkamer (nr. 3) - 2 Slaapplaatsen. (1-persoonsbed(den)).
Woonkamer met open keuken
Toilet (nr. 1) - Toilet: warm en koud water
Badkamer (nr. 1) - Toilet: warm en koud water. Douche en ligbad
Terras of vergelijkbaar - Open en overdekt terras
7 nachten
Vanaf
€ 583,-
Optionele schoonmaak: EUR 151,-
Prijzen en kalender
Prijs
Periode
- Aankomst
- Vertrek
- Duur
- 1 week
Personen
Tot 6 personen
Let op
Aankomst is niet geselecteerd.