Historisch vakantiehuis met bubbelbad en tuin
Feggesundvej - Ejerslev - 7900 - Nykøbing Mors
Objectnr: 121-33-6000
Charmant vakantiehuis uit 1870 met tuin, bubbelbad en uitzicht op de fjord in Nykøbing M.
Beschrijving
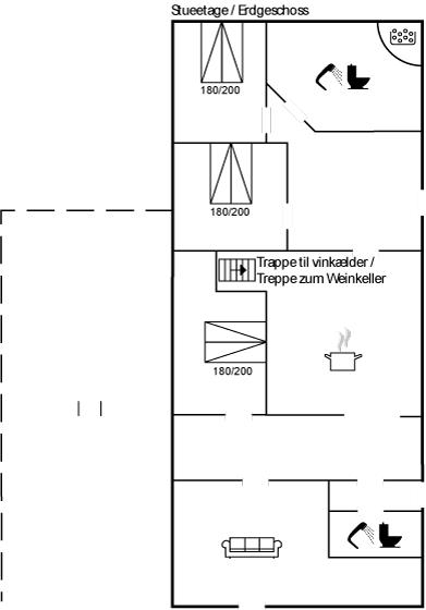
Inrichting
Vakantiehuis is geschikt voor 12 personen en 1 kinderen tot 3 jaar. De vakantiewoning heeft een oppervlakte van 200 m2 en is gebouwd in 1870. In 2002 ondergingen de vakantiewoning een gedeeltelijke renovatie. Het is toegestaan om 2 huisdieren mee te nemen. De vakantiewoning heft Wasmachine. Wasdroge. Vriezer capaciteit van 80 liter. Er is daarnaast houtkachel. Voor de kleintjes 2 stukken Kinderstoel.
Buiten
De vakantiewoning is gelegen op een 2500 m² groot aangelegde tuin. Afstand tot de fjord 1000 m. Dichtstbijzijnde winkel 2500 m. Bij de vakantiewoning hoort 100 m² terras. Gereedschapsruimte. Schommel.Vuurplaats. Parkeerplaats bij het huis.
Slaapomstandigheden
Er zijn in totaal 6 slaapkamers. De slaapplaatsen zijn als volgt verdeeld: 12 slaapplaatsen in tweepersoonsbedden. Verder is kinderbed ter beschikking.
Keuken
De keuken is uitgerust met koelkast Er zijn 4 keramische kookplaten, heteluchtoven en vaatwasser.
Douche en toilet
Er is 2 badkamers met douche en 2 toiletten. Er is vloerverwarming in 1 badkamer.
Bubbelbad
Het binnenbubbelbad (vulwater) biedt ontspanning aan 2 personen.
Multimedia
In de vakantiewoning is aanwezig televisie. Radio. Stereo-installatie. CD-speler. Tenminste 4 deense zenders. 1-3 duitse zenders. Draadloos internet.
Goed om te weten
Roken niet toegestaan. Bij overtreding van het verbod wordt een boete van minimaal EUR 420,- in rekening gebracht.
Vakantiehuis is geschikt voor 12 personen en 1 kinderen tot 3 jaar. De vakantiewoning heeft een oppervlakte van 200 m2 en is gebouwd in 1870. In 2002 ondergingen de vakantiewoning een gedeeltelijke renovatie. Het is toegestaan om 2 huisdieren mee te nemen. De vakantiewoning heft Wasmachine. Wasdroge. Vriezer capaciteit van 80 liter. Er is daarnaast houtkachel. Voor de kleintjes 2 stukken Kinderstoel.
Buiten
De vakantiewoning is gelegen op een 2500 m² groot aangelegde tuin. Afstand tot de fjord 1000 m. Dichtstbijzijnde winkel 2500 m. Bij de vakantiewoning hoort 100 m² terras. Gereedschapsruimte. Schommel.Vuurplaats. Parkeerplaats bij het huis.
Slaapomstandigheden
Er zijn in totaal 6 slaapkamers. De slaapplaatsen zijn als volgt verdeeld: 12 slaapplaatsen in tweepersoonsbedden. Verder is kinderbed ter beschikking.
Keuken
De keuken is uitgerust met koelkast Er zijn 4 keramische kookplaten, heteluchtoven en vaatwasser.
Douche en toilet
Er is 2 badkamers met douche en 2 toiletten. Er is vloerverwarming in 1 badkamer.
Bubbelbad
Het binnenbubbelbad (vulwater) biedt ontspanning aan 2 personen.
Multimedia
In de vakantiewoning is aanwezig televisie. Radio. Stereo-installatie. CD-speler. Tenminste 4 deense zenders. 1-3 duitse zenders. Draadloos internet.
Goed om te weten
Roken niet toegestaan. Bij overtreding van het verbod wordt een boete van minimaal EUR 420,- in rekening gebracht.
7 nachten
Vanaf
€ 563,-
Optionele schoonmaak: EUR 237,-
Prijzen en kalender
Prijs
Periode
- Aankomst
- Vertrek
- Duur
- 1 week
Personen
Tot 12 personen
Let op
Aankomst is niet geselecteerd.
Opmerkingen