Sfeervol vakantiehuis met prachtig uitzicht

Violvej - Gjellerodde - 7620 - Lemvig

Objectnr: 107-G192
Sfeervol vakantiehuis direct aan de Limfjord met prachtig uitzicht en een beschut terras.
  • Personen
    6 personen
  • Slaapkamers3 Slaapkamers
  • Badkamers1 Badkamers
  • Woonoppervlakte80 m² Woonoppervlakte
  • HuisdierenNiet toegestaan Huisdieren

Beschrijving

Imagine waking up to birdsong and uninterrupted views of the Limfjord. That’s exactly the kind of holiday atmosphere awaiting you at the holiday home on Violvej 92 in Gjellerodde. Here, you’re staying in the very first row to the water, surrounded by tranquil surroundings and with an open view of the ever-changing colours of the fjord. The classic brick holiday home has stood securely by the fjord coast since 1979, and both the layout and the location invite relaxation, presence, and plenty of peaceful moments – both indoors and out.

Welcome inside
Inside the holiday home on Violvej 92, you’ll be met by a warm and authentic atmosphere where it’s easy to settle in and simply be. The living room is cosy and homely, and the wood-burning stove in the corner provides both warmth and charm when the wind howls outside or raindrops gently tap on the windows. From here, you can gaze directly out over the fjord through large window sections – and it’s hard not to get lost in the mesmerising view. The kitchen and dining area are closely connected to the living room, making it easy to enjoy time together – whether preparing breakfast, sipping afternoon coffee, or playing cards on a quiet evening. The whole house radiates the classic Danish holiday spirit, where memories are created with the people you love the most.

Enjoy life outside
The home's location close to the water really comes into its own when you step out onto the sheltered terrace area. The atmosphere here is reminiscent of a sunroom – protected and bright, yet still open to nature and the fresh fjord air. You can sit dry and cosy with a cup of tea in hand, even if the clouds roll in, or enjoy your meals under the open sky when the sun comes out. With the fjord as your nearest neighbour, it’s ideal for a peaceful walk along the water, dipping your toes in the clear waters of the Limfjord, or simply sitting and following the gentle rhythm of the waves. The terrace’s position offers both privacy and panorama, making it easy to disconnect – perhaps with a good book or a glass of wine at sunset.

Get up close to the local attractions
Violvej 92 is located in the middle of the quiet and sought-after holiday home area in Gjellerodde, offering both natural experiences and relaxed holiday fun suitable for families with children. From here, you’re close to the area’s large nature playground, where the youngest in the family can burn off some energy while the adults enjoy the view over the fjord. You can also follow marked walking and cycling routes through the hilly fjord landscape and really feel how close you are to nature. And if you’re in the mood for a bit of town life, the charming market town of Lemvig is just a short drive away – with a harbour, cafés, ice cream shops, and boutiques that invite you to a laid-back afternoon of holiday vibes and local charm. Whether you’re after relaxation, playtime or small adventures, you’ll find it all within easy reach here.

Remember, you can always borrow wagons, highchairs, and cots from us at Vejlby Klit. You can pick them up directly at the office and return them to us again once your holiday is over.


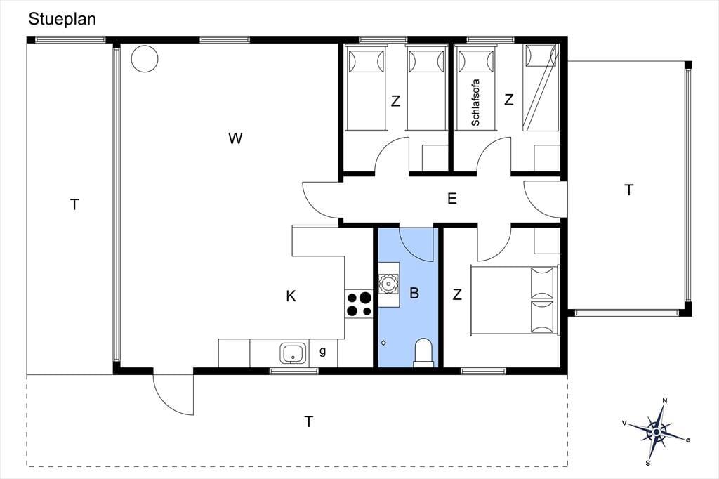
Kamerindeling

  • Kelder
  • Slaapkamer
    • Tweepersoonsbed - 180 * 200
  • Slaapkamer
    • Eenpersoonsbed - 90 * 180
    • Eenpersoonsbed - 90 * 180
  • Slaapkamer
    • Stapelbed - 2 x 90 * 180
7 nachten
Vanaf 420,-
Incl. schoonmaak en verzekering
6 personen

Prijzen en kalender

Duur
Personen
Aankomst
Vorige Volgende
   Kijk of het object beschikbaar is op de geselecteerde datum
Vrij
Bezet
   Aankomst mogelijk

Prijs

Periode
Aankomst
Vertrek
Duur
1 week
Personen
Geen personen geselecteerd

Let op

Aankomst is niet geselecteerd.
Er zijn geen personen geselecteerd.
Contract- en huurvoorwaarden

Indeling & inrichting

Ligging & omgeving

Locatie pin Kaart Denemarken

Onze gastbeoordelingen Externe beoordelingen

4,0 gemiddeld 2 waarderingen
5
(0)
4
(2)
3
(0)
2
(0)
1
(0)

Opmerkingen

Geen beoordelingen hebben commentaar op Nederlands
2 beoordelingen hebben commentaar in andere talen.

Klantenservice

Stel ons een vraag over dit object

Klik hier om ons een vraag over dit object te sturen.