Rustig vakantiehuis met uitzicht op de Limfjord

Bellisvej - Gjellerodde - 7620 - Lemvig

Objectnr: 107-G193
Ontdek rust en natuur met panoramisch uitzicht op de Limfjord in dit architectonisch vakantiehuis in Gjellerodde.
  • Personen
    5 personen
  • Slaapkamers2 Slaapkamers
  • Badkamers1 Badkamers
  • Woonoppervlakte80 m² Woonoppervlakte
  • Huisdieren1 Huisdieren

Beschrijving

If you're dreaming of a holiday filled with peace, nature, and panoramic views of the Limfjord, Bellisvej 93 in Gjellerodde is an excellent choice. Here, you’ll stay in an architect-designed holiday home on a quiet road, where the beauty of the fjord landscape sets the scene for undisturbed holiday moments. With just 300 metres to the water’s edge and the option to bring your dog, this house is ideal for families and couples seeking intimacy, tranquillity, and beautiful surroundings – both indoors and out.

Welcome inside
Step into the architect-designed holiday home on Bellisvej 93 and you’ll be greeted by a bright and inviting layout, where the design blends seamlessly with the surrounding nature. From the living room, you can gaze out over the blue tones of the Limfjord, while large windows invite natural light deep into the space. The house is designed with a focus on comfort and togetherness – there's room for long conversations around the dining table, quiet coffee breaks on the sofa, and play and laughter in the loft, which children will especially love. The interior strikes a balance between modern features and classic holiday home charm, creating a homely atmosphere that makes it easy to slip into holiday mode. Here, you’ll find peace – while also enjoying quality time with your loved ones.

Enjoy life outside
Outside, two lovely terraces await, giving you the freedom to pick your ideal spot depending on the sun’s path and the direction of the breeze. One terrace is sheltered and perfect for cosy breakfasts, while the other invites you to relax in the sunshine with the fjord as your backdrop. Settle down with a book, enjoy the birdsong in the calm surroundings, or prepare your evening meal under the open sky. Your dog will love exploring the green surroundings, and there’s plenty of space for the little ones to play freely and safely. With the beach just a short stroll away, it’s easy to take a quick dip in the clear fjord water or enjoy a peaceful walk along the coast while soaking in the view and fresh air.

Get up close to the local attractions
The location in the popular holiday home area of Gjellerodde gives you access to both relaxing and active holiday experiences. You’re within easy walking distance of the large local nature playground, where children can burn off energy while adults enjoy the fjord view from a sunny bench. There are also great trails for both cycling and hiking through the beautiful, hilly landscape surrounding the Limfjord. If you’re in the mood for a little more action, the charming town of Lemvig is just a short drive away – offering cafés, ice cream stalls, shops, and a lively harbour atmosphere. You can easily spend a morning or afternoon exploring the local town before returning to the peaceful haven of Bellisvej. Whether you prefer activity or relaxation, a holiday at Bellisvej 93 is full of possibilities.

Remember, you can always borrow pull carts, high chairs, and cots from us at Vejlby Klit. You can collect them directly from the office and return them once your holiday is over.


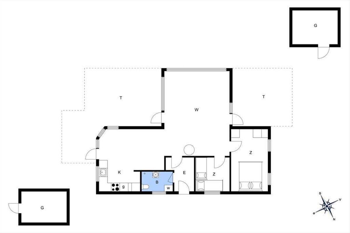
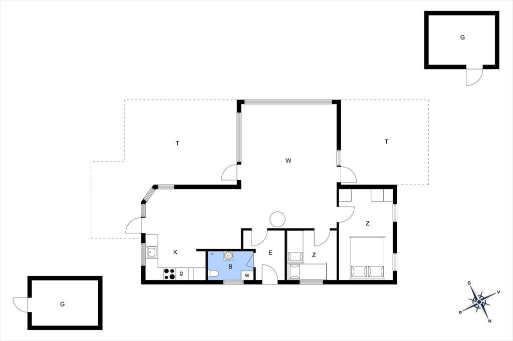
Kamerindeling

  • Slaapkamer
    • Tweepersoonsbed
  • Slaapkamer
    • Eenpersoonsbed
    • Eenpersoonsbed
  • Slaapvide
    • Eenpersoonsmatras
7 nachten
Vanaf 440,-
Incl. schoonmaak en verzekering
5 personen

Prijzen en kalender

Duur
Personen
Aankomst
Volgende
  • maart 2026
    madiwodovrzazo
    91
    102345678
    119101112131415
    1216171819202122
    1323242526272829
    143031
  • april 2026
    madiwodovrzazo
    1412345
    156789101112
    1613141516171819
    1720212223242526
    1827282930
    19
   Kijk of het object beschikbaar is op de geselecteerde datum
Vrij
Bezet
   Aankomst mogelijk

Prijs

Periode
Aankomst
Vertrek
Duur
1 week
Personen
Geen personen geselecteerd

Let op

Aankomst is niet geselecteerd.
Er zijn geen personen geselecteerd.
Contract- en huurvoorwaarden

Indeling & inrichting

Ligging & omgeving

Locatie pin Kaart Denemarken

Klantenservice

Stel ons een vraag over dit object

Klik hier om ons een vraag over dit object te sturen.