Rustig vakantiehuis met uitzicht op Limfjord

Violvej - Gjellerodde - 7620 - Lemvig

Objectnr: 107-G319
Geniet van een rustiek vakantiehuis met uitzicht op de Limfjord en een strand op 75 meter afstand.
  • Personen
    6 personen
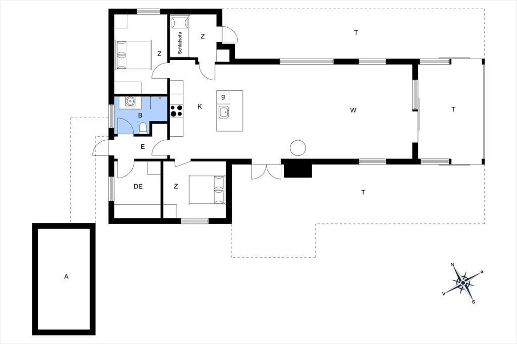
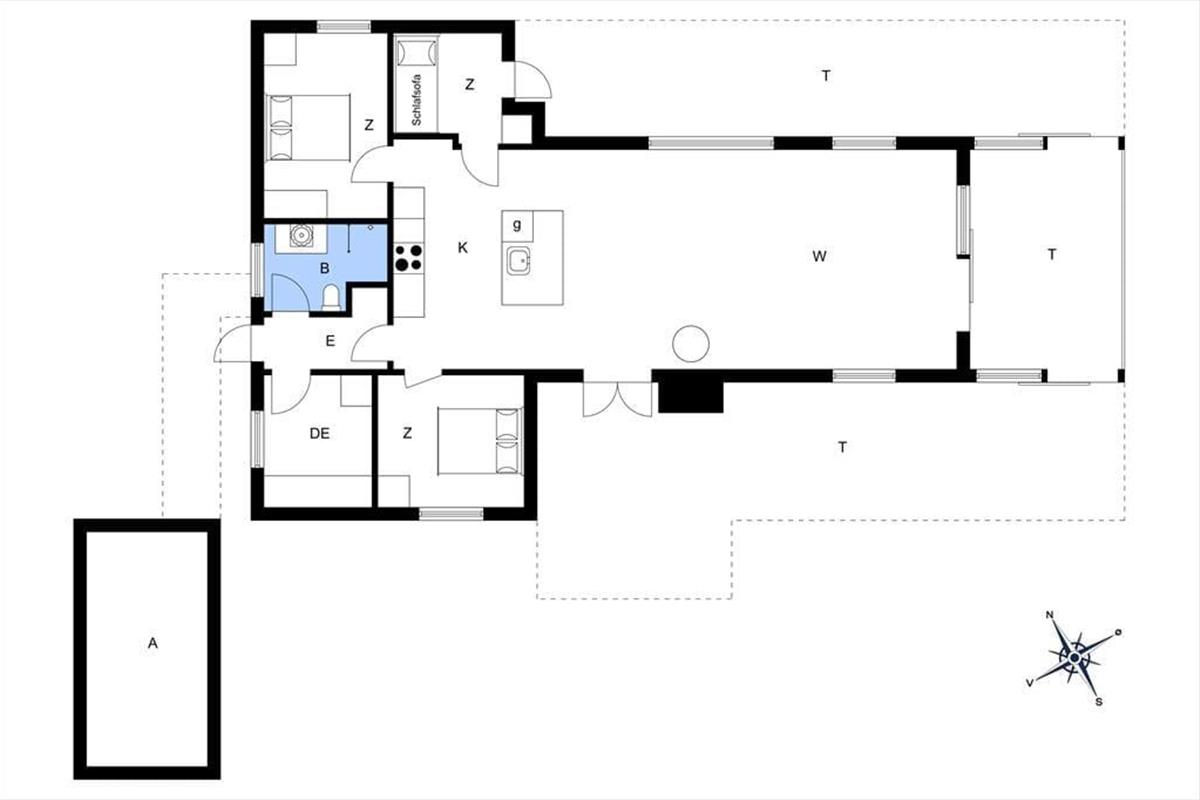
  • Slaapkamers3 Slaapkamers
  • Badkamers1 Badkamers
  • Woonoppervlakte81 m² Woonoppervlakte
  • HuisdierenNiet toegestaan Huisdieren

Beschrijving

If you're dreaming of a holiday filled with peace, nature, and sea views, the holiday home on Violvej 19 in Gjellerodde is a perfect choice. Here, you’ll find a charming wooden cottage in bright and welcoming surroundings – with panoramic views over the Limfjord, a short walk to the beach, and a truly special holiday atmosphere. Surrounded by beautiful nature and green space on three sides, this is a holiday base where you can really unwind and let your shoulders drop.

Welcome inside
As soon as you step into the holiday home on Violvej 19, you’re greeted by natural light pouring in through the windows, reflecting off the bright walls and ceilings. The atmosphere is welcoming and uncomplicated – just what you hope for in a relaxed, down-to-earth holiday. The large open-plan living area forms the heart of the home, where kitchen and lounge blend seamlessly, giving you a cosy space to gather for morning coffee, card games, or a good conversation on the sofa with a view of the water. Here, you can wake up to the fjord and fall asleep to a calming sense of peace that fills every room. The décor is harmonious and practical – and most importantly: it feels like home.

Enjoy life outside
Outside, a lovely lawn and a generous terrace area wrap around three sides of the house – with part of the terrace covered, so you can enjoy the outdoors even when the sun hides behind a cloud. With only 75 metres to the water’s edge, it’s easy to bring your morning coffee down to the beach or end the day with an evening swim in the fjord. On the terrace, you can enjoy your meals, let the kids play in the grass, or take a nap in the sun to the sound of distant seagulls. Whether you're in the mood for activity or relaxation, the peaceful setting at Violvej 19 offers the perfect framework for both. And when the sun sets, the sky often turns into a colourful canvas you can admire from the best seat in the house.

Get up close to the local attractions
Gjellerodde is a popular and scenic area that invites you to enjoy a holiday at a slower pace. Here, nature is always within reach, and from Violvej 19 it’s just a short walk to the Limfjord, where you can swim, collect shells, or enjoy peaceful walks along the shoreline. The area also features a large nature playground for the little ones, and there are excellent opportunities for kayaking, surfing, and fishing if you want to stay active on the water. Lemvig Golf Club is just a short drive away, and the surrounding countryside is full of beautiful hiking and cycling routes that lead you through rolling hills, fjord landscapes, and open spaces. When you stay here, you get both a peaceful retreat and a great base for exploring the nature and culture of West Jutland.

Remember, you can always borrow wagons, highchairs, and cots from us at Vejlby Klit. You can pick them up directly from our office and return them again once your holiday is over.


Kamerindeling

  • Slaapkamer
    • Tweepersoonsbed - 140 x 200 cm
  • Slaapkamer
    • Tweepersoonsbed - 180 x 200 cm
7 nachten
Vanaf 780,-
Incl. schoonmaak en verzekering
6 personen

Prijzen en kalender

Duur
Personen
Aankomst
Vorige Volgende
  • juli 2026
    madiwodovrzazo
    2712345
    286789101112
    2913141516171819
    3020212223242526
    312728293031
    32
  • augustus 2026
    madiwodovrzazo
    3112
    323456789
    3310111213141516
    3417181920212223
    3524252627282930
    3631
   Kijk of het object beschikbaar is op de geselecteerde datum
Vrij
Bezet
   Aankomst mogelijk

Prijs

Periode
Aankomst
Vertrek
Duur
1 week
Personen
Geen personen geselecteerd

Let op

Aankomst is niet geselecteerd.
Er zijn geen personen geselecteerd.
Contract- en huurvoorwaarden

Indeling & inrichting

Ligging & omgeving

Locatie pin Kaart Denemarken

Klantenservice

Stel ons een vraag over dit object

Klik hier om ons een vraag over dit object te sturen.