Ærenprisvej - Gjellerodde - 7620 - Lemvig

Objectnr: 325-551942
  • Personen
    8 personen
  • Slaapkamers4 Slaapkamers
  • Badkamers1 Badkamers
  • Woonoppervlakte128 m² Woonoppervlakte
  • HuisdierenNiet toegestaan Huisdieren

Beschrijving

De beschrijving is helaas niet beschikbaar in het Nederlands. Bekijk de tekst hieronder in het Duits of bekijk de automatisch vertaalde tekst in Nederlands.

Schönes Ferienhaus mit toller Lage und großartigerem Außenbereich, mit Terrassen um das ganze Haus, Sauna, Außen Dusche und Außen Whirlpool, der mit Holz aufgewärmt wird und ausgestattet ist. Großartiger Panoramablick über den Limfjord mit dem Ort Lemvig im Hintergrund. Großartiges Ferienhaus für ein Paar oder 2 Familien die zusammen Urlaub machen möchten in einem tollen Haus und in einer kinderfreundlichen Umgebung mit vielen Möglichkeiten. Freies WLAN. 

Haus Einrichtung
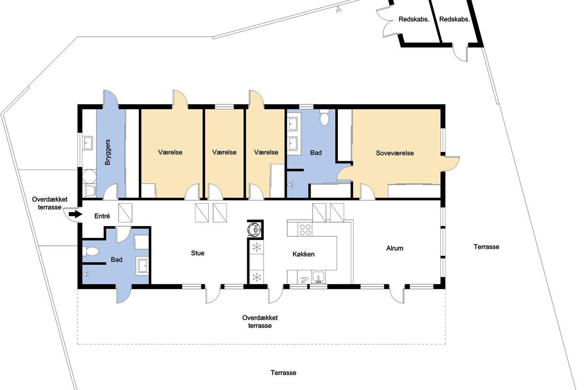
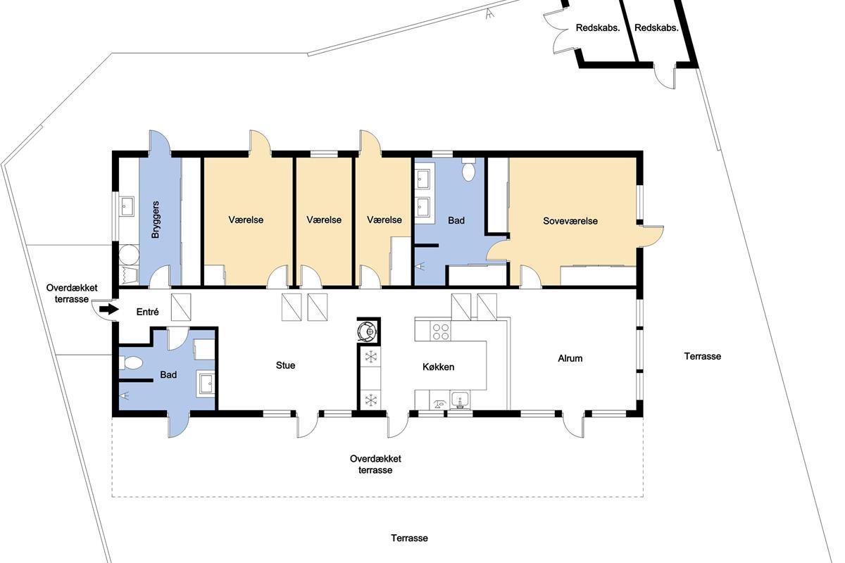
Das Ferienhaus hat 128 qm. Kombinierter Wohnraum/Küche mit offener Decke und Ausgang zu einer tollen Terrassenanlage und Panoramablick. Gut ausgestattete Küche mit allem an Geschirr und Kochgeschirr und Ceranfeld-Kochplatte, Abzugshaube, Mikrowelle, eingebauten Ofen, Geschirrspüler, Kühlschrank und Fußbodenheizung. Schöner Wohnraum mit Polstermöbeln, Esstisch, TV mit Dänische und Deutsche Programme und mit Chromecast, wo Sie die Möglichkeit haben eigene Programme zu streamen, wofür Sie selber einen Abonnement haben -, DVD, CD und Radio. Ein eingebauter Brennofen und eine Wärmepumpe sorgen beide für eine günstigere Nebenkostenrechnung, egal zu welcher Jahreszeit. Es gibt Fußbodenheizung im Wohnraum. 4 Schlafräume: 1DB + 1DB + 1DB + 1DB und Fußbodenheizung in allen Schlafräumen. Praktische Hartböden im Wohnraum und in allen Schlafräumen. Fliesenboden in der Küche. Großer schöner Flur mit Waschmaschine, Trockner und vielen Schränken und Schubläden zum Aufbewahren und hier gibt es einen Fliesenboden. 2 große Badezimmer mit Dusche, Toilette, Waschbecken und Fußbodenheizung. In beiden Badezimmern gibt es Fliesenboden mit Fußbodenheizung. Wenn Sie ein Elektroauto oder einen Plug-in-Hybrid haben, verfügt das Haus über eine Ladebox.Nichtraucher-Haus. Haustiere sind nicht erlaubt.

Haus Umgebung
Das Haus liegt auf einem 1357 qm großen Grundstück dicht am Limfjord. Vom Wohnraum gibt es Ausgang zur teilweise überdachten, tollen Terrassenanlage. Schöne Gartenmöbel, Sonnenliegen und Grill, die Sie je nach Wetter und Wind umstellen können, damit Sie immer einen Platz in der Sonne finden können. Außerdem gibt es einen Außen Whirlpool, der mit Holz beheizt wird und eine Außen Dusche und Außen Sauna. Ganz großartige und schöne Außenbereiche. Vom Haus aus gibt es ein Wegesystem, das Sie in wenigen Minuten zum Wasser führt. Unweit vom Haus liegt der neue Naturspielplatz aus Holz mit einem Fußballfeld und einer Rutsche und es ist auch nicht weit zum Einkauf und Strand. Toll gelegenes Ferienhaus für die perfekten Urlaubserlebnisse. 

Das Gebiet
Das Ferienhausgebiet Gjellerodde liegt direkt am Limfjord. Die Stadt Lemvig ist nur 5 Autominuten entfernt und bietet ein gutes Geschäftsleben und eine gemütliche Hafenumgebung. Gjellerodde und Lemvig sind für ihre hügelige und wunderschöne Natur bekannt, die das gesamte Gebiet umgibt. Hier finden Sie unter anderem: einen der schönsten Golfplätze des Landes, die tosende Nordsee nur 14 km westlich und Klosterheden nur 12 km entfernt. Von Lemvig bis zur Spitze von Gjellerodde wurde ein Planetenpfad angelegt, auf dem Sie auf Ihrem Weg Skulpturen aller Planeten treffen und auf Ihrer Route passenderweise einen Halt im Museum für religiöse Kunst einlegen können. Es besteht die Möglichkeit, sowohl einen aktiven Urlaub zu verbringen als auch abzuschalten und mit der ganzen Familie zu entspannen. Vom Haus aus gibt es ein schönes Wegesystem, das Sie durch die Gegend führt, hinunter zum Wasser oder zum neuen schönen Holzspielplatz der Gegend mit Fußballplatz und Rutsche. Der Ruderclub und die beiden Yachthäfen bilden den Rahmen für ein landschaftlich reizvolles Touristengebiet. Die raue, aber unglaublich schöne Natur der Westküste ermöglicht es, Ihren Urlaub sowohl drinnen als auch draußen unabhängig von Wetter und Wind zu genießen. Auf der Aktivitätsliste stehen mehrere Optionen wie Windsurfen, Kajakfahren, Segeln und Bootfahren am Fjord und an der Nordsee – und in Klosterheden gibt es gute Routen zum Mountainbiken, Reiten und Wandern.

 

7 nachten
Vanaf 504,-
Incl. verzekering

Prijzen en kalender

Duur
Aankomst
Vorige Volgende
  • april 2026
    madiwodovrzazo
    1412345
    156789101112
    1613141516171819
    1720212223242526
    1827282930
    19
  • mei 2026
    madiwodovrzazo
    18123
    1945678910
    2011121314151617
    2118192021222324
    2225262728293031
    23
   Kijk of het object beschikbaar is op de geselecteerde datum
Vrij
Bezet
   Aankomst mogelijk

Prijs

Periode
Aankomst
Vertrek
Duur
1 week
Personen
Tot 8 personen

Let op

Aankomst is niet geselecteerd.
Contract- en huurvoorwaarden

Indeling & inrichting

Ligging & omgeving

Locatie pin Kaart Denemarken

Klantenservice

Stel ons een vraag over dit object

Klik hier om ons een vraag over dit object te sturen.