Comfortabel vakantiehuis met zwembad en sauna
Sinnesvej - Grønhøj - 9480 - Løkken
Objectnr: 121-12-0180
Comfortabel vakantiehuis met binnenzwembad, sauna en bubbelbad, nabij zee en natuur in Løkken, Denemarken.
Beschrijving
Inrichting
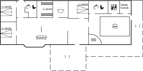
Vakantiehuis is geschikt voor 10 personen en 1 kinderen tot 3 jaar. De vakantiewoning heeft een oppervlakte van 143 m2 en is gebouwd in 1987. In 2005 is de vakantiewoning volledig renoveerd. Het is toegestaan om 3 huisdieren mee te nemen. De vakantiewoning is uitgerust met warmtepomp. In het gebouw is een wasserette met gemeenschappelijke wasmachine en wasdroger. Vriezer capaciteit van 50 liter. Er is daarnaast houtkachel. Voor de kleintjes 1 stukken Kinderstoel.
Buiten
De vakantiewoning is gelegen op een 1250 m² groot natuural grond. Afstand tot de zee 800 m. Dichtstbijzijnde winkel 2500 m. Bij de vakantiewoning hoort 60 m² terras. Gereedschapsruimte. Schommel. Zandbak. Barbecue. Parkeerplaats bij het huis.
Zwembad
Het binnenzwembad biedt de gelegenheid om heerlijk te spelen en gezellig samen te zijn. Het zwembad is 3,5 m breed, 5 m lang en tot 1,2 m diep. Het water heeft een temperatuur tussen de 24 en 28 °C. Het water in het zwembad wordt verwarmd door een energiezuinige lucht-naar-water-warmtepomp.
Slaapomstandigheden
Er zijn in totaal 4 slaapkamers. De slaapplaatsen zijn als volgt verdeeld: 6 slaapplaatsen in tweepersoonsbedden. 4 slaapplaatsen in stapelbedden. Verder is kinderbed ter beschikking.
Keuken
De keuken is uitgerust met koelkast Er zijn 5 keramische kookplaten, heteluchtoven, magnetron en vaatwasser.
Douche en toilet
Er is 2 badkamers met douchehok en 2 toiletten. Er is vloerverwarming in 2 van de badkamers. De sauna biedt de gelegenheid tot ontspanning.
Bubbelbad
Het binnenbubbelbad (vulwater) biedt ontspanning aan 2 personen.
Multimedia
In de vakantiewoning is aanwezig 2 televisies. Chromecast. DVD-speler. Stereo-installatie. CD-speler. Surround-installatie. Tenminste 4 deense zenders. 1-3 duitse zenders. Draadloos internet.
Goed om te weten
Youth groups (15-25 years of age) not allowed. Smoking is prohibited. By violation of this prohibition a fee of min. EUR 420 will be charged.
Vakantiehuis is geschikt voor 10 personen en 1 kinderen tot 3 jaar. De vakantiewoning heeft een oppervlakte van 143 m2 en is gebouwd in 1987. In 2005 is de vakantiewoning volledig renoveerd. Het is toegestaan om 3 huisdieren mee te nemen. De vakantiewoning is uitgerust met warmtepomp. In het gebouw is een wasserette met gemeenschappelijke wasmachine en wasdroger. Vriezer capaciteit van 50 liter. Er is daarnaast houtkachel. Voor de kleintjes 1 stukken Kinderstoel.
Buiten
De vakantiewoning is gelegen op een 1250 m² groot natuural grond. Afstand tot de zee 800 m. Dichtstbijzijnde winkel 2500 m. Bij de vakantiewoning hoort 60 m² terras. Gereedschapsruimte. Schommel. Zandbak. Barbecue. Parkeerplaats bij het huis.
Zwembad
Het binnenzwembad biedt de gelegenheid om heerlijk te spelen en gezellig samen te zijn. Het zwembad is 3,5 m breed, 5 m lang en tot 1,2 m diep. Het water heeft een temperatuur tussen de 24 en 28 °C. Het water in het zwembad wordt verwarmd door een energiezuinige lucht-naar-water-warmtepomp.
Slaapomstandigheden
Er zijn in totaal 4 slaapkamers. De slaapplaatsen zijn als volgt verdeeld: 6 slaapplaatsen in tweepersoonsbedden. 4 slaapplaatsen in stapelbedden. Verder is kinderbed ter beschikking.
Keuken
De keuken is uitgerust met koelkast Er zijn 5 keramische kookplaten, heteluchtoven, magnetron en vaatwasser.
Douche en toilet
Er is 2 badkamers met douchehok en 2 toiletten. Er is vloerverwarming in 2 van de badkamers. De sauna biedt de gelegenheid tot ontspanning.
Bubbelbad
Het binnenbubbelbad (vulwater) biedt ontspanning aan 2 personen.
Multimedia
In de vakantiewoning is aanwezig 2 televisies. Chromecast. DVD-speler. Stereo-installatie. CD-speler. Surround-installatie. Tenminste 4 deense zenders. 1-3 duitse zenders. Draadloos internet.
Goed om te weten
Youth groups (15-25 years of age) not allowed. Smoking is prohibited. By violation of this prohibition a fee of min. EUR 420 will be charged.
7 nachten
Vanaf
€ 629,-
Optionele schoonmaak: EUR 221,-
Prijzen en kalender
Prijs
Periode
- Aankomst
- Vertrek
- Duur
- 1 week
Personen
Tot 10 personen
Let op
Aankomst is niet geselecteerd.
Opmerkingen
Mooie, ruime woning! Van alle gemakken voorzien, kinderen hebben genoten van het zwembad.