Modern vakantiehuis nabij zee met veel comfort
Lisevej - Grønhøj - 9480 - Løkken
Objectnr: 121-12-0382
Comfortabel vakantiehuis in Løkken met moderne voorzieningen, dichtbij zee en natuur.
Beschrijving
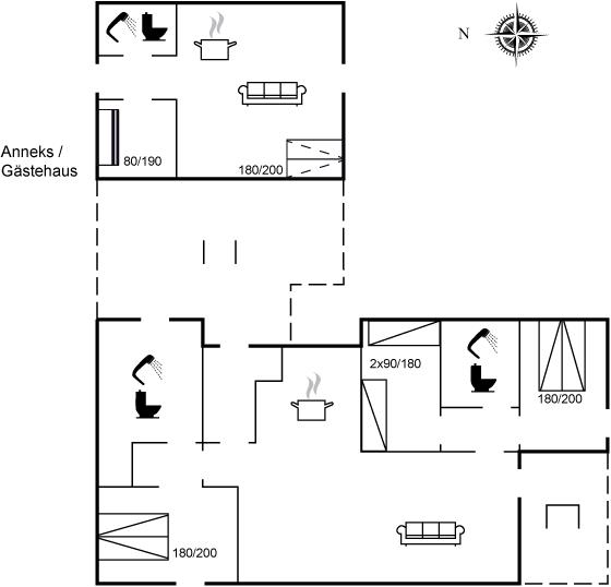
Inrichting
Vakantiehuis is geschikt voor 8 personen en 1 kinderen tot 3 jaar. De vakantiewoning heeft een oppervlakte van 140 m2, het hoofdhuis is gebouwd in 2020 en het bijgebouw in 1978. Het is niet toegestaan om huisdieren mee te nemen. In vakantiewoning is uitgerust met een energiezuinige lucht-naar-lucht-warmtepomp en in het bijgebouw is er ook een lucht-naar-lucht-warmtepomp. De vakantiewoning heft Wasmachine. Er is daarnaast houtkachel.Er is daarnaast gashard. Voor de kleintjes 1 stukken Kinderstoel.
Buiten
De vakantiewoning is gelegen op een 1750 m² groot natuural grond. Afstand tot de zee 400 m. Dichtstbijzijnde winkel 4000 m. Er is een golfbaan op een afstand van 10000 m. Bij de vakantiewoning hoort terras. Daarnaast is er een overdekt terras. Schommel. Glijbaan. Buitensauna. Buitendouche. Barbecue. Het huis heeft een stopcontact voor het opladen van een elektrische auto. Parkeerplaats bij het huis.
Slaapomstandigheden
Er zijn in totaal 3 slaapkamers. De slaapplaatsen zijn als volgt verdeeld: 4 slaapplaatsen in tweepersoonsbedden. 2 slaapplaatsen in stapelbed. 2 slaapplaatsen in slaapbanken (tweepersoons).2 slaapplaatsen op matrassen. 2 van deze slaapplaatsen bevinden zich op de open slaapzolderen 4 in het bijgebouw, waarvan 2 van de slaapplaatsen in de woonkamer van het bijgebouw. Verder is kinderbed ter beschikking.
Keuken
De keuken is uitgerust met 3 koelkasten Er is 4 inductiekookplaten, heteluchtoven, magnetron en vaatwasser.
Douche en toilet
Er is 3 badkamers met douchehok en 3 toiletten. Er is vloerverwarming in 3 van de badkamers. De sauna biedt de gelegenheid tot ontspanning.
Multimedia
In de vakantiewoning is aanwezig televisie. Geen tv-kanalen - alleen streaming. Draadloos internet.
Goed om te weten
Geen verhuur aan jeugdgroepen waar iedereen tussen de 15 en 25 jaar oud is. Roken niet toegestaan. Bij overtreding van het verbod wordt een boete van minimaal EUR 420,- in rekening gebracht. In het bijgebouw is er geen watervoorziening van 1 november tot 1 mei; in deze periode is water alleen beschikbaar in het hoofdgebouw.
Vakantiehuis is geschikt voor 8 personen en 1 kinderen tot 3 jaar. De vakantiewoning heeft een oppervlakte van 140 m2, het hoofdhuis is gebouwd in 2020 en het bijgebouw in 1978. Het is niet toegestaan om huisdieren mee te nemen. In vakantiewoning is uitgerust met een energiezuinige lucht-naar-lucht-warmtepomp en in het bijgebouw is er ook een lucht-naar-lucht-warmtepomp. De vakantiewoning heft Wasmachine. Er is daarnaast houtkachel.Er is daarnaast gashard. Voor de kleintjes 1 stukken Kinderstoel.
Buiten
De vakantiewoning is gelegen op een 1750 m² groot natuural grond. Afstand tot de zee 400 m. Dichtstbijzijnde winkel 4000 m. Er is een golfbaan op een afstand van 10000 m. Bij de vakantiewoning hoort terras. Daarnaast is er een overdekt terras. Schommel. Glijbaan. Buitensauna. Buitendouche. Barbecue. Het huis heeft een stopcontact voor het opladen van een elektrische auto. Parkeerplaats bij het huis.
Slaapomstandigheden
Er zijn in totaal 3 slaapkamers. De slaapplaatsen zijn als volgt verdeeld: 4 slaapplaatsen in tweepersoonsbedden. 2 slaapplaatsen in stapelbed. 2 slaapplaatsen in slaapbanken (tweepersoons).2 slaapplaatsen op matrassen. 2 van deze slaapplaatsen bevinden zich op de open slaapzolderen 4 in het bijgebouw, waarvan 2 van de slaapplaatsen in de woonkamer van het bijgebouw. Verder is kinderbed ter beschikking.
Keuken
De keuken is uitgerust met 3 koelkasten Er is 4 inductiekookplaten, heteluchtoven, magnetron en vaatwasser.
Douche en toilet
Er is 3 badkamers met douchehok en 3 toiletten. Er is vloerverwarming in 3 van de badkamers. De sauna biedt de gelegenheid tot ontspanning.
Multimedia
In de vakantiewoning is aanwezig televisie. Geen tv-kanalen - alleen streaming. Draadloos internet.
Goed om te weten
Geen verhuur aan jeugdgroepen waar iedereen tussen de 15 en 25 jaar oud is. Roken niet toegestaan. Bij overtreding van het verbod wordt een boete van minimaal EUR 420,- in rekening gebracht. In het bijgebouw is er geen watervoorziening van 1 november tot 1 mei; in deze periode is water alleen beschikbaar in het hoofdgebouw.
7 nachten
Vanaf
€ 697,-
Incl. schoonmaak
Prijzen en kalender
Prijs
Periode
- Aankomst
- Vertrek
- Duur
- 1 week
Personen
Tot 8 personen
Let op
Aankomst is niet geselecteerd.
1 externe beoordeling