Modern vakantiehuis met sauna en bubbelbad
Kringelbækvej - Grønhøj - 9480 - Løkken
Objectnr: 121-12-0422
Ruim en modern vakantiehuis in Grønhøj met sauna, bubbelbad en grote tuin voor ontspanning.
Beschrijving
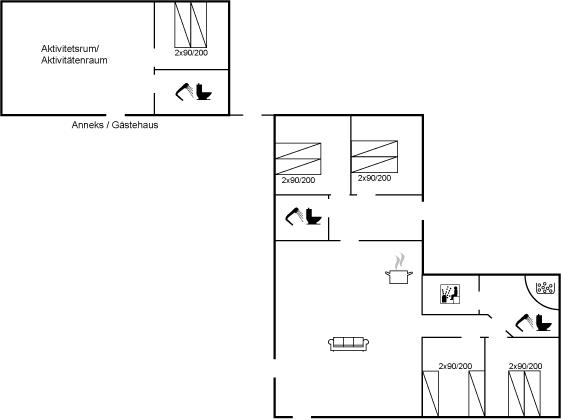
Inrichting
Vakantiehuis is geschikt voor 10 personen en 1 kinderen tot 3 jaar. De vakantiewoning heeft een oppervlakte van 175 m2 en is gebouwd in 2018. Het is niet toegestaan om huisdieren mee te nemen. De vakantiewoning is uitgerust met warmtepomp. De vakantiewoning is uitgerust met warmteterug-winningsinstallatie. Er is vloerverwarming in het hele huis. De vakantiewoning heft Wasmachine. Wasdroge. Vriezer capaciteit van 100 liter. Voor de kleintjes 1 stukken Kinderstoel.
Buiten
De vakantiewoning is gelegen op een 2102 m² groot natuural grond. Afstand tot de zee 1500 m. Dichtstbijzijnde winkel 1200 m. Er is een golfbaan op een afstand van 5500 m. Bij de vakantiewoning hoort 130 m² terras. Daarnaast is er een 23 m² groot overdekt terras. Zonneterras. Schommel. Trampoline. Glijbaan. Parkeerplaats bij het huis.
Activiteitenruimte
Activiteitenruimte. Biljart.Dart.
Slaapomstandigheden
Er zijn in totaal 5 slaapkamers. De slaapplaatsen zijn als volgt verdeeld: 2 slaapplaatsen in tweepersoonsbed. 4 slaapplaatsen in eenpersoonsbedden.4 slaapplaatsen in verstelbaar bedden.- 2 van deze slaapplaatsen bevinden zich in de bijgebouw. Verder is kinderbed ter beschikking. Er is vloerverwarming in het bijgebouw.
Keuken
De keuken is uitgerust met 2 koelkasten Er is 4 inductiekookplaten, heteluchtoven, magnetron en vaatwasser.
Douche en toilet
Er is 3 badkamers met douchehok en 3 toiletten. Er is vloerverwarming in 3 van de badkamers. De sauna biedt de gelegenheid tot ontspanning.
Bubbelbad
Het binnenbubbelbad (vulwater) biedt ontspanning aan 2 personen.
Multimedia
In de vakantiewoning is aanwezig 5 televisies. Bluray-speler. Playstation4. Tenminste 4 deense zenders. 1-3 sweedse zenders. 1-3 noorse zenders. 1-3 duitse zenders. Draadloos internet.
Goed om te weten
Youth groups (15-25 years of age) not allowed. Smoking is prohibited. By violation of this prohibition a fee of min. EUR 420,- will be charged.
Vakantiehuis is geschikt voor 10 personen en 1 kinderen tot 3 jaar. De vakantiewoning heeft een oppervlakte van 175 m2 en is gebouwd in 2018. Het is niet toegestaan om huisdieren mee te nemen. De vakantiewoning is uitgerust met warmtepomp. De vakantiewoning is uitgerust met warmteterug-winningsinstallatie. Er is vloerverwarming in het hele huis. De vakantiewoning heft Wasmachine. Wasdroge. Vriezer capaciteit van 100 liter. Voor de kleintjes 1 stukken Kinderstoel.
Buiten
De vakantiewoning is gelegen op een 2102 m² groot natuural grond. Afstand tot de zee 1500 m. Dichtstbijzijnde winkel 1200 m. Er is een golfbaan op een afstand van 5500 m. Bij de vakantiewoning hoort 130 m² terras. Daarnaast is er een 23 m² groot overdekt terras. Zonneterras. Schommel. Trampoline. Glijbaan. Parkeerplaats bij het huis.
Activiteitenruimte
Activiteitenruimte. Biljart.Dart.
Slaapomstandigheden
Er zijn in totaal 5 slaapkamers. De slaapplaatsen zijn als volgt verdeeld: 2 slaapplaatsen in tweepersoonsbed. 4 slaapplaatsen in eenpersoonsbedden.4 slaapplaatsen in verstelbaar bedden.- 2 van deze slaapplaatsen bevinden zich in de bijgebouw. Verder is kinderbed ter beschikking. Er is vloerverwarming in het bijgebouw.
Keuken
De keuken is uitgerust met 2 koelkasten Er is 4 inductiekookplaten, heteluchtoven, magnetron en vaatwasser.
Douche en toilet
Er is 3 badkamers met douchehok en 3 toiletten. Er is vloerverwarming in 3 van de badkamers. De sauna biedt de gelegenheid tot ontspanning.
Bubbelbad
Het binnenbubbelbad (vulwater) biedt ontspanning aan 2 personen.
Multimedia
In de vakantiewoning is aanwezig 5 televisies. Bluray-speler. Playstation4. Tenminste 4 deense zenders. 1-3 sweedse zenders. 1-3 noorse zenders. 1-3 duitse zenders. Draadloos internet.
Goed om te weten
Youth groups (15-25 years of age) not allowed. Smoking is prohibited. By violation of this prohibition a fee of min. EUR 420,- will be charged.
7 nachten
Vanaf
€ 689,-
Optionele schoonmaak: EUR 210,-
Prijzen en kalender
Prijs
Periode
- Aankomst
- Vertrek
- Duur
- 1 week
Personen
Tot 10 personen
Let op
Aankomst is niet geselecteerd.
Opmerkingen