Luxe vakantiehuis met sauna en bubbelbad
Kringelbækvej - Grønhøj - 9480 - Løkken
Objectnr: 121-12-0437
Modern vakantiehuis in Løkken met sauna, bubbelbad en ruime buitenruimte.
Beschrijving
Inrichting
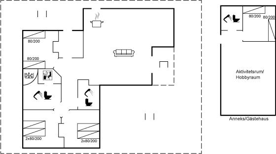
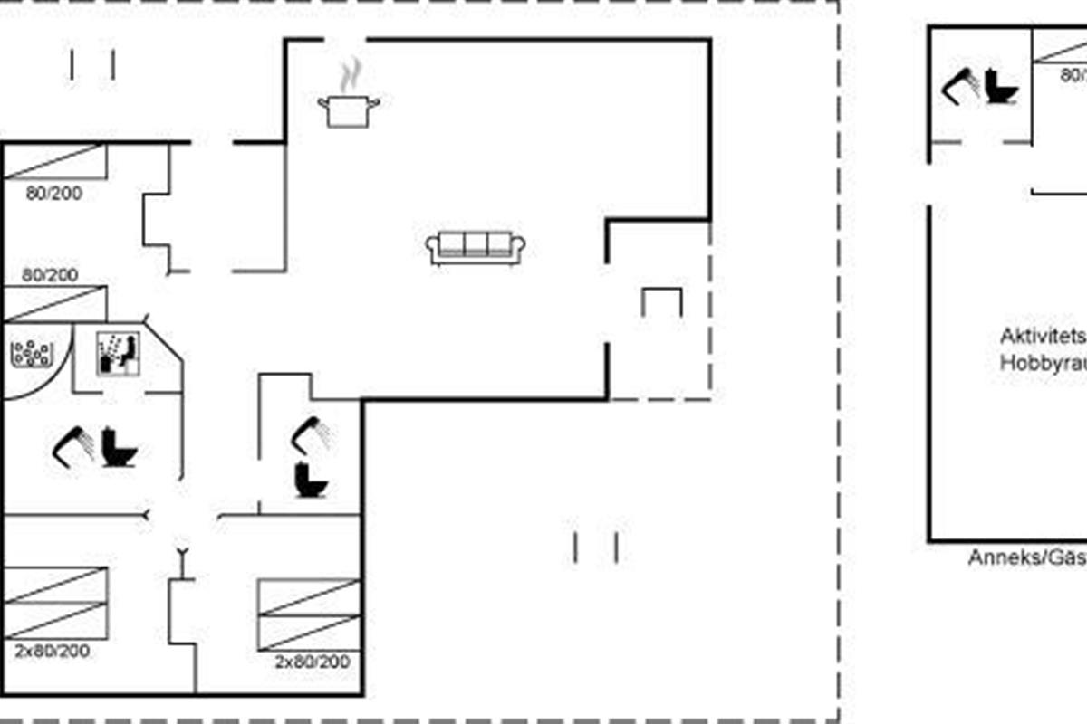
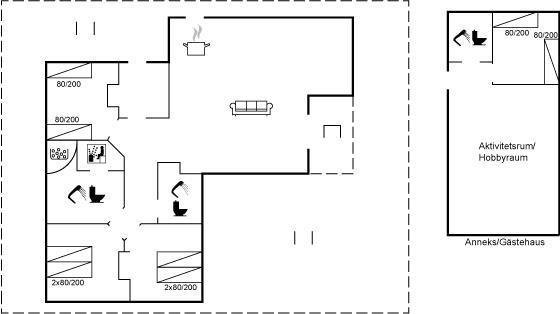
Vakantiehuis is geschikt voor 8 personen en 1 kinderen tot 3 jaar. De vakantiewoning heeft een oppervlakte van 175 m2 en is gebouwd in 2019. Het is toegestaan om 2 huisdieren mee te nemen. De vakantiewoning is uitgerust met warmtepomp. Vloerverwarming in alle stenen vloeren. De vakantiewoning heft Wasmachine. Wasdroge. Vriezer capaciteit van 60 liter. Er is daarnaast houtkachel. Voor de kleintjes 1 stukken Kinderstoel.
Buiten
De vakantiewoning is gelegen op een 2100 m² groot natuural grond. Afstand tot de zee 1500 m. Dichtstbijzijnde winkel 1200 m. Bij de vakantiewoning hoort 200 m² terras. Daarnaast is er een 37 m² groot overdekt terras. Schommel.Vuurplaats. Buitendouche. Parkeerplaats bij het huis.
Activiteitenruimte
Activiteitenruimte. Biljart.Tafeltennis. Dart. Tafelvoetbal.
Slaapomstandigheden
Er zijn in totaal 4 slaapkamers. De slaapplaatsen zijn als volgt verdeeld: 4 slaapplaatsen in tweepersoonsbedden. 4 slaapplaatsen in eenpersoonsbedden.- 2 van deze slaapplaatsen bevinden zich in de bijgebouw. Verder is kinderbed ter beschikking.
Keuken
De keuken is uitgerust met 2 koelkasten Er is 4 inductiekookplaten, heteluchtoven, magnetron en vaatwasser.
Douche en toilet
Er is 3 badkamers met douchehok en 3 toiletten. Er is vloerverwarming in 3 van de badkamers. De infraroodsauna biedt de gelegenheid tot ontspanning.
Bubbelbad
Het binnenbubbelbad (vulwater) biedt ontspanning aan 2 personen.
Multimedia
In de vakantiewoning is aanwezig 2 televisies. Radio. Playstation4. Tenminste 4 deense zenders. Tenminste 4 duitse zenders. Draadloos internet.
Goed om te weten
Youth groups (15-25 years of age) not allowed. Smoking is prohibited. By violation of this prohibition a fee of min. EUR 420 will be charged.
Vakantiehuis is geschikt voor 8 personen en 1 kinderen tot 3 jaar. De vakantiewoning heeft een oppervlakte van 175 m2 en is gebouwd in 2019. Het is toegestaan om 2 huisdieren mee te nemen. De vakantiewoning is uitgerust met warmtepomp. Vloerverwarming in alle stenen vloeren. De vakantiewoning heft Wasmachine. Wasdroge. Vriezer capaciteit van 60 liter. Er is daarnaast houtkachel. Voor de kleintjes 1 stukken Kinderstoel.
Buiten
De vakantiewoning is gelegen op een 2100 m² groot natuural grond. Afstand tot de zee 1500 m. Dichtstbijzijnde winkel 1200 m. Bij de vakantiewoning hoort 200 m² terras. Daarnaast is er een 37 m² groot overdekt terras. Schommel.Vuurplaats. Buitendouche. Parkeerplaats bij het huis.
Activiteitenruimte
Activiteitenruimte. Biljart.Tafeltennis. Dart. Tafelvoetbal.
Slaapomstandigheden
Er zijn in totaal 4 slaapkamers. De slaapplaatsen zijn als volgt verdeeld: 4 slaapplaatsen in tweepersoonsbedden. 4 slaapplaatsen in eenpersoonsbedden.- 2 van deze slaapplaatsen bevinden zich in de bijgebouw. Verder is kinderbed ter beschikking.
Keuken
De keuken is uitgerust met 2 koelkasten Er is 4 inductiekookplaten, heteluchtoven, magnetron en vaatwasser.
Douche en toilet
Er is 3 badkamers met douchehok en 3 toiletten. Er is vloerverwarming in 3 van de badkamers. De infraroodsauna biedt de gelegenheid tot ontspanning.
Bubbelbad
Het binnenbubbelbad (vulwater) biedt ontspanning aan 2 personen.
Multimedia
In de vakantiewoning is aanwezig 2 televisies. Radio. Playstation4. Tenminste 4 deense zenders. Tenminste 4 duitse zenders. Draadloos internet.
Goed om te weten
Youth groups (15-25 years of age) not allowed. Smoking is prohibited. By violation of this prohibition a fee of min. EUR 420 will be charged.
7 nachten
Vanaf
€ 741,-
Optionele schoonmaak: EUR 237,-
Prijzen en kalender
Duur
Aankomst
-
augustus 2026
ma di wo do vr za zo 31 1 2 32 3 4 5 6 7 8 9 33 10 11 12 13 14 15 16 34 17 18 19 20 21 22 23 35 24 25 26 27 28 29 30 36 31 -
september 2026
ma di wo do vr za zo 36 1 2 3 4 5 6 37 7 8 9 10 11 12 13 38 14 15 16 17 18 19 20 39 21 22 23 24 25 26 27 40 28 29 30 41
Kijk of het object beschikbaar is op de geselecteerde datum
Vrij
Bezet
Aankomst mogelijk
Prijs
Periode
- Aankomst
- Vertrek
- Duur
- 1 week
Personen
Tot 8 personen
Let op
Aankomst is niet geselecteerd.
Opmerkingen