Slusen - 6960 - Hvide Sande

Objectnr: 039-740
  • Personen
    6 personen
  • Slaapkamers3 Slaapkamers
  • Badkamers2 Badkamers
  • Woonoppervlakte113 m² Woonoppervlakte
  • Huisdieren1 Huisdieren

Beschrijving

De beschrijving is helaas niet beschikbaar in het Nederlands. Bekijk de tekst hieronder in het Duits of bekijk de automatisch vertaalde tekst in Nederlands.

Nur wenige Meter trennen Sie vom Ringkøbing Fjord, wenn Sie sich für dieses tolle Ferienhaus in Hvide Sande entscheiden. Wohnraum, Terrasse und eines der insgesamt drei Schlafzimmer verwöhnen mit einem herrlichen Panoramaausblick und erinnern Sie laufend daran, wie weit Sie sich gerade abseits des hektischen Alltags befinden.

Einrichtung
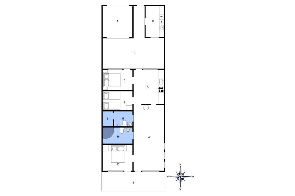
Direkt nach dem ersten Betreten dieses 113 m² großen Ferienhauses werden Sie spüren, wie der Stress und die Hektik des Alltags von Ihren Schultern abfallen. Der große Aufenthaltsraum, der die Küche und das Wohnzimmer offen in sich vereint, heißt Sie mit einer warmen und freundlichen Atmosphäre willkommen. Glücksgefühle weckt der beeindruckende Blick über den Fjord. An beiden Enden des Hauses - vor der Terrasse und vor dem Innenhof - befinden sich große Glaspartien, die einen reizvollen Tageslichteinfall gewähren. Eine gemütliche, typisch dänische Ferienhausstimmung zaubert der im Wohnraum platzierte Kaminofen. Pure Entspannung bieten Ihnen die beiden Badezimmer. In einem der Bäder erwartet Sie eine Sauna, im anderen steht eine spa zur Verfügung. Die drei Schlafzimmer bieten Platz für insgesamt sechs Personen. Praktischerweise ist im Nebengebäude ein Hauswirtschaftsraum untergebracht, in dem eine Waschmaschine, ein Wäschetrockner, eine zusätzliche Gefriermöglichkeit und ein Fischreinigungsplatz für Sie bereitstehen.

Außenbereich
Auf der nach Süden ausgerichteten Terrasse genießen Sie wunderbare Stunden in der Sonne, die von einem reizvollen Blick über das Wasser untermalt werden. Gänzlich ungestört und angenehm windgeschützt geht es hingegen im komplett geschlossenen Innenhof zu, der zwischen dem Ferienhaus, dem Nebengebäude und der Garage liegt.

Lage
Angler werden einen Großteil ihres Urlaubs an den guten Angelplätzen an der beliebten Schleuse Hvide Sandes verbringen, die nach wenigen Metern zu Fuß erreicht ist. Ein kurzer Spaziergang trennt Sie von den Räuchereien des Ortes, von den guten Restaurants und den interessanten Geschäften, die sich im Ortskern auf Ihren Besuch freuen. Die Nordsee und die schönen Sandstrände sind ebenfalls fußläufig erreichbar. Falls Sie Ihre Fahrräder mitgebracht haben, möchten wir Ihnen unbedingt Touren durch die wunderschöne Dünen- und Heidelandschaft Holmsland Klits ans Herz legen.

GRATIS! Kostenloser Verleih von Kinderreisebetten und Hochstühlen. Mieter eines Hauses, in das ein Hund mitgebracht werden darf, können ein Hundebett ausleihen. Die Abholung und Rückgabe erfolgt bei .

Lademöglichkeit für E-Autos: Schauen Sie bitte unter "Ausstattung" nach, ob bei diesem Mietobjekt eine Lademöglichkeit für E-Autos vorhanden ist.

7 nachten
Vanaf 951,-
Incl. schoonmaak en verzekering
6 personen

Prijzen en kalender

Duur
Personen
Aankomst
Vorige Volgende
  • maart 2026
    madiwodovrzazo
    91
    102345678
    119101112131415
    1216171819202122
    1323242526272829
    143031
  • april 2026
    madiwodovrzazo
    1412345
    156789101112
    1613141516171819
    1720212223242526
    1827282930
    19
   Kijk of het object beschikbaar is op de geselecteerde datum
Vrij
Bezet
   Aankomst mogelijk

Prijs

Periode
Aankomst
Vertrek
Duur
1 week
Personen
Geen personen geselecteerd

Let op

Aankomst is niet geselecteerd.
Er zijn geen personen geselecteerd.
Contract- en huurvoorwaarden

Indeling & inrichting

Ligging & omgeving

Locatie pin Kaart Denemarken

Onze gastbeoordelingen Externe beoordelingen

3,0 gemiddeld 1 waardering
5
(0)
4
(0)
3
(1)
2
(0)
1
(0)

Opmerkingen

Geen beoordelingen hebben commentaar op Nederlands
Beoordeling van 1 bevat commentaar in een andere taal.

Klantenservice

Stel ons een vraag over dit object

Klik hier om ons een vraag over dit object te sturen.