Mamrelund - 6960 - Hvide Sande

Objectnr: 328-165237
  • Personen
    5 personen
  • Slaapkamers3 Slaapkamers
  • Badkamers2 Badkamers
  • Woonoppervlakte140 m² Woonoppervlakte
  • HuisdierenNiet toegestaan Huisdieren

Beschrijving

De beschrijving is helaas niet beschikbaar in het Nederlands. Bekijk de tekst hieronder in het Engels of bekijk de automatisch vertaalde tekst in Nederlands.

Stylish and modern houseboat offering unique opportunities for a relaxing waterside holiday. Fantastic location in Mamrelund, with beautiful views across the fjord, harbour and central Hvide Sande, whilst being close to the beach, shops and restaurants.

Experience your next holiday on this elegant houseboat in Mamrelund, Hvide Sande

This houseboat serves as a beautiful holiday home in a unique setting, where you can enjoy both nature and the authentic harbour atmosphere of Hvide Sande right on your doorstep.

The houseboat is situated on Ringkøbing Fjord, where gentle waves provide the perfect backdrop for a relaxing holiday atmosphere, whether you're sunbathing on the terrace or enjoying evening barbecues.

Premium quality and stylish furnishings for an unforgettable stay

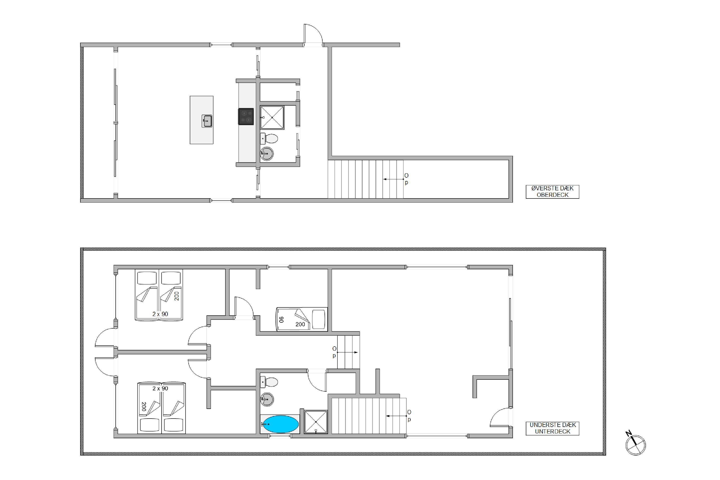
The architecture is elegant, simple and maritime, with stylish and appealing furnishings throughout. The 140 square metres are spread across two levels, practically arranged with a bathroom on each floor.

There's also a beautiful kitchen where you can prepare delicious meals when you're not barbecuing or visiting one of the excellent restaurants in Hvide Sande. The houseboat features an energy-efficient heat pump system for heating.

Beautiful location and views create a unique holiday atmosphere

The houseboat features terraces on both levels. The lower level has a smaller terrace, while upstairs you'll find a considerably larger, partially sheltered terrace. From here, you can enjoy beautiful views across the fjord and Hvide Sande harbour.

Enjoying dinner on the terrace, prepared on the gas barbecue - with sunsets over Hvide Sande as your backdrop - is sure to be balm for body and soul.

Thanks to the central location in Hvide Sande, you're just moments from the beach and shops. The location is particularly attractive for anglers, with the lock directly opposite being an excellent spot for herring fishing.

Please note that parking is not available directly at the houseboat - it's approximately 100 metres from the car park to the holiday home.

Google Photo F4042Google Maps F4042

7 nachten
Vanaf 994,-
Incl. schoonmaak

Prijzen en kalender

Duur
Aankomst
Volgende
  • december 2025
    madiwodovrzazo
    491234567
    50891011121314
    5115161718192021
    5222232425262728
    1293031
    2
  • januari 2026
    madiwodovrzazo
    11234
    2567891011
    312131415161718
    419202122232425
    5262728293031
    6
   Kijk of het object beschikbaar is op de geselecteerde datum
Vrij
Bezet
   Aankomst mogelijk

Prijs

Periode
Aankomst
Vertrek
Duur
1 week
Personen
Tot 5 personen

Let op

Aankomst is niet geselecteerd.
Contract- en huurvoorwaarden

Indeling & inrichting

Ligging & omgeving

Locatie pin Kaart Denemarken

Klantenservice

Stel ons een vraag over dit object

Klik hier om ons een vraag over dit object te sturen.