Langsand - 6960 - Hvide Sande

Objectnr: 328-225179
  • Personen
    4 personen
  • Slaapkamers2 Slaapkamers
  • Badkamers1 Badkamers
  • Woonoppervlakte50 m² Woonoppervlakte
  • Huisdieren1 Huisdieren

Beschrijving

De beschrijving is helaas niet beschikbaar in het Nederlands. Bekijk de tekst hieronder in het Engels of bekijk de automatisch vertaalde tekst in Nederlands.

Completed in 2022, this holiday home at Langsand 230 welcomes you in the small coastal town of Hvide Sande, directly adjacent to the idyllic Ringkøbing Fjord. Accommodating up to 4 people, it's perfect for a small family or couple. Equipped with a washing machine, electric car charging point, and complimentary underfloor heating, this holiday home offers everything for a relaxing holiday.

Holiday in Hvide Sande by Ringkøbing Fjord

Your holiday home is situated near a small fjord harbour in the charming coastal town of Hvide Sande. Langsand is located right by the fjord and harbour, a paradise for anglers and water sports enthusiasts. Let yourself be enchanted by the idyllic tranquillity and enjoy peaceful moments walking along the waterfront.

To the west of Hvide Sande, the rolling North Sea provides a contrast to the peaceful fjord. Here you can collect shells and build sandcastles, and you might even spot a seal.

Cosy holiday home with complimentary heating

Your holiday home in Langsand offers comfort and cosiness. Practical and modern amenities including a dishwasher and combined washer-dryer take care of household chores, ensuring pure relaxation during your holiday.

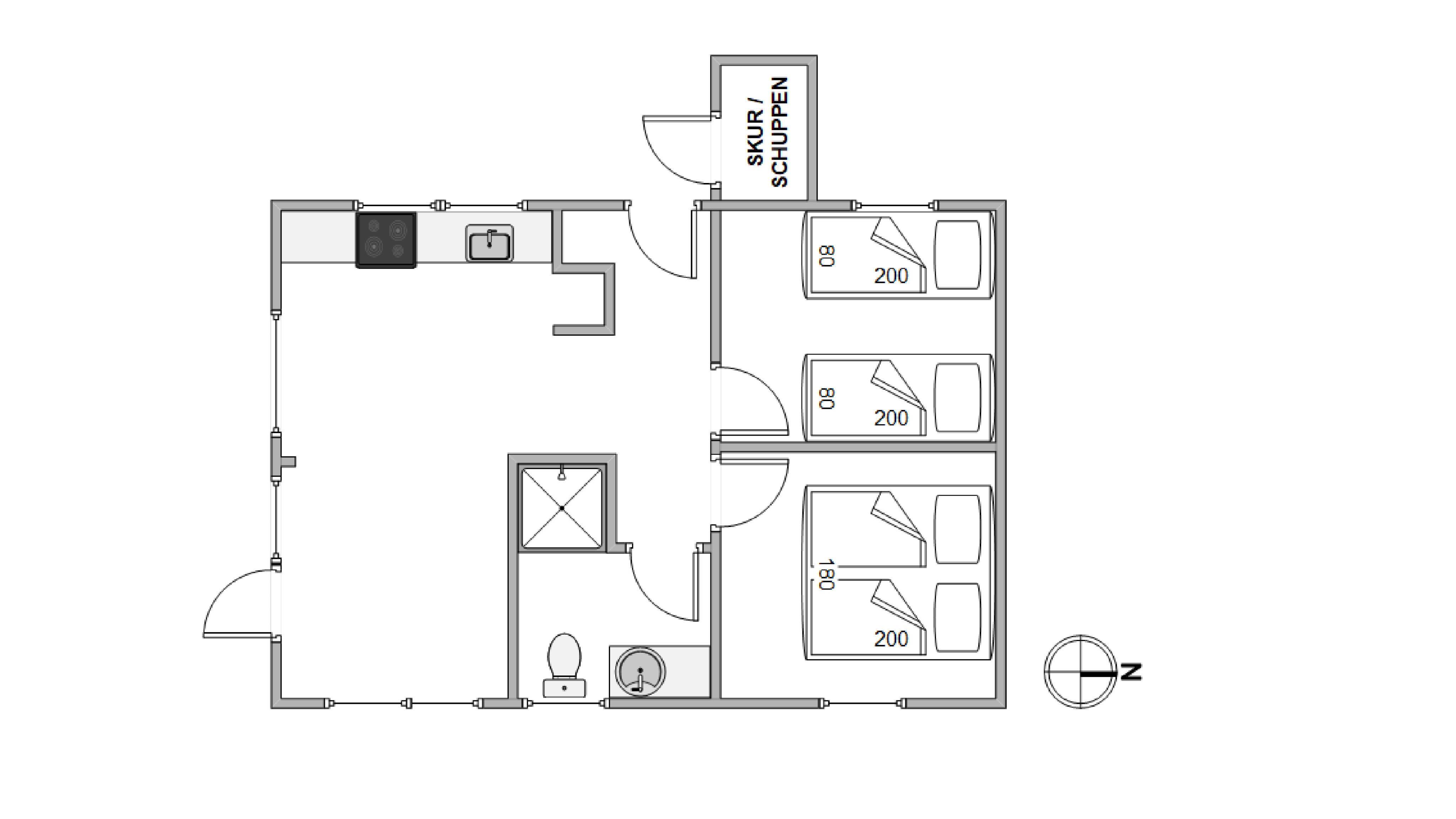
Complimentary underfloor heating throughout the house keeps your feet pleasantly warm. The holiday home features one bathroom and two bedrooms. The bedrooms are furnished with one double bed and two single beds, all with quality mattresses.

Relaxing summer days in the fresh air

Make yourself comfortable in the outdoor area of your holiday home and enjoy the fresh air between the North Sea and fjord. A sheltered terrace awaits you with comfortable garden furniture, parasol, and gas barbecue, perfect for relaxing with a cool drink.

Electric car charging facility

Your electric car can be charged at the holiday home's charging point, ready for exciting excursions. Why not visit Legoland, approximately one hour's drive away? This is sure to be an exciting experience for children.

The electric car charging point features a CEE combination socket - please bring the relevant charging cable.

7 nachten
Vanaf 404,-

Prijzen en kalender

Duur
Aankomst
Vorige Volgende
  • januari 2026
    madiwodovrzazo
    11234
    2567891011
    312131415161718
    419202122232425
    5262728293031
    6
  • februari 2026
    madiwodovrzazo
    51
    62345678
    79101112131415
    816171819202122
    9232425262728
    10
   Kijk of het object beschikbaar is op de geselecteerde datum
Vrij
Bezet
   Aankomst mogelijk

Prijs

Periode
Aankomst
Vertrek
Duur
1 week
Personen
Tot 4 personen

Let op

Aankomst is niet geselecteerd.
Contract- en huurvoorwaarden

Indeling & inrichting

Ligging & omgeving

Locatie pin Kaart Denemarken

Klantenservice

Stel ons een vraag over dit object

Klik hier om ons een vraag over dit object te sturen.