Comfortabel vakantiehuis met sauna en bubbelbad
Birkelunden - Jegum - 6840 - Oksbøl
Objectnr: 121-25-2176
Ruim vakantiehuis met sauna, bubbelbad en groot terras in Oksbøl.
Beschrijving
Inrichting
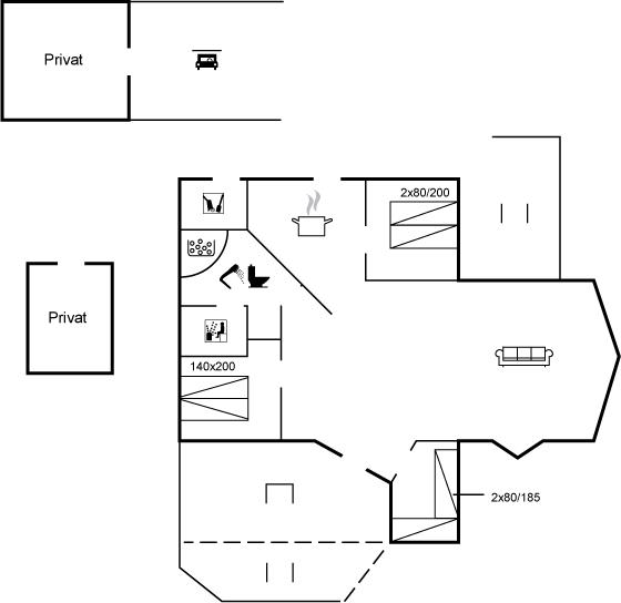
Vakantiehuis is geschikt voor 6 personen. De vakantiewoning heeft een oppervlakte van 89 m2 en is gebouwd in 1997. In 2007 ondergingen de vakantiewoning een gedeeltelijke renovatie. Het is toegestaan om 1 huisdieren mee te nemen. De vakantiewoning is uitgerust met warmtepomp. De vakantiewoning heft Wasmachine. Vriezer capaciteit van 35 liter. Er is daarnaast houtkachel.
Buiten
De vakantiewoning is gelegen op een 1568 m² groot natuural grond. Afstand tot de zee 10000 m. Dichtstbijzijnde winkel 500 m. Bij de vakantiewoning hoort 15 m² terras. Daarnaast is er een 20 m² groot overdekt terras. Schommel. Glijbaan. Carport ter beschikking. Parkeerplaats bij het huis.
Slaapomstandigheden
Er zijn in totaal 3 slaapkamers. De slaapplaatsen zijn als volgt verdeeld: 4 slaapplaatsen in tweepersoonsbedden. 2 slaapplaatsen in eenpersoonsbedden.
Keuken
De keuken is uitgerust met koelkast Er zijn 4 keramische kookplaten, heteluchtoven, magnetron en vaatwasser.
Douche en toilet
Er is 1 badkamer met douchehok en 1 toilet.. Er is vloerverwarming in 1 badkamer. De sauna biedt de gelegenheid tot ontspanning.
Bubbelbad
Het binnenbubbelbad (vulwater) biedt ontspanning aan 2 personen.
Multimedia
In de vakantiewoning is aanwezig televisie. Radio. CD-speler. Tenminste 4 deense zenders. Tenminste 4 duitse zenders. Draadloos internet.
Goed om te weten
Youth groups (15-25 years of age) not allowed. Smoking is prohibited. By violation of this prohibition a fee of min. EUR 420 will be charged.
Vakantiehuis is geschikt voor 6 personen. De vakantiewoning heeft een oppervlakte van 89 m2 en is gebouwd in 1997. In 2007 ondergingen de vakantiewoning een gedeeltelijke renovatie. Het is toegestaan om 1 huisdieren mee te nemen. De vakantiewoning is uitgerust met warmtepomp. De vakantiewoning heft Wasmachine. Vriezer capaciteit van 35 liter. Er is daarnaast houtkachel.
Buiten
De vakantiewoning is gelegen op een 1568 m² groot natuural grond. Afstand tot de zee 10000 m. Dichtstbijzijnde winkel 500 m. Bij de vakantiewoning hoort 15 m² terras. Daarnaast is er een 20 m² groot overdekt terras. Schommel. Glijbaan. Carport ter beschikking. Parkeerplaats bij het huis.
Slaapomstandigheden
Er zijn in totaal 3 slaapkamers. De slaapplaatsen zijn als volgt verdeeld: 4 slaapplaatsen in tweepersoonsbedden. 2 slaapplaatsen in eenpersoonsbedden.
Keuken
De keuken is uitgerust met koelkast Er zijn 4 keramische kookplaten, heteluchtoven, magnetron en vaatwasser.
Douche en toilet
Er is 1 badkamer met douchehok en 1 toilet.. Er is vloerverwarming in 1 badkamer. De sauna biedt de gelegenheid tot ontspanning.
Bubbelbad
Het binnenbubbelbad (vulwater) biedt ontspanning aan 2 personen.
Multimedia
In de vakantiewoning is aanwezig televisie. Radio. CD-speler. Tenminste 4 deense zenders. Tenminste 4 duitse zenders. Draadloos internet.
Goed om te weten
Youth groups (15-25 years of age) not allowed. Smoking is prohibited. By violation of this prohibition a fee of min. EUR 420 will be charged.
7 nachten
Vanaf
€ 440,-
Optionele schoonmaak: EUR 173,-
Prijzen en kalender
Prijs
Periode
- Aankomst
- Vertrek
- Duur
- 1 week
Personen
Tot 6 personen
Let op
Aankomst is niet geselecteerd.
Opmerkingen