Grønnevænget - 7130 - Juelsminde

Objectnr: 014-40163
  • Personen
    4 personen
  • Slaapkamers2 Slaapkamers
  • Badkamers1 Badkamers
  • Woonoppervlakte74 m² Woonoppervlakte
  • HuisdierenNiet toegestaan Huisdieren

Beschrijving

De beschrijving is helaas niet beschikbaar in het Nederlands. Bekijk de tekst hieronder in het Duits of bekijk de automatisch vertaalde tekst in Nederlands.

Willkommen in diesem richtig gemütlichen Ferienhaus mit schöner Lage und stimmungsvoller Einrichtung.

Willkommen in deinem Ferienhaus
Du betrittst das Ferienhaus durch die Küche, die neben einem Geschirrspüler alles bietet, was du für die Zubereitung deiner Urlaubsmahlzeiten benötigst. Der geräumige Wohnraum strahlt viel Gemütlichkeit und nordischen Charme aus.

Er beinhaltet einen schönen Essplatz, eine ansprechende Polstersitzgruppe und einen Kaminofen. Der Fernseher lädt zu entspannten Filmabenden ein. Du empfängst zwar keine gewöhnlichen Fernsehsender, kannst aber mittels deines Smartphones oder Tablets Chromecast zum Streamen deiner privaten Streamingabos nutzen. Zwei komfortable Schlafräume mit je einem Doppelbett und ein Badezimmer stehen für dich und deine Familie bereit.

Genieße das Leben im Freien
Du verbringst deine Urlaubstage in einem ruhigen Weg mit begrenztem Verkehrsaufkommen. Das Haus befindet sich in einem gefragten Bereich Juelsmindes - nah am Storstranden und an der Ortsmitte. Auf der großen Grasfläche könnt ihr gemeinsam spielen und umhertollen. Der Garten ist umzäunt - ein Umstand, den du insbesondere als Hundebesitzer sicher sehr zu schätzen weißt.

Zahllose entspannte Stunden im Familienkreis wirst du auf den Terrassen verleben. Gartenmöbel stehen bereit und laden zu Sonnenbädern und gemütlichen Essen im Freien ein. Lediglich 200 Meter trennen dein Ferienhaus von einem schönen Badestrand, der mit einem angenehm sandigen Untergrund zu überzeugen weiß.

Entdecke deine Umgebung
Der Hafenort Juelsminde ist für seinen traumhaft maritimen Hafenbereich, die kinderfreundlichen Strände und den reizenden Ortskern mit interessanten Geschäften, guten Einkaufsmöglichkeiten und schönen Lokalitäten bekannt. Obwohl es ringsum ruhig und beschaulich zugeht, bieten sich dennoch zahllose Aktivitätsmöglichkeiten für deine gesamte Familie.

Nach 1.000 Meter erreichst du den stimmungsvollen Sportboothafen mit Fischrestaurants und Eisläden. Du kannst im Hafenbereich mit deiner Familie Minigolf spielen, mit dem Kindern vom Steg aus Krebse fangen und dich beim Ausblick über das Wasser bestens entspannen.

In ungefähr gleicher Entfernung triffst du auf Einkaufsmöglichkeiten. Falls du mit Kindern anreist, dürft ihr euch keinesfalls einen Besuch des grandiosen Naturspielplatzes am Fuße des Odelsbjerget entgehen lassen. Der Spielplatz begeistert mit einem 8 Meter hohen Kletterturm, diversen Rutschen, Spielgeräten, Geschicklichkeitsparcours, Paddeltennis-Anlagen und vielem mehr. Nicht nur Kinderaugen beginnen hier zu strahlen!

Als Golfer schwingst du die Schläger auf dem nur 2,5 Kilometer entfernten 18-Loch-Platz des Ortes. Zu den zügig erreichbaren großen Sehenswürdigkeiten zählen unter anderen das weltberühmte Legoland und der Givskud Zoo.

Wir freuen uns darauf, dich und deine Familie in Juelsminde begrüßen zu dürfen!.


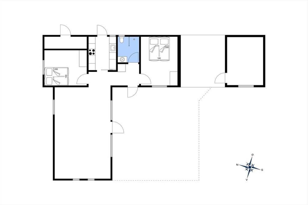
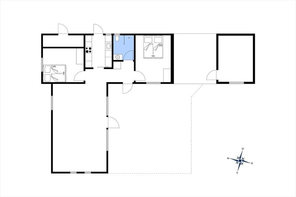
Raumaufteilung

  • Schlafzimmer
    • Doppelbett - 140 x 200 cm
  • Schlafzimmer
    • Doppelbett - 160 x 200 cm
  • Badezimmer
  • Küche
  • Wohnzimmer
7 nachten
Vanaf 540,-
Incl. schoonmaak en verzekering
4 personen

Prijzen en kalender

Duur
Personen
Aankomst
Volgende
  • maart 2026
    madiwodovrzazo
    91
    102345678
    119101112131415
    1216171819202122
    1323242526272829
    143031
  • april 2026
    madiwodovrzazo
    1412345
    156789101112
    1613141516171819
    1720212223242526
    1827282930
    19
   Kijk of het object beschikbaar is op de geselecteerde datum
Vrij
Bezet
   Aankomst mogelijk

Prijs

Periode
Aankomst
Vertrek
Duur
1 week
Personen
Geen personen geselecteerd

Let op

Aankomst is niet geselecteerd.
Er zijn geen personen geselecteerd.
Contract- en huurvoorwaarden

Indeling & inrichting

Ligging & omgeving

Locatie pin Kaart Denemarken

Onze gastbeoordelingen Externe beoordelingen

4,0 gemiddeld 2 waarderingen
5
(1)
4
(0)
3
(1)
2
(0)
1
(0)

Opmerkingen

Geen beoordelingen hebben commentaar op Nederlands
Beoordeling van 1 bevat commentaar in een andere taal.

Klantenservice

Stel ons een vraag over dit object

Klik hier om ons een vraag over dit object te sturen.