Hyllerødvej - Juelsminde - 8783 - Hornsyld

Objectnr: 100-62391
  • Personen
    8 personen
  • Slaapkamers4 Slaapkamers
  • Badkamers1 Badkamers
  • Woonoppervlakte100 m² Woonoppervlakte
  • HuisdierenNiet toegestaan Huisdieren

Beschrijving

De beschrijving is helaas niet beschikbaar in het Nederlands. Bekijk de tekst hieronder in het Duits of bekijk de automatisch vertaalde tekst in Nederlands.

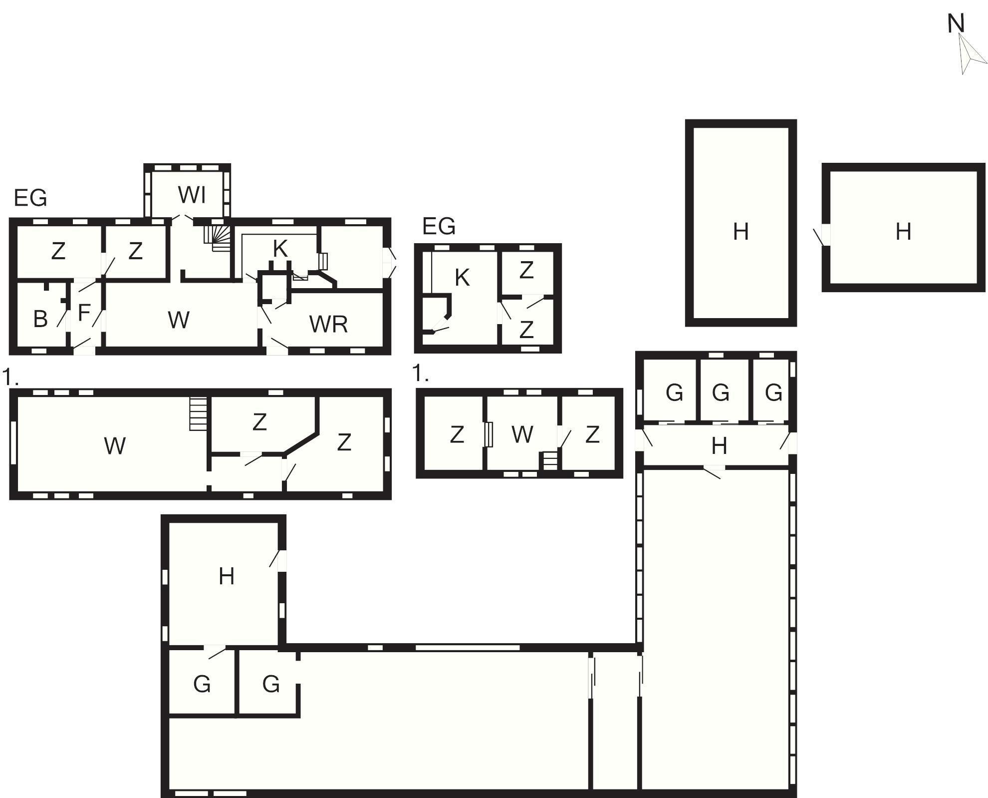
Idyllisches Landhaus zu vermieten – ein wahres Juwel! Träumen Sie von Ruhe, Frieden und wunderschöner Natur? Dieses charmante Landhaus liegt auf einem unberührten Grundstück und bietet viel Platz, sowohl drinnen als auch draußen. Der riesige Garten bietet viele gemütliche Ecken – perfekt für Sonne und Schatten. Ein wahres Paradies für Kinder, denn der Garten ist so groß, dass Platz für Fußball, Verstecken und viele andere Spiele ist. Sie können auch Stockbrot am Lagerfeuer backen, Brennholz wird kostenlos zur Verfügung gestellt. Alle Früchte und Kräuter stehen ebenfalls kostenlos zur Verfügung. Für Abenteuerlustige gibt es einen geräumigen Unterstand mit Platz für vier Personen und ein gut ausgebautes Wegenetz für Spaziergänge in der malerischen Umgebung. Das Haus verfügt über fünf gemütliche Schlafzimmer, eine große und gut ausgestattete Landhausküche mit geräumiger Kochinsel und eingebauter Fritteuse – und mit frischen Kräutern direkt vor der Tür. Und es ist immer mit den wichtigsten Lebensmitteln gefüllt, die ebenfalls kostenlos zur Verfügung stehen. Und falls Sie doch einmal etwas benötigen, ist der Lebensmittelladen nur 5 Autominuten entfernt. Darüber hinaus verfügt das Haus über mehrere gemütliche Wohnzimmer, in denen Sie die Atmosphäre und die malerische Lage genießen können. Im Nebengebäude befindet sich der „Pferdestall“, der zu einer stimmungsvollen Lounge mit Bar umgebaut wurde und ausreichend Platz für 12 Personen bietet – der perfekte Treffpunkt, wenn die Kinder zu Bett gehen und die Erwachsenen einen entspannten Abend verbringen möchten. Ein wahres Juwel inmitten der Natur – perfekt zum Entspannen! Sollten Sie mehr Schlafplätze benötigen, kann das Nebengebäude unter E10031 gebucht werden.


4 Schlafz.: (2B)+(2B)+(2B)+(2B)
1 Mehrzweckr.: Chromecast, TV, E-Herd, Kühl-Gefrier-Kombi, Mikrow., Kaffeem., Spülm.
Bad: WC, Waschb., Dusche
Und: Zentralheiz., Garten 25000 m2, reizvolle Lage, Nichtraucherhaus

7 nachten
Vanaf 1.273,-

Prijzen en kalender

Duur
Aankomst
Volgende
   Kijk of het object beschikbaar is op de geselecteerde datum
Vrij
Bezet
   Aankomst mogelijk

Prijs

Periode
Aankomst
Vertrek
Duur
1 week
Personen
Tot 8 personen

Let op

Aankomst is niet geselecteerd.
Contract- en huurvoorwaarden

Indeling & inrichting

Ligging & omgeving

Locatie pin Kaart Denemarken

Klantenservice

Stel ons een vraag over dit object

Klik hier om ons een vraag over dit object te sturen.