Sandrenden 4 A - Lønstrup - 9800 - Hjørring

Objectnr: 123-LN1150
  • Personen
    4 personen
  • Slaapkamers3 Slaapkamers
  • Badkamers1 Badkamers
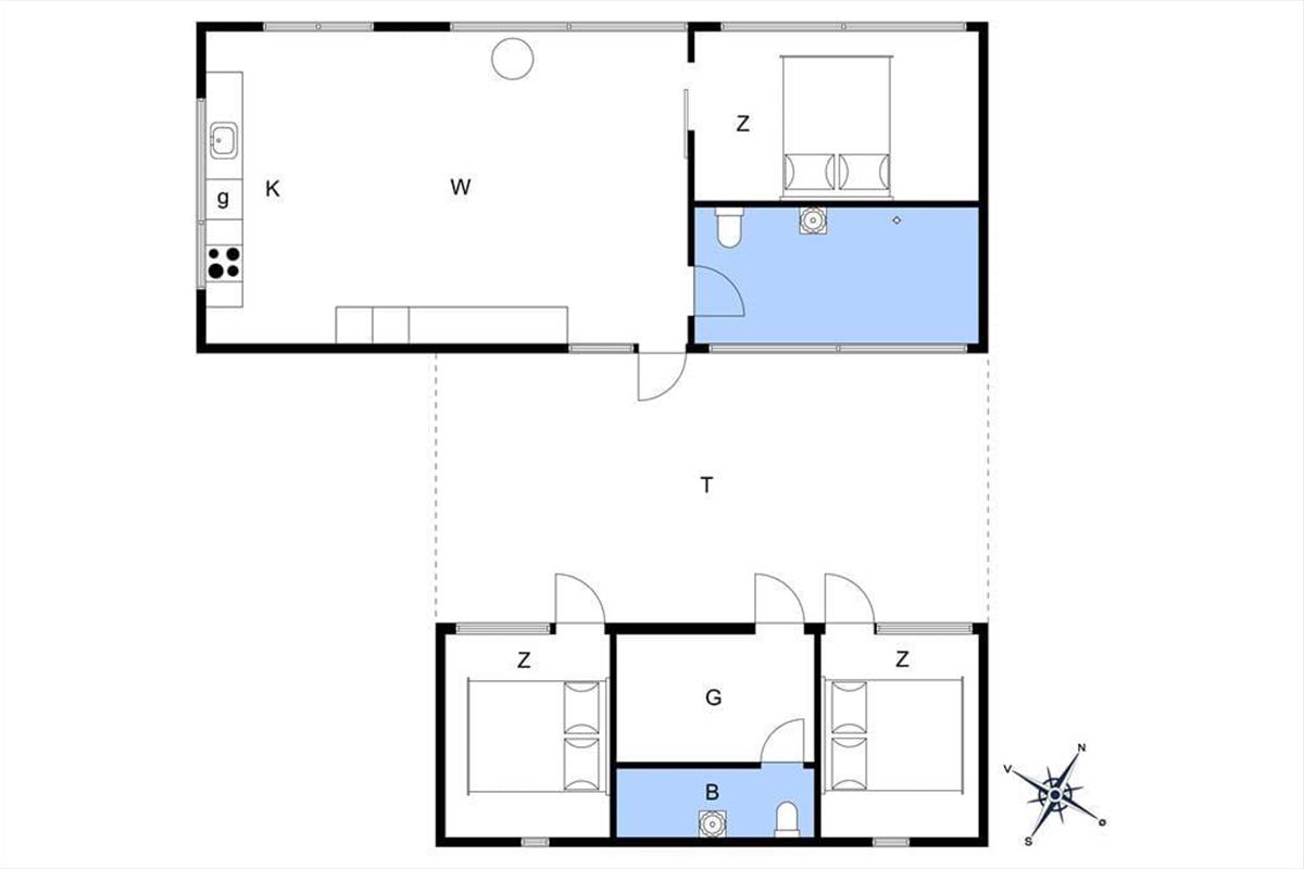
  • Woonoppervlakte70 m² Woonoppervlakte
  • HuisdierenNiet toegestaan Huisdieren

Beschrijving

De beschrijving is helaas niet beschikbaar in het Nederlands. Bekijk de tekst hieronder in het Duits of bekijk de automatisch vertaalde tekst in Nederlands.

Ein schönes Ferienhaus, das beim Betreten bereits Gemütlichkeit versprüht.
Bestens geeignet für eine kleine Familie oder ein Paar, die gerne in der Nähe des Ortes wohnen und gleichzeitig einen fantastischen Ausblick genießen möchten. Außerdem können Sie den Leuchtturm von Hirtshals und die ein- und ausfahrenden Fähren beobachten.

Willkommen in deinem Ferienhaus
Ein Ferienhaus, das ein wenig aus dem Rahmen fällt: Außen ist es aus Zedernholz gebaut, einem starken Material, das dem rauen nordjütländischen Klima mit Wind, Wasser und Salz standhält. Auch im Inneren gibt es neue und unkonventionelle Möglichkeiten, verschiedene Materialien zu verwenden: Holz, Beton, Stahl und Glas harmonieren gut miteinander und vermitteln einen modernen, aber dennoch warmen und einladenden Eindruck. Das Ferienhaus besteht aus einem großen Küchen- und Wohnbereich, einem Schlafzimmer und einem Badezimmer im Haupthaus und zwei Schlafzimmern im Nebengebäude. Es eignet sich daher sowohl für Paare als auch für Familienurlaube, und vom Haupthaus aus haben Sie eine fantastische Aussicht auf die Nordsee, an klaren Tagen können Sie bis zum Leuchtturm von Hirtshals sehen und die auslaufenden Fähren verfolgen. Was das Fernsehen betrifft, ist es möglich, mit Chromecast zu streamen und was das Radio betrifft, haben Sie Zugang zu Sony usb playrack für iPhone, iPad usw. Eine absolut schöne und gut funktionierende Umgebung für einen unvergesslichen Urlaub in einem der schönsten Urlaubsgebiete Dänemarks.

Genieße das Leben im Freien
Das Ferienhaus liegt erhöht auf einem hügeligen Naturgrundstück mit reichlich Möglichkeiten für tolle Naturerlebnisse. Rund um das Haus gibt es zwei ausgezeichnete Terrassen. Von beiden Terrassen können Sie den wunderbaren Ausblick genießen. Der Weg zum Haus ist ein bisschen steil und es gibt nur einen einfachen Parkplatz. Es kann aber auch der Parkplatz beim Kaufmann benutzt werden, der ungefähr 100 Meter vom Haus entfernt ist.

Entdecke deine Umgebung
Das Ferienhaus liegt in dem attraktiven Gebiet ”Harerenden” in kurzer Entfernung nach Lønstrup, das kleine gemütliche Galerien, offene arbeitende Kunstgalerien, exzellente Restaurants und kleine niedliche Geschäfte anbietet. Die nächstgrößere Stadt ist Hjørring, mit vielen erstklassigen Einkaufsmöglichkeiten. Falls Kinder mitreisen, empfehlen wir einen Tagesausflug in Dänemarks besten Freizeitpark, Faarup Sommerland, bei Blokhus.

Denk daran, dass du bei Lønstrup jederzeit Bollerwagen, Hochstühle und Kinderreisebetten leihen kannst. Diese holst du direkt bei uns im Büro ab und bringst sie wieder, wenn du deine Heimreise antrittst.

7 nachten
1.386,-
Incl. schoonmaak en verzekering
4 personen

Prijzen en kalender

Duur
Personen
Aankomst
Vorige Volgende
  • juni 2026
    madiwodovrzazo
    231234567
    24891011121314
    2515161718192021
    2622232425262728
    272930
    28
  • juli 2026
    madiwodovrzazo
    2712345
    286789101112
    2913141516171819
    3020212223242526
    312728293031
    32
   Kijk of het object beschikbaar is op de geselecteerde datum
Vrij
Bezet
   Aankomst mogelijk

Prijs

Periode
Aankomst
Vertrek
Duur
1 week
Personen
Geen personen geselecteerd

Let op

Aankomst is niet geselecteerd.
Er zijn geen personen geselecteerd.
Contract- en huurvoorwaarden

Indeling & inrichting

Ligging & omgeving

Locatie pin Kaart Denemarken

Onze gastbeoordelingen Externe beoordelingen

5,0 gemiddeld 1 waardering
5
(1)
4
(0)
3
(0)
2
(0)
1
(0)

Opmerkingen

Geen beoordelingen hebben commentaar op Nederlands
Beoordeling van 1 bevat commentaar in een andere taal.

Klantenservice

Stel ons een vraag over dit object

Klik hier om ons een vraag over dit object te sturen.