Næsset - Lønstrup - 9800 - Hjørring

Objectnr: 123-LN1831
  • Personen
    6 personen
  • Slaapkamers3 Slaapkamers
  • Badkamers2 Badkamers
  • Woonoppervlakte97 m² Woonoppervlakte
  • HuisdierenNiet toegestaan Huisdieren

Beschrijving

De beschrijving is helaas niet beschikbaar in het Nederlands. Bekijk de tekst hieronder in het Duits of bekijk de automatisch vertaalde tekst in Nederlands.

Die Aussicht auf Rubjerg Knude ist nur eines der zahlreichen schönen Details, mit denen dieses herrliche Ferienhaus zu begeistern weiß. Mindestens genauso schön sind die geschmackvolle Einrichtung, die Ausstattung mit einem Whirlpool, einer Sauna und einem Kaminofen und die ruhige und dennoch zentrale Lage in Lønstrup.

Willkommen in deinem Ferienhaus
Dank der hellen Holzvertäfelungen der Wände, der hohen Decken und der großen Fensterfronten begrüßt Sie dieses 97 m² große, geräumige Urlaubsdomizil mit einer wunderbar leichten und luftigen Wohnatmosphäre. Die ansprechende Atmosphäre wird sehr schön durch die stilvolle Einrichtung untermalt. Die Naturmaterialien und die hellen Farbtöne harmonieren wunderbar mit dem Haus und der wunderschönen Küstenlandschaft, die sich vor den Fenstern erstreckt. Der Aufenthaltsbereich vereint den Wohnraum und den offenen Küchen- und Essbereich in harmonischer Weise. Von hier aus gelangen Sie hinauf auf einen gemütlichen Schlafboden. Drei Schlafzimmer verteilen sich auf beide Enden des Hauses. Dazwischen liegen die beiden Badezimmer, von denen das größere mit einer Sauna und dem Whirlpool zu traumhaft erholsamen Momenten voller Wellnessflair einlädt.

Genieße das Leben im Freien
Das 1.200 m² große Grundstück verwöhnt mit einem Ausblick zum Meer und bietet Ihnen in der Einfahrt und im Carport gute Parkmöglichkeiten. Ausgedehnte Sonnenbäder und gemütliche Grillabende genießen Sie auf der teilweise überdachten, durchweg herrlichen Terrassenanlage, die sich gen Südwesten an das Urlaubsdomizil schmiegt.

Entdecke deine Umgebung
Das Ferienhaus liegt ruhig platziert im Herzen Lønstrups, ganz nah an der Küste. Von Ihrem Ferienhaus aus sehen Sie bereits das Meer. Wenn Sie an den Strand möchten, um zu baden oder spazieren zu gehen, nutzen Sie einfach die nur 200 Meter vom Haus entfernte Treppe, die Sie von der Kante der steilen Abhänge hinunter an den Strand führt. Angler können hier ebenfalls sehr gut ihrem Hobby nachgehen. Die Aussicht auf die imposante Wanderdüne Rubjerg Knude und den gleichnamigen Leuchtturm macht sicherlich Lust auf einen Ausflug. Nur wenige Kilometer trennen dieses attraktive Haus von der überaus beliebten Touristenattraktion. Dichter an Ihrem Ferienhaus liegt eigentlich nur der stimmungsvolle, beschauliche Ortskern Lønstrups, den Sie zu Fuß bereits nach wenigen Minuten erreichen.

Denk daran, dass du bei Lønstrup jederzeit Bollerwagen, Hochstühle und Kinderreisebetten leihen kannst. Diese holst du direkt bei uns im Büro ab und bringst sie wieder, wenn du deine Heimreise antrittst.



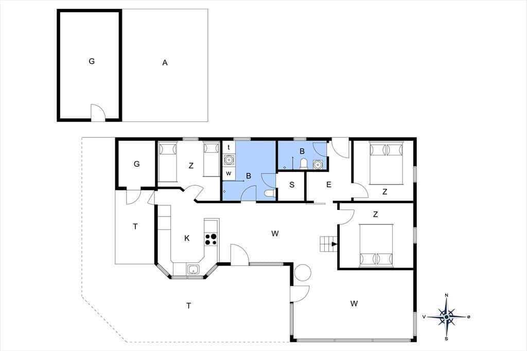
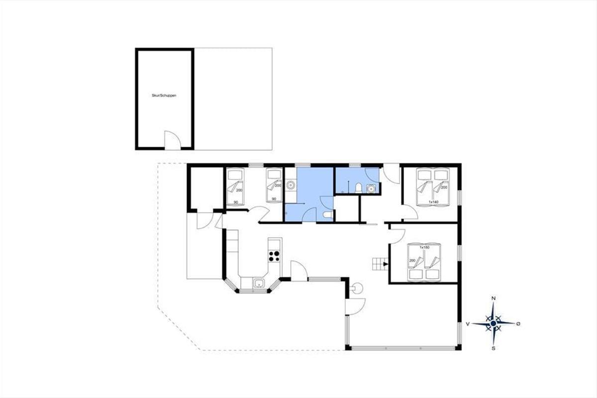
Raumaufteilung

  • Schlafzimmer
    • Einzelbett - 90 x 200
    • Einzelbett - 90 x 200
  • Schlafzimmer
    • Doppelbett - 140 x 200
  • Schlafzimmer
    • Doppelbett - 180 x 200
7 nachten
Vanaf 905,-
Incl. schoonmaak en verzekering
6 personen

Prijzen en kalender

Duur
Personen
Aankomst
Volgende
   Kijk of het object beschikbaar is op de geselecteerde datum
Vrij
Bezet
   Aankomst mogelijk

Prijs

Periode
Aankomst
Vertrek
Duur
1 week
Personen
Geen personen geselecteerd

Let op

Aankomst is niet geselecteerd.
Er zijn geen personen geselecteerd.
Contract- en huurvoorwaarden

Indeling & inrichting

Ligging & omgeving

Locatie pin Kaart Denemarken

Klantenservice

Stel ons een vraag over dit object

Klik hier om ons een vraag over dit object te sturen.