Hybenvej - Lønstrup - 9800 - Hjørring

Objectnr: 123-LN1920
  • Personen
    4 personen
  • Slaapkamers2 Slaapkamers
  • Badkamers1 Badkamers
  • Woonoppervlakte68 m² Woonoppervlakte
  • Huisdieren1 Huisdieren

Beschrijving

De beschrijving is helaas niet beschikbaar in het Nederlands. Bekijk de tekst hieronder in het Duits of bekijk de automatisch vertaalde tekst in Nederlands.

Schönes Ferienhaus mit guter Aussicht auf die Küstenlandschaft und das Meer
Dieses schöne Ferienhaus liegt ruhig am Ende einer Sackgasse und zugleich hoch in der Landschaft, sodass Sie sowohl vom Wohnzimmer als auch von der Terrasse einen Blick auf Harrerenden und die Nordsee genießen können. Mit anderen Worten, es ist ein wunderbarer Ort, wenn Sie einen echten Sommerhausurlaub in entspannter Atmosphäre verbringen möchten – und wenn Sie Ihren Hund mitbringen möchten, ist das hier erlaubt.

Willkommen in deinem Ferienhaus
Das rot gestrichene Holzferienhaus leuchtet in der hügeligen, grünen Landschaft, die sich entlang des Jammerbucht erstreckt. Die Aussicht ist hervorragend vom Wohnzimmer, das mit einer großen Fensterfront nach Norden ausgestattet ist. Selbst wenn Sie den ganzen Tag drinnen mit Büchern und Filmen nahe dem Kamin verbringen möchten, können Sie die naturschönen Umgebung genießen. Die Küche ist offen mit dem Wohnzimmer verbunden – und falls Sie mit dem Angelruten draußen waren und mehr gefangen haben, als Sie sofort essen können, gibt es einen Gefrierschrank im Nebengebäude. Im Badezimmer gibt es eine Dusche sowie eine Waschmaschine und einen Trockner, und die beiden Schlafzimmer werden durch ein Hochbett ergänzt, falls Teile der Gruppe lieber dort oben schlafen möchten.

Genieße das Leben im Freien
Die Aussicht auf das Meer und die frische, salzige Luft tragen dazu bei, dass das Leben im Freien besonders schön wird. Es gibt offene Terrassenbereiche nach Osten, Westen und Norden, und nach Süden können Sie in der Sonne auf der geschlossenen Terrasse entspannen – dies ist übrigens auch ein ausgezeichneter Platz, wenn der Hund frei herumlaufen möchte.

Entdecke deine Umgebung
Von der geschlossenen Hybenvej aus können Sie Pfade und kleine Straßen im Gebiet folgen, egal ob Sie zum Dorfladen in Harrerenden, zu der schönen Küstenlinie oder ins Zentrum von Lønstrup möchten. Wenn Sie eine längere Wanderung unternehmen wollen, sind die Skallerup Inlanddünen einen Besuch wert, und Rubjerg Knude ist ebenfalls ein Muss. Wenn Sie Lust haben, mehr von Nordjütland zu erkunden, ist es einfach, mit dem Auto von Blokhus und Løkken nach Süden bis nach Hirtshals, Tversted und Skagen nach Norden zu fahren.

Denk daran, dass du bei Lønstrup jederzeit Bollerwagen, Hochstühle und Kinderreisebetten leihen kannst. Diese holst du direkt bei uns im Büro ab und bringst sie wieder, wenn du deine Heimreise antrittst.


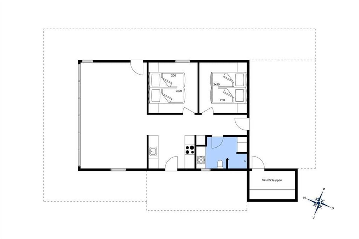
Raumaufteilung

  • Schlafzimmer
    • Doppelbett - 2x90x200
  • Schlafzimmer
    • Doppelbett - 2x90x200
7 nachten
Vanaf 445,-
Incl. schoonmaak en verzekering

Prijzen en kalender

Duur
Aankomst
Volgende
   Kijk of het object beschikbaar is op de geselecteerde datum
Vrij
Bezet
   Aankomst mogelijk

Prijs

Periode
Aankomst
Vertrek
Duur
1 week
Personen
Tot 4 personen

Let op

Aankomst is niet geselecteerd.
Contract- en huurvoorwaarden

Indeling & inrichting

Ligging & omgeving

Locatie pin Kaart Denemarken

Klantenservice

Stel ons een vraag over dit object

Klik hier om ons een vraag over dit object te sturen.