Hybenvej - Lønstrup - 9800 - Hjørring

Objectnr: 123-LN1944
  • Personen
    6 personen
  • Slaapkamers3 Slaapkamers
  • Badkamers2 Badkamers
  • Woonoppervlakte102 m² Woonoppervlakte
  • Huisdieren1 Huisdieren

Beschrijving

De beschrijving is helaas niet beschikbaar in het Nederlands. Bekijk de tekst hieronder in het Duits of bekijk de automatisch vertaalde tekst in Nederlands.

Geräumiges Ferienhaus mit stilvoller Einrichtung und einem ansprechenden Terrassenareal

Beste Voraussetzungen für gelungene, erholsame Urlaubstage erwarten dich im Hybenvej 9 in Lønstrup. Das moderne Ferienhaus verzaubert mit einer schönen Wohnatmosphäre und einer durchweg schönen Einrichtung. Unter freiem Himmel erfreust du dich an einem tollen Terrassenareal, das sonnige Sommertage noch schöner macht.

Willkommen in deinem Ferienhaus
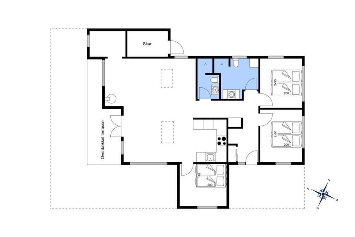
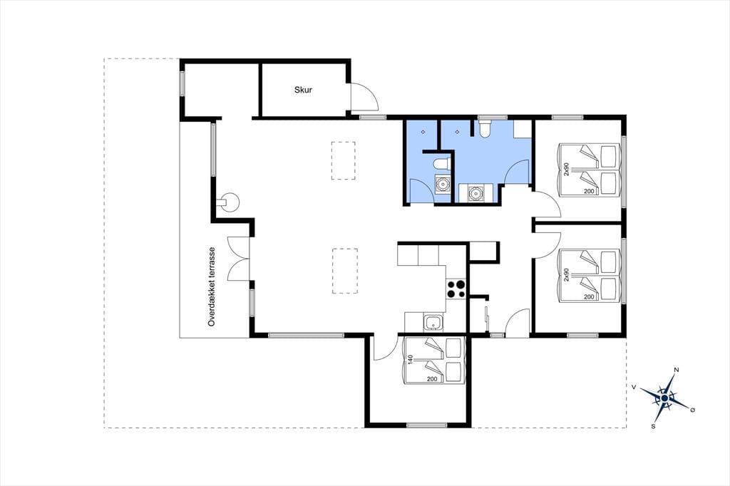
Da dieses Ferienhaus erst im Jahr 2022 erbaut wurde und mit einer guten Ausstattung und einer qualitativ hochwertigen Möblierung besticht, wirst du dich in diesem Haus vom ersten Moment an wohlfühlen. Mit drei Schlafräumen und zwei Badezimmern beherbergt das Mietobjekt bis zu sechs Personen. Ohne weiteres kannst du daher beispielsweise die Großeltern in den Urlaub einladen. Egal, mit wie vielen Familienmitgliedern du anreist, es ist einfach herrlich, sich im hellen Wohnraum mit hohen Decken aufzuhalten. In diesem Raum genießt ihr gesellige Essen am Esstisch, der mit Aussicht auf die Bäume des Grundstücks verwöhnt. Entspannte Nachmittage und Abende verbringt deine Familie mit Büchern, Kreuzworträtseln und Kartenspielen in der Polstersitzgruppe. Zum ein oder anderen Mittagsschläfchen lädt die kuschelige Schlafnische des Wohnraums ein.

Genieße das Leben im Freien
Falls du dich gern in einem guten Gartenstuhl von der Sonne verwöhnen lässt, hast du dein perfektes Ferienhaus gefunden. Rund ums Haus genießt du die Wahl zwischen mehreren schönen Terrassen. Zu jeder Zeit des Tages wirst du auf diesen Terrassen ein sonniges Plätzchen finden. Überdachte Bereiche spenden auf Wunsch kühlen Schatten. Groß und Klein können gemeinsam auf der Rasenfläche umhertollen und spielen. Deine Kinder dürfen sich zudem auf eine Schaukel und eine Sandkiste freuen.

Entdecke deine Umgebung
Der Hybenvej verläuft mitten durch ein beschauliches Ferienhausgebiet. Lediglich ein schöner Spaziergang trennt dich von der Steilküste Lønstrup Klit und der Nordsee. Aktiven Stunden an der frischen Luft und unzähligen Bädern in den salzigen Wellen steht demnach nichts im Wege. Von den Buhnen aus kannst du sehr gut angeln. Falls sich deine Familie gern kulinarisch verwöhnen lässt, bietet euch Lønstrups Ortskern eine gute Auswahl an Restaurants. Für stimmungsvolle Ausflüge in die herrliche Natur empfehlen wir dir natürlich einen Besuch der gigantischen Wanderdüne Rubjerg Knude samt gleichnamigem Leuchtturm sowie einen Spaziergang durch die Inlandsdünen von Skallerup, die zu den besonders schönen Naturperlen dieser Gegend zählen.

Denk daran, dass du bei Lønstrup jederzeit Bollerwagen, Hochstühle und Kinderreisebetten leihen kannst. Diese holst du direkt bei uns im Büro ab und bringst sie wieder, wenn du deine Heimreise antrittst.



Raumaufteilung

  • Schlafzimmer
    • Doppelbett - 2 x 90x200
  • Schlafzimmer
    • Kleinkindbett
    • Doppelbett - 2 x90x200
  • Schlafzimmer
    • Doppelbett - 140x200
7 nachten
Vanaf 585,-
Incl. schoonmaak en verzekering

Prijzen en kalender

Duur
Aankomst
Volgende
  • maart 2026
    madiwodovrzazo
    91
    102345678
    119101112131415
    1216171819202122
    1323242526272829
    143031
  • april 2026
    madiwodovrzazo
    1412345
    156789101112
    1613141516171819
    1720212223242526
    1827282930
    19
   Kijk of het object beschikbaar is op de geselecteerde datum
Vrij
Bezet
   Aankomst mogelijk

Prijs

Periode
Aankomst
Vertrek
Duur
1 week
Personen
Tot 6 personen

Let op

Aankomst is niet geselecteerd.
Contract- en huurvoorwaarden

Indeling & inrichting

Ligging & omgeving

Locatie pin Kaart Denemarken

Onze gastbeoordelingen Externe beoordelingen

4,0 gemiddeld 1 waardering
5
(0)
4
(1)
3
(0)
2
(0)
1
(0)

Opmerkingen

Geen beoordelingen hebben commentaar.

Klantenservice

Stel ons een vraag over dit object

Klik hier om ons een vraag over dit object te sturen.