Lisegårdsvej - 3360 - Liseleje

Objectnr: 090-59998
  • Personen
    4 personen
  • Slaapkamers2 Slaapkamers
  • Badkamers1 Badkamers
  • Woonoppervlakte74 m² Woonoppervlakte
  • HuisdierenNiet toegestaan Huisdieren

Beschrijving

De beschrijving is helaas niet beschikbaar in het Nederlands. Bekijk de tekst hieronder in het Duits of bekijk de automatisch vertaalde tekst in Nederlands.

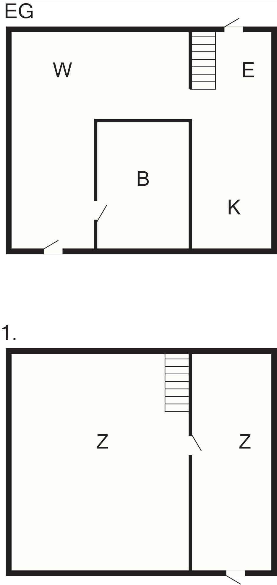
Dieses charmante 74 m² große Stadthaus bietet einen perfekten Rückzugsort für Familien und verbindet Komfort und Stil in einer ruhigen Umgebung. Das 2004 erbaute Haus wurde frisch renoviert und ist ab Mitte Januar 2025 für die ersten Gäste bereit. Im Erdgeschoss finden Sie eine schöne Wohnküche mit direktem Zugang zu einer sonnigen Terrasse, auf der Sie Ihre Mahlzeiten genießen oder sich an der frischen Luft entspannen können. Das gemütliche Fernsehzimmer lädt zum Entspannen ein, und das stilvolle, geflieste Badezimmer sorgt für einen Hauch von Luxus. Im Obergeschoss befinden sich ein geräumiges Hauptschlafzimmer und eine gemütliche Sitzecke mit zwei Einzelbetten sowie ein schönes Erkerfenster, das auf einen kleinen Balkon führt.

Nur 700 Meter vom malerischen Strand von Liseleje entfernt, ist dieses Ferienhaus perfekt gelegen, um die Naturschönheiten der Gegend zu genießen. Der Strand von Liseleje ist für seine kinderfreundlichen Sandstrände bekannt und somit der ideale Ort für Familienausflüge. Zu den nahe gelegenen Attraktionen gehören der Naturspielplatz Havtyren und Liselejelandet, wo die ganze Familie Minigolf und Elektroautos genießen kann. Erkunden Sie weitere der herrlichen Strände Nordseelands, wie den Nivå Strand oder den Trekanten Strand in Hundested. Wassersportler werden die ruhigen, flachen Gewässer des Kattegats zu schätzen wissen, die sich perfekt für Stand-up-Paddleboarding und andere Aktivitäten eignen.

Das Haus ist modern eingerichtet und verfügt über einen Backofen, eine Kühl- und Gefrierkombination und eine Waschmaschine, so dass Sie während Ihres Aufenthalts nicht auf Komfort verzichten müssen. Das geräumige Badezimmer bietet mit WC, Waschbecken und Dusche Komfort und Stil. Auf der sonnigen Terrasse finden Sie Gartenmöbel und einen Holzkohlegrill - ideal für eine entspannte Mahlzeit im Freien. Der angelegte Garten, die Fußbodenheizung und die Luft/Wasser-Wärmepumpe sorgen dafür, dass Sie sich zu jeder Jahreszeit wohlfühlen werden. Mit allem, was Sie für einen unvergesslichen Urlaub brauchen, ist dieses Stadthaus der perfekte Ausgangspunkt für Ihren Familienausflug in Liseleje.


1 Wohnz.: TV
2 Schlafz.: (1DB)+(2B)
Küche: Ofen, Kühl-Gefrier-Kombi
Bad: WC, Waschb., Dusche
1 Außenbereich: Gartenmöbel, Terrasse
Und: Fußbodenheiz., Luft-Wasser-Wärmepumpe, Garten 145 m2, Ferienhausgebiet, Nichtraucherhaus

Kan op dit moment niet worden geboekt.

Prijzen en kalender

Duur
Aankomst
Volgende
  • december 2025
    madiwodovrzazo
    491234567
    50891011121314
    5115161718192021
    5222232425262728
    1293031
    2
  • januari 2026
    madiwodovrzazo
    11234
    2567891011
    312131415161718
    419202122232425
    5262728293031
    6
   Kijk of het object beschikbaar is op de geselecteerde datum
Vrij
Bezet
   Aankomst mogelijk

Prijs

Periode
Aankomst
Vertrek
Duur
Personen
Tot 4 personen

Let op

Kan op dit moment niet worden geboekt.
Contract- en huurvoorwaarden

Indeling & inrichting

Ligging & omgeving

Locatie pin Kaart Denemarken

Klantenservice

Stel ons een vraag over dit object

Klik hier om ons een vraag over dit object te sturen.