Gerenoveerde boerderij met zwembad en sauna
Søndergade - Lohals - 5953 - Tranekær
Objectnr: 121-75-6023
Ruim voormalig boerderijhuis met binnenzwembad, sauna en speelvoorzieningen op 320 m van zee.
Beschrijving
Inrichting
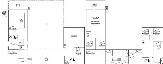
Voormalige boerderij. is geschikt voor 16 personen. 2 van de slaapplaatsen is alleen geschikt voor grotere kinderen (4-11 jaar). De vakantiewoning heeft een oppervlakte van 429 m2, bestaat uit 2 verdiepingen, en is gebouwd in 1827. In 2002 is de vakantiewoning volledig renoveerd. In 2020 ondergingen de vakantiewoning een gedeeltelijke renovatie. Het is niet toegestaan om huisdieren mee te nemen. Er is vloerverwarming in de woonkamer. Vloerverwarming in de hal. Vloerverwarming in de woonkamer. De vakantiewoning heft Wasmachine. Wasdroge. Vriezer capaciteit van 50 liter. Er is daarnaast houtkachel. Voor de kleintjes 1 stukken Kinderstoel. Verschoningstafel.
Buiten
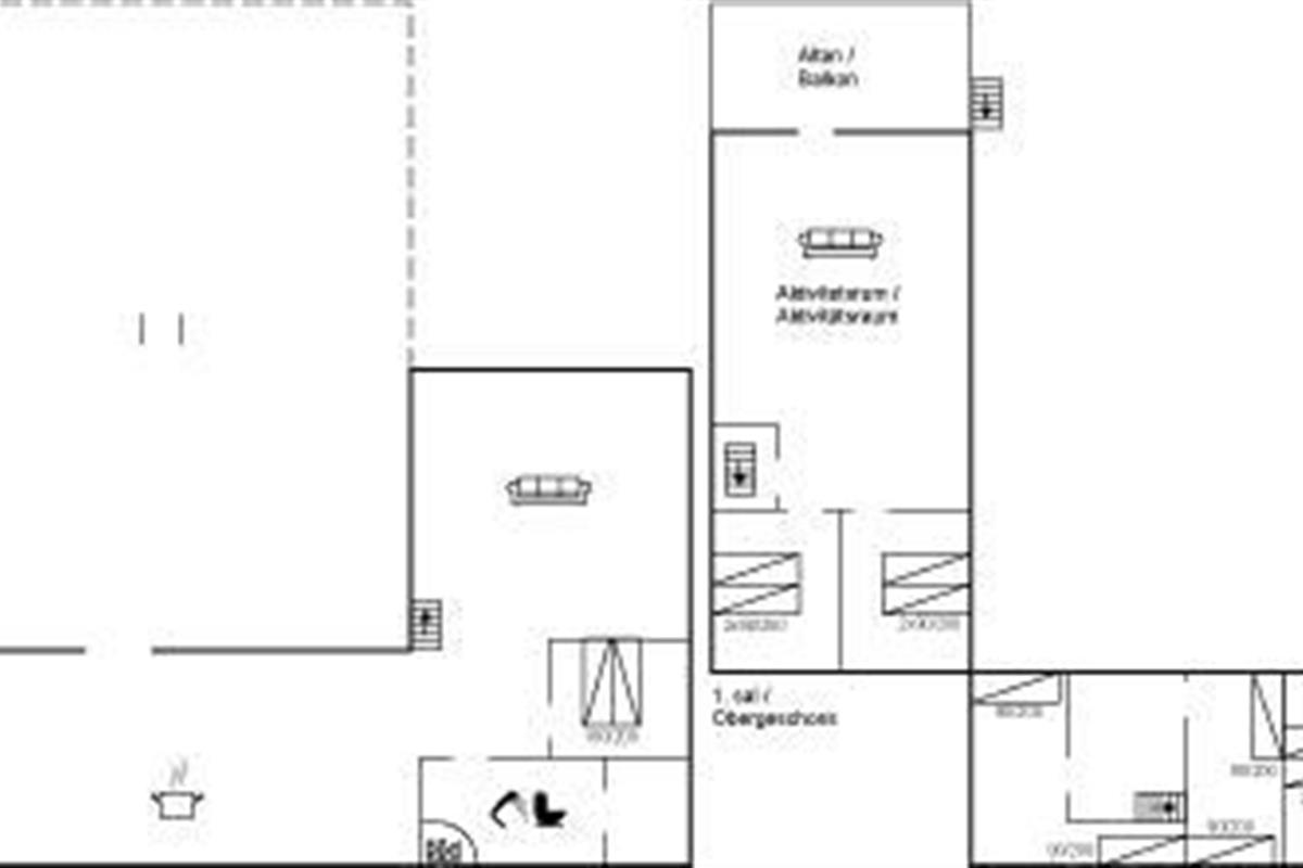
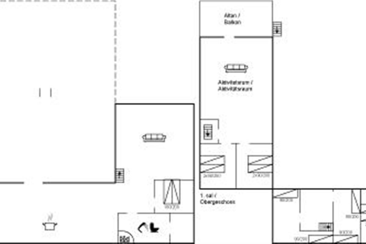
De vakantiewoning is gelegen op een 2103 m² groot natuural grond. Afstand tot de zee 320 m. Dichtstbijzijnde winkel 1500 m. Bij de vakantiewoning hoort terras. Balkon. Schommel. Zandbak. Speelhuisje. Speeltoren. Voetbaldoel. Afstand tot speelplaats 1000 m.Vuurplaats. Barbecue. Parkeerplaats bij het huis.
Zwembad
Het binnenzwembad biedt de gelegenheid om heerlijk te spelen en gezellig samen te zijn. Het zwembad is 2,5 m breed, 5 m lang en tot 1,3 m diep. Het water heeft een temperatuur tussen de 24 en 28 °C.
Activiteitenruimte
Activiteitenruimte. Pooltafe. Tafelvoetbal.
Slaapomstandigheden
Er zijn in totaal 9 slaapkamers. De slaapplaatsen zijn als volgt verdeeld: 16 slaapplaatsen in eenpersoonsbedden.
Keuken
De keuken is uitgerust met koelkast Er zijn 5 keramische kookplaten, heteluchtoven, magnetron en vaatwasser. Vloerverwarming in de keuken.
Douche en toilet
Er is 3 badkamers met douchehok en 3 toiletten, waarvan 1 gastentoilet. Er is vloerverwarming in 2 van de badkamers. De sauna biedt de gelegenheid tot ontspanning.
Bubbelbad
Het binnenbubbelbad (vulwater) biedt ontspanning aan 4 personen. Er is een spa voor 2 personen bij het zwembad en een spa voor 2 personen in een badkamer.
Multimedia
In de vakantiewoning is aanwezig 1 smart-tv.1 Chromecast. Radio.Playstation3. Tenminste 4 deense zenders. 1-3 duitse zenders. Draadloos internet.
Goed om te weten
The 2 berths in bunk beds measure 60x120 cm and are therefore suitable for children only. Youth groups (15-25 years of age) not allowed. Smoking is prohibited. By violation of this prohibition a fee of min. EUR 420 will be charged.
Voormalige boerderij. is geschikt voor 16 personen. 2 van de slaapplaatsen is alleen geschikt voor grotere kinderen (4-11 jaar). De vakantiewoning heeft een oppervlakte van 429 m2, bestaat uit 2 verdiepingen, en is gebouwd in 1827. In 2002 is de vakantiewoning volledig renoveerd. In 2020 ondergingen de vakantiewoning een gedeeltelijke renovatie. Het is niet toegestaan om huisdieren mee te nemen. Er is vloerverwarming in de woonkamer. Vloerverwarming in de hal. Vloerverwarming in de woonkamer. De vakantiewoning heft Wasmachine. Wasdroge. Vriezer capaciteit van 50 liter. Er is daarnaast houtkachel. Voor de kleintjes 1 stukken Kinderstoel. Verschoningstafel.
Buiten
De vakantiewoning is gelegen op een 2103 m² groot natuural grond. Afstand tot de zee 320 m. Dichtstbijzijnde winkel 1500 m. Bij de vakantiewoning hoort terras. Balkon. Schommel. Zandbak. Speelhuisje. Speeltoren. Voetbaldoel. Afstand tot speelplaats 1000 m.Vuurplaats. Barbecue. Parkeerplaats bij het huis.
Zwembad
Het binnenzwembad biedt de gelegenheid om heerlijk te spelen en gezellig samen te zijn. Het zwembad is 2,5 m breed, 5 m lang en tot 1,3 m diep. Het water heeft een temperatuur tussen de 24 en 28 °C.
Activiteitenruimte
Activiteitenruimte. Pooltafe. Tafelvoetbal.
Slaapomstandigheden
Er zijn in totaal 9 slaapkamers. De slaapplaatsen zijn als volgt verdeeld: 16 slaapplaatsen in eenpersoonsbedden.
Keuken
De keuken is uitgerust met koelkast Er zijn 5 keramische kookplaten, heteluchtoven, magnetron en vaatwasser. Vloerverwarming in de keuken.
Douche en toilet
Er is 3 badkamers met douchehok en 3 toiletten, waarvan 1 gastentoilet. Er is vloerverwarming in 2 van de badkamers. De sauna biedt de gelegenheid tot ontspanning.
Bubbelbad
Het binnenbubbelbad (vulwater) biedt ontspanning aan 4 personen. Er is een spa voor 2 personen bij het zwembad en een spa voor 2 personen in een badkamer.
Multimedia
In de vakantiewoning is aanwezig 1 smart-tv.1 Chromecast. Radio.Playstation3. Tenminste 4 deense zenders. 1-3 duitse zenders. Draadloos internet.
Goed om te weten
The 2 berths in bunk beds measure 60x120 cm and are therefore suitable for children only. Youth groups (15-25 years of age) not allowed. Smoking is prohibited. By violation of this prohibition a fee of min. EUR 420 will be charged.
7 nachten
Vanaf
€ 1.497,-
Incl. schoonmaak
Prijzen en kalender
Prijs
Periode
- Aankomst
- Vertrek
- Duur
- 1 week
Personen
Tot 16 personen
Let op
Aankomst is niet geselecteerd.
Opmerkingen