Gezellig vakantiehuis met zeezicht en grote tuin
Indenmarken - Nexø - 3740 - Svaneke
Objectnr: 121-95-3512
Ruim vakantiehuis in Svaneke met zeezicht, grote tuin en uitgebreide spelruimte voor ultiem familieplezier.
Beschrijving
Inrichting
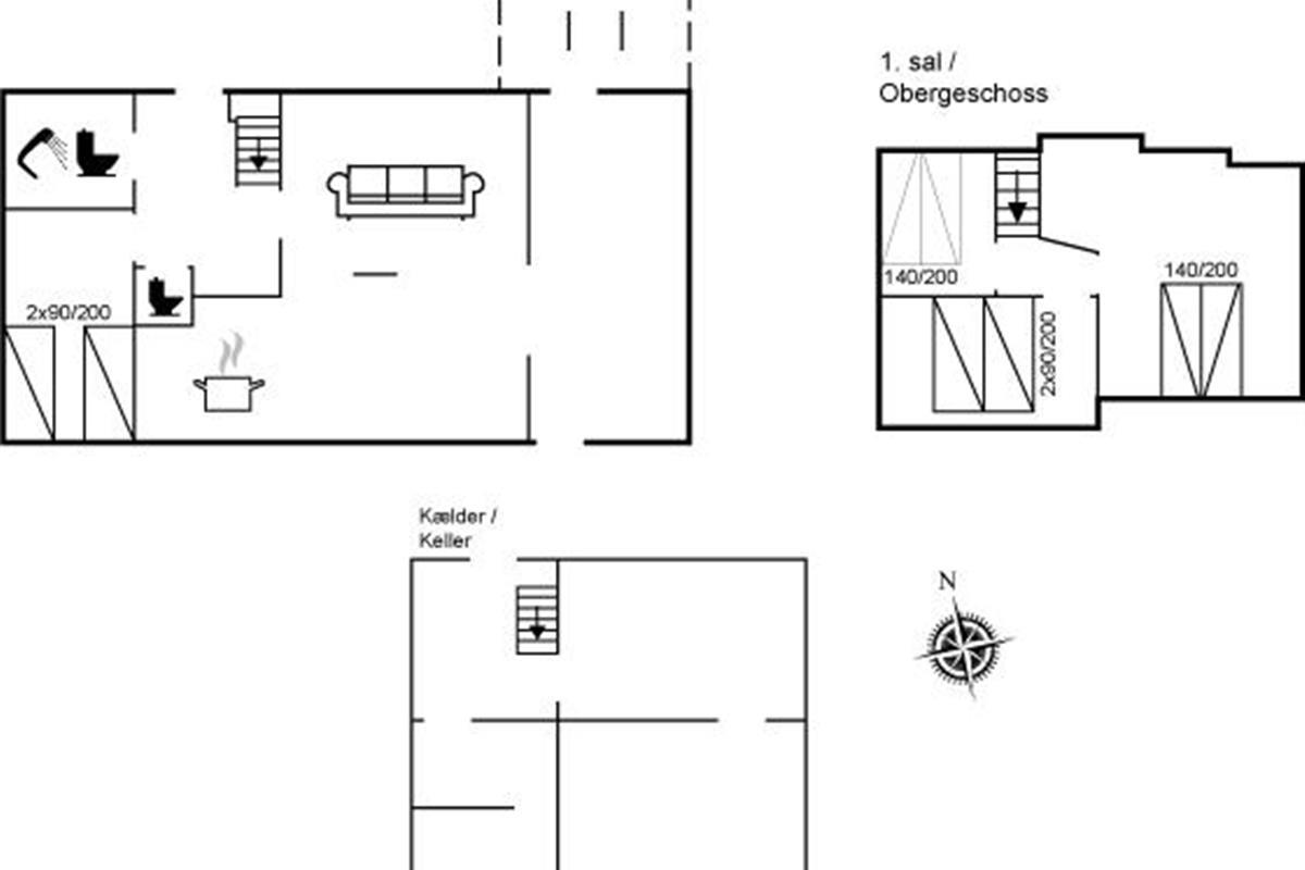
Vakantiehuis is geschikt voor 8 personen en 1 kinderen tot 3 jaar. De vakantiewoning heeft een oppervlakte van 146 m2, bestaat uit 2 verdiepingen, en is gebouwd in 1935. In 1994 is de vakantiewoning volledig renoveerd. In 2020 ondergingen de vakantiewoning een gedeeltelijke renovatie. Het is niet toegestaan om huisdieren mee te nemen. Er is centrale verwarming. De vakantiewoning heft Wasmachine. Vriezer capaciteit van 290 liter. Er is daarnaast houtkachel. Voor de kleintjes 1 stukken Kinderstoel.
Buiten
De vakantiewoning is gelegen op een 978 m² groot aangelegde tuin. Afstand tot de zee 170 m. Dichtstbijzijnde winkel 3600 m. Bij de vakantiewoning hoort terras. Tevens heeft u de beschikking over een serre.Vuurplaats. Barbecue. Parkeerplaats bij het huis.
Activiteitenruimte
Minibiljarttafel. Minivoetbaltafel. Minitafeltennis.
Slaapomstandigheden
Er zijn in totaal 4 slaapkamers. De slaapplaatsen zijn als volgt verdeeld: 4 slaapplaatsen in tweepersoonsbedden. 2 slaapplaatsen in eenpersoonsbedden.2 slaapplaatsen in verstelbaar bedden. Verder is kinderbed ter beschikking.
Keuken
De keuken is uitgerust met koelkast Er is 4 inductiekookplaten, heteluchtoven, magnetron en vaatwasser.
Douche en toilet
Er is 1 badkamer met douchehok en 2 toiletten, waarvan 1 gastentoilet. Er is vloerverwarming in 1 badkamer.
Multimedia
In de vakantiewoning is aanwezig 1 smart-tv. Radio.1 Bluetooth-speaker. Geen tv-kanalen - alleen streaming. Draadloos internet.
Goed om te weten
Geen verhuur aan jeugdgroepen waar iedereen tussen de 15 en 25 jaar oud is. Roken niet toegestaan. Bij overtreding van het verbod wordt een boete van minimaal EUR 420,- in rekening gebracht.
Vakantiehuis is geschikt voor 8 personen en 1 kinderen tot 3 jaar. De vakantiewoning heeft een oppervlakte van 146 m2, bestaat uit 2 verdiepingen, en is gebouwd in 1935. In 1994 is de vakantiewoning volledig renoveerd. In 2020 ondergingen de vakantiewoning een gedeeltelijke renovatie. Het is niet toegestaan om huisdieren mee te nemen. Er is centrale verwarming. De vakantiewoning heft Wasmachine. Vriezer capaciteit van 290 liter. Er is daarnaast houtkachel. Voor de kleintjes 1 stukken Kinderstoel.
Buiten
De vakantiewoning is gelegen op een 978 m² groot aangelegde tuin. Afstand tot de zee 170 m. Dichtstbijzijnde winkel 3600 m. Bij de vakantiewoning hoort terras. Tevens heeft u de beschikking over een serre.Vuurplaats. Barbecue. Parkeerplaats bij het huis.
Activiteitenruimte
Minibiljarttafel. Minivoetbaltafel. Minitafeltennis.
Slaapomstandigheden
Er zijn in totaal 4 slaapkamers. De slaapplaatsen zijn als volgt verdeeld: 4 slaapplaatsen in tweepersoonsbedden. 2 slaapplaatsen in eenpersoonsbedden.2 slaapplaatsen in verstelbaar bedden. Verder is kinderbed ter beschikking.
Keuken
De keuken is uitgerust met koelkast Er is 4 inductiekookplaten, heteluchtoven, magnetron en vaatwasser.
Douche en toilet
Er is 1 badkamer met douchehok en 2 toiletten, waarvan 1 gastentoilet. Er is vloerverwarming in 1 badkamer.
Multimedia
In de vakantiewoning is aanwezig 1 smart-tv. Radio.1 Bluetooth-speaker. Geen tv-kanalen - alleen streaming. Draadloos internet.
Goed om te weten
Geen verhuur aan jeugdgroepen waar iedereen tussen de 15 en 25 jaar oud is. Roken niet toegestaan. Bij overtreding van het verbod wordt een boete van minimaal EUR 420,- in rekening gebracht.
7 nachten
Vanaf
€ 629,-
Optionele schoonmaak: EUR 190,-
Prijzen en kalender
Prijs
Periode
- Aankomst
- Vertrek
- Duur
- 1 week
Personen
Tot 8 personen
Let op
Aankomst is niet geselecteerd.
Opmerkingen