Vakantiehuis met sauna en bubbelbad nabij zee
Severinsvej - Rødhus - 9490 - Pandrup
Objectnr: 121-15-0207
Comfortabel vakantiehuis met sauna, bubbelbad en zeezicht bij Rødhus.
Beschrijving
Inrichting
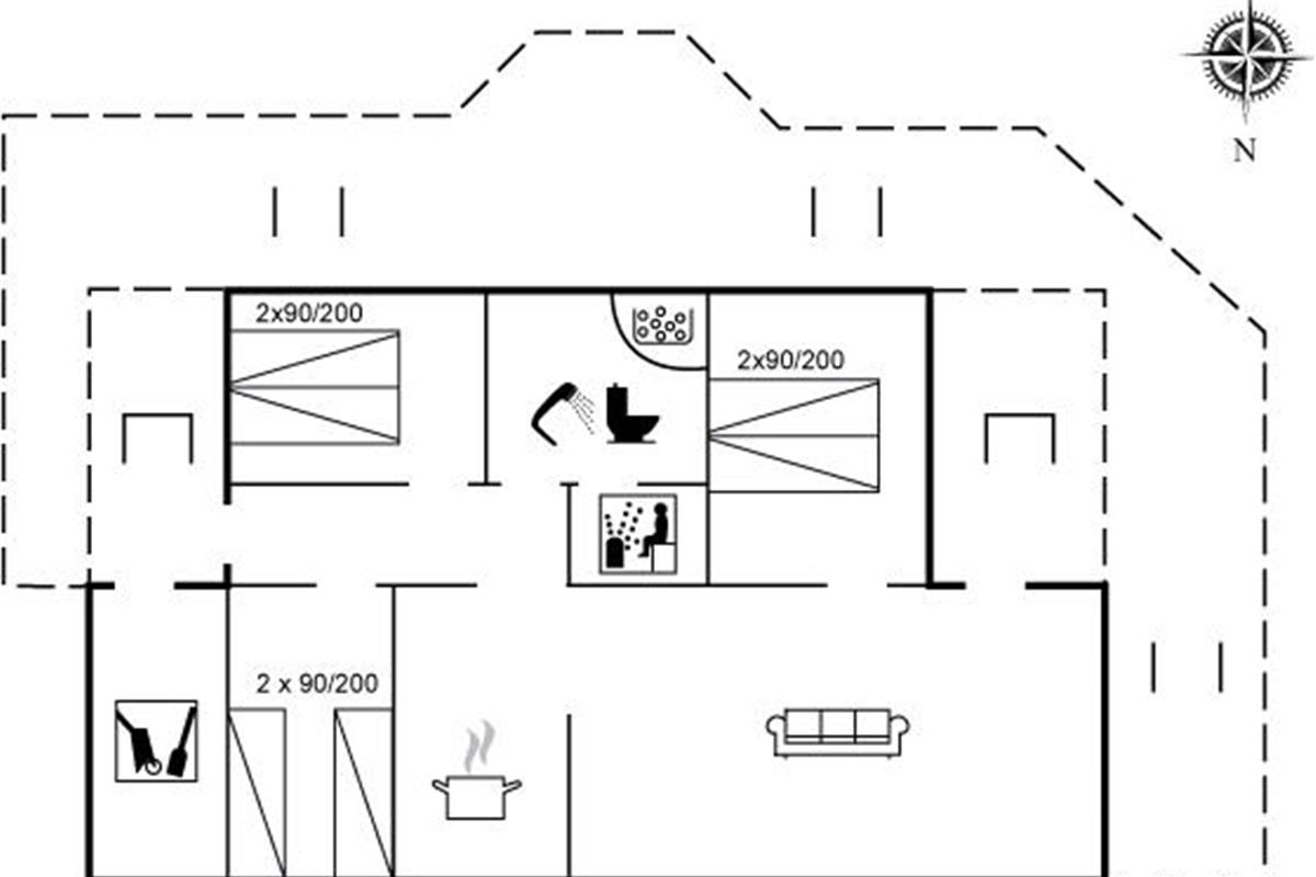
Vakantiehuis is geschikt voor 6 personen en 1 kinderen tot 3 jaar. De vakantiewoning heeft een oppervlakte van 85 m2 en is gebouwd in 1981. In 2001 ondergingen de vakantiewoning een gedeeltelijke renovatie. Het is niet toegestaan om huisdieren mee te nemen. De vakantiewoning is uitgerust met warmtepomp. De vakantiewoning heft Wasmachine. Wasdroge. Vriezer capaciteit van 30 liter. Voor de kleintjes 1 stukken Kinderstoel.
Buiten
De vakantiewoning is gelegen op een 2500 m² groot Duingrond. Afstand tot de zee 300 m. Dichtstbijzijnde winkel 8000 m. Er is een golfbaan op een afstand van 6000 m. Bij de vakantiewoning hoort 18 m² terras. Daarnaast is er een 5 m² groot overdekt terras. Gereedschapsruimte. Het huis heeft een stopcontact voor het opladen van een elektrische auto. Parkeerplaats bij het huis.
Slaapomstandigheden
Er zijn in totaal 3 slaapkamers. De slaapplaatsen zijn als volgt verdeeld: 4 slaapplaatsen in tweepersoonsbedden. 2 slaapplaatsen in eenpersoonsbedden.
Keuken
De keuken is uitgerust met koelkast Er zijn 4 keramische kookplaten, heteluchtoven, magnetron en vaatwasser.
Douche en toilet
Er is 1 badkamer met douchehok en 1 toilet.. Er is vloerverwarming in 1 badkamer. De sauna biedt de gelegenheid tot ontspanning.
Bubbelbad
Het binnenbubbelbad (vulwater) biedt ontspanning aan 2 personen.
Multimedia
In de vakantiewoning is aanwezig televisie.1 Chromecast. Bluray-speler. DVD-speler.1 Bluetooth-speaker. Tenminste 4 deense zenders. 1-3 sweedse zenders. 1-3 noorse zenders. Tenminste 4 duitse zenders. Draadloos internet.
Goed om te weten
Smoking is prohibited. By violation of this prohibition a fee of min. EUR 420 will be charged.
Vakantiehuis is geschikt voor 6 personen en 1 kinderen tot 3 jaar. De vakantiewoning heeft een oppervlakte van 85 m2 en is gebouwd in 1981. In 2001 ondergingen de vakantiewoning een gedeeltelijke renovatie. Het is niet toegestaan om huisdieren mee te nemen. De vakantiewoning is uitgerust met warmtepomp. De vakantiewoning heft Wasmachine. Wasdroge. Vriezer capaciteit van 30 liter. Voor de kleintjes 1 stukken Kinderstoel.
Buiten
De vakantiewoning is gelegen op een 2500 m² groot Duingrond. Afstand tot de zee 300 m. Dichtstbijzijnde winkel 8000 m. Er is een golfbaan op een afstand van 6000 m. Bij de vakantiewoning hoort 18 m² terras. Daarnaast is er een 5 m² groot overdekt terras. Gereedschapsruimte. Het huis heeft een stopcontact voor het opladen van een elektrische auto. Parkeerplaats bij het huis.
Slaapomstandigheden
Er zijn in totaal 3 slaapkamers. De slaapplaatsen zijn als volgt verdeeld: 4 slaapplaatsen in tweepersoonsbedden. 2 slaapplaatsen in eenpersoonsbedden.
Keuken
De keuken is uitgerust met koelkast Er zijn 4 keramische kookplaten, heteluchtoven, magnetron en vaatwasser.
Douche en toilet
Er is 1 badkamer met douchehok en 1 toilet.. Er is vloerverwarming in 1 badkamer. De sauna biedt de gelegenheid tot ontspanning.
Bubbelbad
Het binnenbubbelbad (vulwater) biedt ontspanning aan 2 personen.
Multimedia
In de vakantiewoning is aanwezig televisie.1 Chromecast. Bluray-speler. DVD-speler.1 Bluetooth-speaker. Tenminste 4 deense zenders. 1-3 sweedse zenders. 1-3 noorse zenders. Tenminste 4 duitse zenders. Draadloos internet.
Goed om te weten
Smoking is prohibited. By violation of this prohibition a fee of min. EUR 420 will be charged.
7 nachten
Vanaf
€ 451,-
Optionele schoonmaak: EUR 173,-
Prijzen en kalender
Prijs
Periode
- Aankomst
- Vertrek
- Duur
- 1 week
Personen
Tot 6 personen
Let op
Aankomst is niet geselecteerd.