Gezellig vakantiehuis met tuin en gratis aquapark
Snerlevej - Rødhus - 9490 - Pandrup
Objectnr: 121-15-0299
Gezellig vakantiehuis in Rødhus met terras, barbecue en gratis aquapark dichtbij, ideaal voor natuurliefhebbers.
Beschrijving
Inrichting
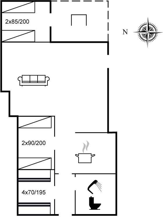
Vakantiehuis is geschikt voor 6 personen. De vakantiewoning heeft een oppervlakte van 74 m2 en is gebouwd in 1973. Het is toegestaan om 2 huisdieren mee te nemen. De vakantiewoning is uitgerust met energiezuinige lucht-naar-lucht-warmtepomp. Vriezer capaciteit van 20 liter.
Buiten
De vakantiewoning is gelegen op een 3070 m² groot natuural grond. Afstand tot de zee 1200 m. Dichtstbijzijnde winkel 6000 m. Bij de vakantiewoning hoort terras. Schommel. Barbecue. Parkeerplaats bij het huis.
Slaapomstandigheden
Er zijn in totaal 3 slaapkamers. De slaapplaatsen zijn als volgt verdeeld: 4 slaapplaatsen in eenpersoonsbedden. 4 slaapplaatsen in stapelbedden.
Keuken
De keuken is uitgerust met koelkast Er zijn 4 keramische kookplaten, heteluchtoven, magnetron.
Douche en toilet
Er is 1 badkamer met douchehok en 1 toilet.
Multimedia
In de vakantiewoning is aanwezig televisie. Tenminste 4 deense zenders. Tenminste 4 zweedse zenders. Tenminste 4 noorse zenders. Tenminste 4 nederlandse zenders. Tenminste 4 duitse zenders. Tenminste 4 engelse zenders. Draadloos internet.
Goed om te weten
Geen verhuur aan jeugdgroepen waar iedereen tussen de 15 en 25 jaar oud is. Roken niet toegestaan. Bij overtreding van het verbod wordt een boete van minimaal EUR 420,- in rekening gebracht.
Vakantiehuis is geschikt voor 6 personen. De vakantiewoning heeft een oppervlakte van 74 m2 en is gebouwd in 1973. Het is toegestaan om 2 huisdieren mee te nemen. De vakantiewoning is uitgerust met energiezuinige lucht-naar-lucht-warmtepomp. Vriezer capaciteit van 20 liter.
Buiten
De vakantiewoning is gelegen op een 3070 m² groot natuural grond. Afstand tot de zee 1200 m. Dichtstbijzijnde winkel 6000 m. Bij de vakantiewoning hoort terras. Schommel. Barbecue. Parkeerplaats bij het huis.
Slaapomstandigheden
Er zijn in totaal 3 slaapkamers. De slaapplaatsen zijn als volgt verdeeld: 4 slaapplaatsen in eenpersoonsbedden. 4 slaapplaatsen in stapelbedden.
Keuken
De keuken is uitgerust met koelkast Er zijn 4 keramische kookplaten, heteluchtoven, magnetron.
Douche en toilet
Er is 1 badkamer met douchehok en 1 toilet.
Multimedia
In de vakantiewoning is aanwezig televisie. Tenminste 4 deense zenders. Tenminste 4 zweedse zenders. Tenminste 4 noorse zenders. Tenminste 4 nederlandse zenders. Tenminste 4 duitse zenders. Tenminste 4 engelse zenders. Draadloos internet.
Goed om te weten
Geen verhuur aan jeugdgroepen waar iedereen tussen de 15 en 25 jaar oud is. Roken niet toegestaan. Bij overtreding van het verbod wordt een boete van minimaal EUR 420,- in rekening gebracht.
7 nachten
Vanaf
€ 371,-
Optionele schoonmaak: EUR 126,-
Prijzen en kalender
Prijs
Periode
- Aankomst
- Vertrek
- Duur
- 1 week
Personen
Tot 6 personen
Let op
Aankomst is niet geselecteerd.