Ruim vakantiehuis met zwembad en zeezicht in Saltum
Vagtelvej - 9493 - Saltum
Objectnr: 121-13-0298
Ruim vakantiehuis in Saltum met binnenzwembad, sauna en zeezicht, ideaal voor families en ontspanning nabij het strand.
Beschrijving
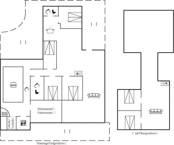
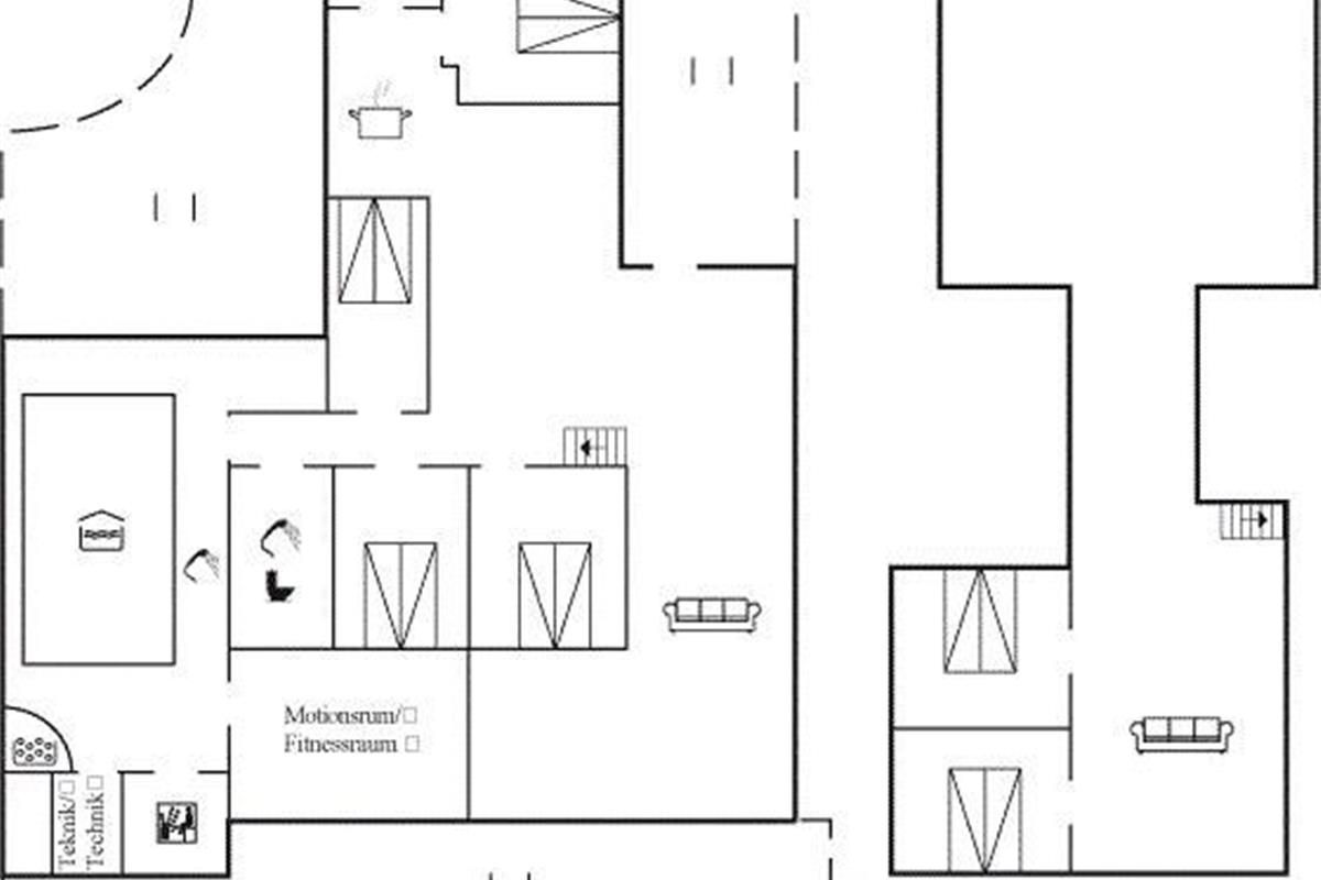
Inrichting
Vakantiehuis is geschikt voor 12 personen en 1 kinderen tot 3 jaar. De vakantiewoning heeft een oppervlakte van 260 m2 en is gebouwd in 1989. In 2016 ondergingen de vakantiewoning een gedeeltelijke renovatie. Het is toegestaan om 1 huisdieren mee te nemen. De vakantiewoning is uitgerust met warmtepomp. De vakantiewoning heft Wasmachine. Wasdroge. Vriezer capaciteit van 80 liter. Er is daarnaast houtkachel. Voor de kleintjes 1 stukken Kinderstoel.
Buiten
De vakantiewoning is gelegen op een 7100 m² groot Duingrond. Afstand tot de zee 50 m. Dichtstbijzijnde winkel 2000 m. Bij de vakantiewoning hoort 80 m² terras. Parkeerplaats bij het huis.
Zwembad
Het binnenzwembad biedt de gelegenheid om heerlijk te spelen en gezellig samen te zijn. Het zwembad is 3 m breed, 5,5 m lang en tot 1,2 m diep. Het water heeft een temperatuur tussen de 24 en 28 °C. Het binnenzwembad heeft een tegenstroominstallatie.
Slaapomstandigheden
Er zijn in totaal 6 slaapkamers. De slaapplaatsen zijn als volgt verdeeld: 12 slaapplaatsen in tweepersoonsbedden. Verder is kinderbed ter beschikking.
Keuken
De keuken is uitgerust met koelkast Er zijn 4 keramische kookplaten, heteluchtoven, magnetron en vaatwasser.
Douche en toilet
Er is 2 badkamers met douchehok en 2 toiletten. Er is vloerverwarming in 2 van de badkamers. De sauna biedt de gelegenheid tot ontspanning.
Bubbelbad
Het binnenbubbelbad (vulwater) biedt ontspanning aan 2 personen.
Multimedia
In de vakantiewoning is aanwezig televisie. DVD-speler. Stereo-installatie. CD-speler. Tenminste 4 deense zenders. 1-3 sweedse zenders. 1-3 noorse zenders. Tenminste 4 duitse zenders. Tenminste 4 engelse zenders. Draadloos internet.
Goed om te weten
Youth groups (15-25 years of age) not allowed. Smoking is prohibited. By violation of this prohibition a fee of min. EUR 420 will be charged.
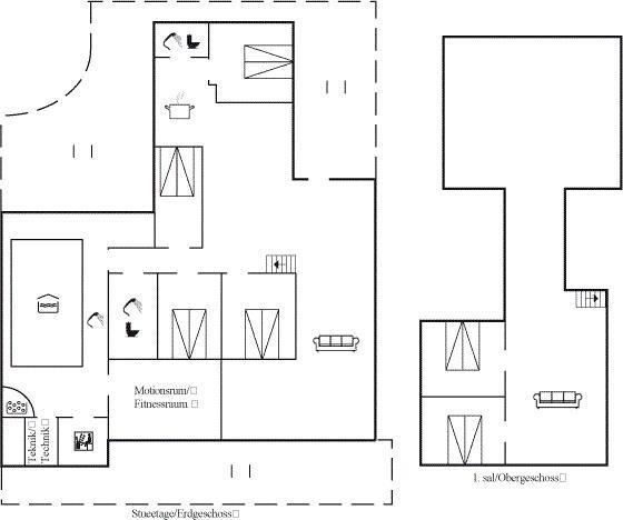
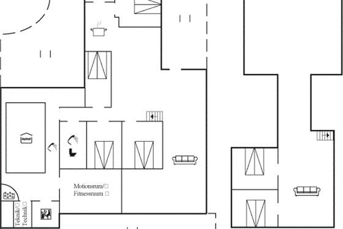
Vakantiehuis is geschikt voor 12 personen en 1 kinderen tot 3 jaar. De vakantiewoning heeft een oppervlakte van 260 m2 en is gebouwd in 1989. In 2016 ondergingen de vakantiewoning een gedeeltelijke renovatie. Het is toegestaan om 1 huisdieren mee te nemen. De vakantiewoning is uitgerust met warmtepomp. De vakantiewoning heft Wasmachine. Wasdroge. Vriezer capaciteit van 80 liter. Er is daarnaast houtkachel. Voor de kleintjes 1 stukken Kinderstoel.
Buiten
De vakantiewoning is gelegen op een 7100 m² groot Duingrond. Afstand tot de zee 50 m. Dichtstbijzijnde winkel 2000 m. Bij de vakantiewoning hoort 80 m² terras. Parkeerplaats bij het huis.
Zwembad
Het binnenzwembad biedt de gelegenheid om heerlijk te spelen en gezellig samen te zijn. Het zwembad is 3 m breed, 5,5 m lang en tot 1,2 m diep. Het water heeft een temperatuur tussen de 24 en 28 °C. Het binnenzwembad heeft een tegenstroominstallatie.
Slaapomstandigheden
Er zijn in totaal 6 slaapkamers. De slaapplaatsen zijn als volgt verdeeld: 12 slaapplaatsen in tweepersoonsbedden. Verder is kinderbed ter beschikking.
Keuken
De keuken is uitgerust met koelkast Er zijn 4 keramische kookplaten, heteluchtoven, magnetron en vaatwasser.
Douche en toilet
Er is 2 badkamers met douchehok en 2 toiletten. Er is vloerverwarming in 2 van de badkamers. De sauna biedt de gelegenheid tot ontspanning.
Bubbelbad
Het binnenbubbelbad (vulwater) biedt ontspanning aan 2 personen.
Multimedia
In de vakantiewoning is aanwezig televisie. DVD-speler. Stereo-installatie. CD-speler. Tenminste 4 deense zenders. 1-3 sweedse zenders. 1-3 noorse zenders. Tenminste 4 duitse zenders. Tenminste 4 engelse zenders. Draadloos internet.
Goed om te weten
Youth groups (15-25 years of age) not allowed. Smoking is prohibited. By violation of this prohibition a fee of min. EUR 420 will be charged.
7 nachten
Vanaf
€ 1.326,-
Optionele schoonmaak: EUR 271,-
Prijzen en kalender
Prijs
Periode
- Aankomst
- Vertrek
- Duur
- 1 week
Personen
Tot 12 personen
Let op
Aankomst is niet geselecteerd.
3 externe beoordelingen