Knoldebækvej - Skallerup Klit - 9800 - Hjørring

Objectnr: 123-LN1715
  • Personen
    7 personen
  • Slaapkamers3 Slaapkamers
  • Badkamers1 Badkamers
  • Woonoppervlakte95 m² Woonoppervlakte
  • Huisdieren2 Huisdieren

Beschrijving

De beschrijving is helaas niet beschikbaar in het Nederlands. Bekijk de tekst hieronder in het Duits of bekijk de automatisch vertaalde tekst in Nederlands.

Schönes Ferienhaus mit Whirlpool und Sauna in Skallerup Klit
Sie können sich auf 95 hellen und gut eingerichteten Quadratmetern ausbreiten, wenn Sie in diesem schönen Ferienhaus Urlaub machen. Im Inneren sorgen der Whirlpool, die Sauna und der Kamin für Behaglichkeit, während Ihnen draußen die sehr große sonnenbeschienene Terrasse zur Verfügung steht. 

Willkommen in deinem Ferienhaus
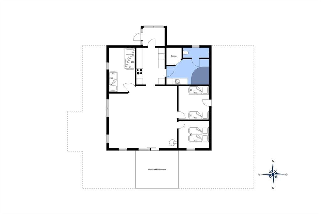
Der Grundriss des Hauses ist wohldurchdacht, sodass darin bis zu sechs Personen bequem Urlaub machen können. Ihnen stehen drei gute Schlafzimmer, das Wohnzimmer und die Küche zur Verfügung, welche alle hell und freundlich eingerichtet sind. Die Küche und das Wohnzimmer liegen in offener Verbindung zueinander, sodass Sie tagsüber in beiden Räumen einen schönen Lichteinfall haben. Abends können Sie es sich gemütlich machen, indem Sie den Kaminofen anfeuern, während Sie kochen oder sich auf dem Sofa entspannen. Wenn es draußen kühl wird, können Sie die Wärmepumpe in Betrieb nehmen. Außerdem können Sie sich im Whirlpool oder in der Sauna auf wohltuende Weise durchwärmen lassen. 

Genieße das Leben im Freien
Das Haus ist von drei Seiten von einer schönen Terrasse umgeben, sodass Sie je nach Tageszeit die Sonne von Osten, Süden oder Westen genießen können. Wenn Sie lieber im Schatten sitzen möchten, machen Sie es sich im überdachten Abschnitt der Terrasse bequem, welcher in Verlängerung zum Wohnzimmer liegt. Auf dem 1.250 Quadratmeter großen Grundstück mit seiner Rasenfläche haben Sie jede Menge Platz zum Spielen. Dort gibt es auch eine Sandkiste und eine Schaukel für die kleinsten Feriengäste.

Entdecke deine Umgebung
Wenn Sie den Tag mit einem Bad im Meer beginnen möchten, liegt der Strand nur 450 Meter entfernt. Ob nun Badewetter herrscht oder Sie die Windjacke anziehen müssen, wenn Sie am Strand spazieren gehen – an der Nordsee ist es immer schön. Auch die Sonnenuntergänge hier sind herrlich, weshalb wir Ihnen empfehlen, hinunter zum Wasser zu spazieren, wenn der Himmel in orange-roten Farben erstrahlt, während die Sonne hinter dem Horizont versinkt. Ein weiterer Vorteil der Lage ist die fußläufige Entfernung zum Skallerup Seaside Resort: Dort gibt es das Badeland, eine Wellnessabteilung, Bowling, Restaurants und viele weitere Attraktionen für die ganze Familie.

Denk daran, dass du bei Lønstrup jederzeit Bollerwagen, Hochstühle und Kinderreisebetten leihen kannst. Diese holst du direkt bei uns im Büro ab und bringst sie wieder, wenn du deine Heimreise antrittst.


Raumaufteilung

  • Schlafzimmer
    • Doppelbett - 140x200
  • Schlafzimmer
    • Etagenbett - 90 x 200 + 140x200
  • Schlafzimmer
    • Doppelbett - 140 x200
7 nachten
Vanaf 478,-
Incl. schoonmaak en verzekering
7 personen

Prijzen en kalender

Duur
Personen
Aankomst
Volgende
  • maart 2026
    madiwodovrzazo
    91
    102345678
    119101112131415
    1216171819202122
    1323242526272829
    143031
  • april 2026
    madiwodovrzazo
    1412345
    156789101112
    1613141516171819
    1720212223242526
    1827282930
    19
   Kijk of het object beschikbaar is op de geselecteerde datum
Vrij
Bezet
   Aankomst mogelijk

Prijs

Periode
Aankomst
Vertrek
Duur
1 week
Personen
Geen personen geselecteerd

Let op

Aankomst is niet geselecteerd.
Er zijn geen personen geselecteerd.
Contract- en huurvoorwaarden

Indeling & inrichting

Ligging & omgeving

Locatie pin Kaart Denemarken

Onze gastbeoordelingen Externe beoordelingen

3,0 gemiddeld 2 waarderingen
5
(0)
4
(0)
3
(2)
2
(0)
1
(0)

Opmerkingen

Geen beoordelingen hebben commentaar.

Klantenservice

Stel ons een vraag over dit object

Klik hier om ons een vraag over dit object te sturen.