Comfortabel vakantiehuis met zeezicht en bubbelbad
Paradisvej - Vang - 3790 - Hasle
Objectnr: 121-95-6302
Ruim vakantiehuis in Hasle met zeezicht, bubbelbad en oplader voor elektrische auto.
Beschrijving
Inrichting
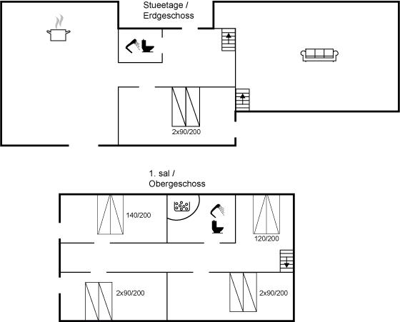
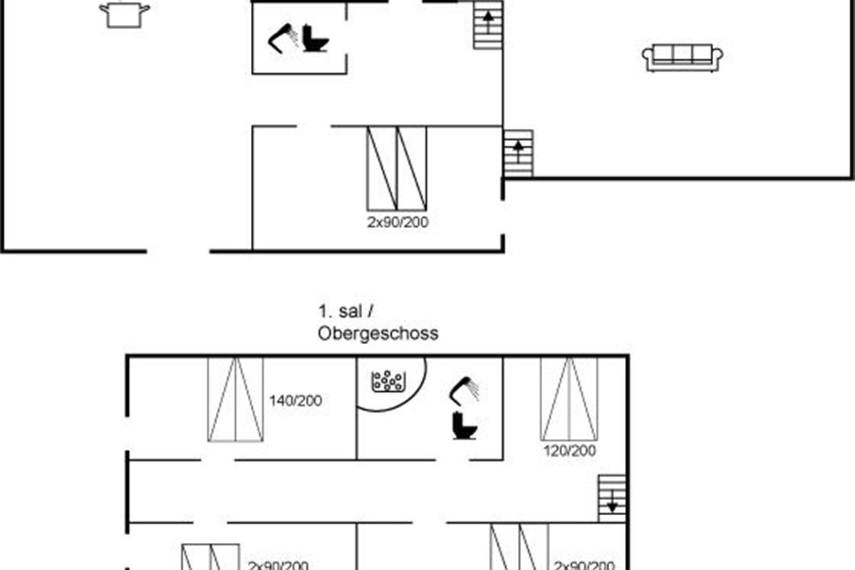
Vakantiehuis is geschikt voor 10 personen. De vakantiewoning heeft een oppervlakte van 216 m2 en is gebouwd in 2006. Het is toegestaan om 2 huisdieren mee te nemen. De vakantiewoning is uitgerust met warmtepomp. De vakantiewoning heft Wasmachine. Wasdroge. Vriezer capaciteit van 200 liter. Er is daarnaast houtkachel.
Buiten
De vakantiewoning is gelegen op een 1100 m² groot natuural grond. Afstand tot de zee 200 m. Dichtstbijzijnde winkel 5000 m. Er is een golfbaan op een afstand van 10000 m. Bij de vakantiewoning hoort 60 m² terras. Gereedschapsruimte. Het huis heeft een stopcontact voor het opladen van een elektrische auto. Oplaadstekker type 2. Met 11 kW-laadvermogen. Parkeerplaats bij het huis.
Slaapomstandigheden
Er zijn in totaal 4 slaapkamers. De slaapplaatsen zijn als volgt verdeeld: 6 slaapplaatsen in tweepersoonsbedden. 4 slaapplaatsen in eenpersoonsbedden. 2 van deze slaapplaatsen zijn gelegen op een platform.
Keuken
De keuken is uitgerust met amerikaanse koelkast Er zijn 4 keramische kookplaten, heteluchtoven, magnetron en vaatwasser.
Douche en toilet
Er is 2 badkamers met douchehok en 2 toiletten. Er is vloerverwarming in 1 badkamer.
Bubbelbad
Het binnenbubbelbad (vulwater) biedt ontspanning aan 2 personen.
Multimedia
In de vakantiewoning is aanwezig televisie. Bluray-speler. DVD-speler. Stereo-installatie. CD-speler. Tenminste 4 deense zenders. 1-3 sweedse zenders. 1-3 noorse zenders. Tenminste 4 duitse zenders. 1-3 engelse zenders. Draadloos internet.
Goed om te weten
Youth groups (15-25 years of age) not allowed. Smoking is prohibited. By violation of this prohibition a fee of min. EUR 420 will be charged.
Vakantiehuis is geschikt voor 10 personen. De vakantiewoning heeft een oppervlakte van 216 m2 en is gebouwd in 2006. Het is toegestaan om 2 huisdieren mee te nemen. De vakantiewoning is uitgerust met warmtepomp. De vakantiewoning heft Wasmachine. Wasdroge. Vriezer capaciteit van 200 liter. Er is daarnaast houtkachel.
Buiten
De vakantiewoning is gelegen op een 1100 m² groot natuural grond. Afstand tot de zee 200 m. Dichtstbijzijnde winkel 5000 m. Er is een golfbaan op een afstand van 10000 m. Bij de vakantiewoning hoort 60 m² terras. Gereedschapsruimte. Het huis heeft een stopcontact voor het opladen van een elektrische auto. Oplaadstekker type 2. Met 11 kW-laadvermogen. Parkeerplaats bij het huis.
Slaapomstandigheden
Er zijn in totaal 4 slaapkamers. De slaapplaatsen zijn als volgt verdeeld: 6 slaapplaatsen in tweepersoonsbedden. 4 slaapplaatsen in eenpersoonsbedden. 2 van deze slaapplaatsen zijn gelegen op een platform.
Keuken
De keuken is uitgerust met amerikaanse koelkast Er zijn 4 keramische kookplaten, heteluchtoven, magnetron en vaatwasser.
Douche en toilet
Er is 2 badkamers met douchehok en 2 toiletten. Er is vloerverwarming in 1 badkamer.
Bubbelbad
Het binnenbubbelbad (vulwater) biedt ontspanning aan 2 personen.
Multimedia
In de vakantiewoning is aanwezig televisie. Bluray-speler. DVD-speler. Stereo-installatie. CD-speler. Tenminste 4 deense zenders. 1-3 sweedse zenders. 1-3 noorse zenders. Tenminste 4 duitse zenders. 1-3 engelse zenders. Draadloos internet.
Goed om te weten
Youth groups (15-25 years of age) not allowed. Smoking is prohibited. By violation of this prohibition a fee of min. EUR 420 will be charged.
7 nachten
Vanaf
€ 2.021,-
Optionele schoonmaak: EUR 205,-
Prijzen en kalender
Prijs
Periode
- Aankomst
- Vertrek
- Duur
- 1 week
Personen
Tot 10 personen
Let op
Aankomst is niet geselecteerd.
Opmerkingen