Lerchenborg - Vestsjælland - 4400 - Kalundborg
Objectnr: 562-288071
Beschrijving
De beschrijving is helaas niet beschikbaar in het Nederlands. Bekijk de tekst hieronder in het Duits of bekijk de automatisch vertaalde tekst in Nederlands.
Lerchenborg bietet Ihnen eine schöne Umgebung mit Wäldern und dem Park bei Kalundborg Fjord. Das Schloss wurde in den Jahren von 1743-52.
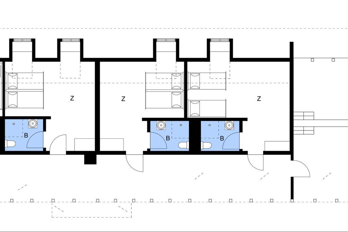
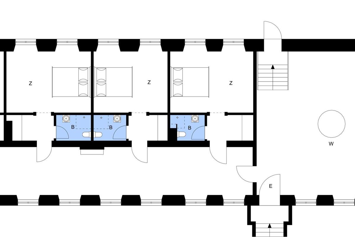
Südflügel des Schlosses
Als Gast auf Lerchenborg wohnen Sie im Südflügel des Schlosses. Dieser Teil ist exklusiv eingerichtet und enthält vier Zimmer im Erdgeschoss und vier Zimmer im ersten Stock, alle mit eigenem Badezimmer, Fernsehen und Minikühlschrank. Vom Schlafzimmerteil im Südflügel aus gelangen Sie in das möblierte Kaminzimmer, ausgestattet mit Sofagruppen und Tischarrangements. Gehen Sie einige Stufen herunter, gelangen Sie in das Schlosscafe mit Plätzen für 50 Personen. In Verbindung mit dem Schlosscafe gibt es eine große funktional eingerichtete Küche mit großem Gasherd. Das Schlosscafe steht während des Aufenthaltes zur allgemeinen Nutzung zur Verfügung. Am Südflügel gibt es ein Anbau mit fünf weiteren Schlafräumen und zwei Badezimmern.
Obligatorische Bettwäsche
Das Wäschepaket ist obligatorisch und kann nicht abgewählt werden.
Inklusive
Verbrauchkosten für Wasser und Heizung sind Inklusive den Mietpreis.
Südflügel des Schlosses
Als Gast auf Lerchenborg wohnen Sie im Südflügel des Schlosses. Dieser Teil ist exklusiv eingerichtet und enthält vier Zimmer im Erdgeschoss und vier Zimmer im ersten Stock, alle mit eigenem Badezimmer, Fernsehen und Minikühlschrank. Vom Schlafzimmerteil im Südflügel aus gelangen Sie in das möblierte Kaminzimmer, ausgestattet mit Sofagruppen und Tischarrangements. Gehen Sie einige Stufen herunter, gelangen Sie in das Schlosscafe mit Plätzen für 50 Personen. In Verbindung mit dem Schlosscafe gibt es eine große funktional eingerichtete Küche mit großem Gasherd. Das Schlosscafe steht während des Aufenthaltes zur allgemeinen Nutzung zur Verfügung. Am Südflügel gibt es ein Anbau mit fünf weiteren Schlafräumen und zwei Badezimmern.
Obligatorische Bettwäsche
Das Wäschepaket ist obligatorisch und kann nicht abgewählt werden.
Inklusive
Verbrauchkosten für Wasser und Heizung sind Inklusive den Mietpreis.
De prijs kan niet worden berekend met de geselecteerde periode.
Prijzen en kalender
Duur
Aankomst
-
december 2025
ma di wo do vr za zo 49 1 2 3 4 5 6 7 50 8 9 10 11 12 13 14 51 15 16 17 18 19 20 21 52 22 23 24 25 26 27 28 1 29 30 31 2 -
januari 2026
ma di wo do vr za zo 1 1 2 3 4 2 5 6 7 8 9 10 11 3 12 13 14 15 16 17 18 4 19 20 21 22 23 24 25 5 26 27 28 29 30 31 6
Kijk of het object beschikbaar is op de geselecteerde datum
Vrij
Bezet
Aankomst mogelijk
Prijs
Periode
- Aankomst
- Vertrek
- Duur
Personen
Tot 26 personen
Let op
Aankomst is niet geselecteerd.
Duur is niet geselecteerd.