Tingodden - Årgab - 6960 - Hvide Sande

Objectnr: 039-420
  • Personen
    5 personen
  • Slaapkamers3 Slaapkamers
  • Badkamers1 Badkamers
  • Woonoppervlakte60 m² Woonoppervlakte
  • Huisdieren1 Huisdieren

Beschrijving

De beschrijving is helaas niet beschikbaar in het Nederlands. Bekijk de tekst hieronder in het Duits of bekijk de automatisch vertaalde tekst in Nederlands.

Dieses gemütliche Ferienhaus liegt in einem gemütlichen Ferienhausgebiet in Argab, zwischen dem Ringkøbing Fjord und den Wellen der Nordsee. Die Hütte ist sehr stimmungsvoll eingerichtet und bietet mit drei Schlafzimmern Platz für fünf Personen.

Einrichtung
Das helle Ferienhaus ist idyllisch und bezaubernd, und Sie können sich auf gemütliche Tage freuen. Das Wohnzimmer bietet eine schöne Sofaecke, auf der Sie einen Film sehen, Musik hören oder ein gutes Buch lesen können, während ein heißer Tee dampft. Brettspiele und Mahlzeiten finden am Esstisch statt, und es gibt eine offene Verbindung zur helle freundlichen Küche.

Die drei Schlafzimmer des Hauses bieten Platz für fünf Personen, und das Badezimmer verfügt über eine Duschnische und eine Fußbodenheizung, sodass Sie keine kalten Füße bekommen. In der kleinen Toilette gibt es ebenfalls eine Fußbodenheizung, und ein Flur mit viel Platz für Sommersandalen oder Winterstiefel und Jacken vervollständigt das Haus.

Außenbereich
Mit einer offenen Terrasse nach Osten und Süden samt einer überdachten Terrasse gen Westen können Sie die Sommertage in der Sonne bei kühlen Erfrischungen und Leckereien für Ihren Gaumen verbringen. Neben einem Parkplatz bietet das naturbelassene Gelände auch einen Innenhof, und die Jüngsten können sich darauf freuen, das Spielhaus und die Schaukel zu erobern.

Lage
Durch die Lage im malerischen Argab haben Sie leichten Zugang zum Ringkøbing Fjord und zur Nordsee. Entlang des Fjords finden Sie viel Natur, während der lange, weiße Sandstrand an der Nordsee der Ort ist, an dem Sie an heißen Sommertagen ein kühlendes Bad nehmen oder frische Spaziergänge unternehmen können, wenn der Wind weht und das Meer seine Zähne zeigt. Auf dem Radweg kann man durch die hügelige Dünenlandschaft radeln, und die Dünen sind ideal zum Drachensteigen. Surfspots am Fjord und am Meer machen die Gegend um Hvide Sande zu einem Surferparadies, und auch Angler finden hier viele Angelseen und können an der Entwässerungsschleuse in Hvide Sande die Angel auswerfen. Die Stadt bietet außerdem Lebensmittelgeschäfte und ein aufregendes Geschäftsleben, und im Sommer pulsiert das Leben rund um den Hafen, wo Sie viele gute Restaurants und gute Fischhändler mit allem, was das Meer hergibt, finden.

GRATIS! Kostenloser Verleih von Kinderreisebetten und Hochstühlen. Sie können ebenfalls Hundebetten ausleihen, allerdings nur dann, wenn auch in Ihrem Mietobjekt ein Hund erlaubt ist. Die Abholung und Rückgabe aller Gegenstände erfolgt bei .

Lademöglichkeit für E-Autos: Schauen Sie bitte unter "Ausstattung" nach, ob bei diesem Mietobjekt eine Lademöglichkeit für E-Autos vorhanden ist.


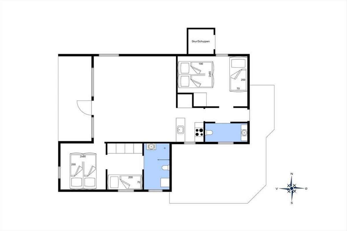
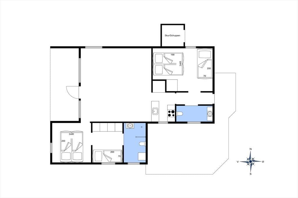
Raumaufteilung

  • Schlafzimmer
    • Doppelbett
  • Schlafzimmer
    • Doppelbett
    • Etagenbett - overkøje 70*200 cm.
  • Schlafzimmer
    • Einzelbett
7 nachten
551,-
Incl. schoonmaak en verzekering
5 personen

Prijzen en kalender

Duur
Personen
Aankomst
Vorige Volgende
  • juni 2026
    madiwodovrzazo
    231234567
    24891011121314
    2515161718192021
    2622232425262728
    272930
    28
  • juli 2026
    madiwodovrzazo
    2712345
    286789101112
    2913141516171819
    3020212223242526
    312728293031
    32
   Kijk of het object beschikbaar is op de geselecteerde datum
Vrij
Bezet
   Aankomst mogelijk

Prijs

Periode
Aankomst
Vertrek
Duur
1 week
Personen
Geen personen geselecteerd

Let op

Aankomst is niet geselecteerd.
Er zijn geen personen geselecteerd.
Contract- en huurvoorwaarden

Indeling & inrichting

Ligging & omgeving

Locatie pin Kaart Denemarken

Klantenservice

Stel ons een vraag over dit object

Klik hier om ons een vraag over dit object te sturen.