Tingodden - Årgab - 6960 - Hvide Sande

Objectnr: 039-4476
  • Personen
    6 personen
  • Slaapkamers3 Slaapkamers
  • Badkamers1 Badkamers
  • Woonoppervlakte86 m² Woonoppervlakte
  • Huisdieren2 Huisdieren

Beschrijving

De beschrijving is helaas niet beschikbaar in het Nederlands. Bekijk de tekst hieronder in het Duits of bekijk de automatisch vertaalde tekst in Nederlands.

Der Traum von einem modernen und stilvollen Ferienhaus in der Nähe der Nordsee wird sich für euch hier am Tingodden 156 in Årgab erfüllen. Es erwartet euch ein komplett renoviertes Ferienhaus, in dem wirklich alles - vom Boden bis zur Decke - erneuert wurde und es erstrahlt nun in hellen und super einladenden Farben.

Wir von wissen, dass gerade die Kombination aus Komfort, Funktionalität und echter Westküstenatmosphäre den perfekten Rahmen für Entspannung und wertvolle gemeinsame Zeit schafft.

Willkommen in deinem Ferienhaus
Schon beim Eintreten spürt ihr den Duft von Neuem und die hochwertige Handwerkskunst. Der großzügige Eingangsbereich bietet Platz für Jacken, Schuhe sowie Waschmaschine und Trockner – praktisch nach einem Tag am Strand. Die moderne Küche beeindruckt mit einer Dunstabzugshaube, elegant in das Kochfeld integriert, und bietet darüber hinaus reichlich Platz für gemeinsames Kochen und gesellige Gespräche. Das Herzstück des Hauses ist der Wohnraum mit dem neuen Kaminofen, dessen „Rundum Glasfenster“ den Blick auf die Flammen von allen Seiten ermöglicht und eine herrlich gemütliche Atmosphäre schafft. Helle, natürliche Farben und viel Stauraum in den Schlafzimmern sorgen dafür, dass ihr euch vom ersten Moment an zu Hause fühlt. Hier trifft durchdachtes Design auf Wohlfühlambiente – ideal für eine erholsame Auszeit.



Genieße das Leben im Freien
Es gibt mehrere Terrassen rund um das Haus – nach Osten, Süden und Norden. Diese garantieren Sonne oder Windschutz zu jeder Tageszeit. Die geschlossene, kinderfreundliche Terrasse ist perfekt für Familien mit Hund, denn hier können die Kleinen sicher spielen. Nördlicherseits sorgt eine Außendusche für Erfrischung nach dem Strandbesuch, und von der kleinen Bank aus könnt ihr schon morgens mit Kaffee den Blick auf den Fjord genießen. Es liegt eine ruhige und natürliche Atmosphäre über dem Ort – genau richtig, um tief durchzuatmen und den Wind in den Dünen flüstern zu hören. Für aktive Urlauber gibt es einen neuen, abschließbaren Schuppen - ideal zur sicheren Aufbewahrung von E-Bikes, Surfausrüstung oder anderem Equipment. Kurz gesagt: Hier lässt sich das Ferienleben auch draußen voll ausleben – von früh bis spät.



Entdecke deine Umgebung
Euer Ferienhaus auf Tingodden 156 liegt mitten in der Natur – zwischen der rauen Nordsee und dem ruhigen Ringkøbing Fjord. Beginnt euren Tag mit einem Spaziergang durch die Dünen und spürt die salzige Seeluft, während die Sonne über dem Horizont aufgeht. Der Strand ist nur einen kurzen Fußweg entfernt – perfekt, um Muscheln zu sammeln oder den Hunden beim Toben zuzusehen. Wenn euch nach etwas Stadtleben ist, erreicht ihr Hvide Sande in wenigen Minuten. Hier erwarten euch der lebhafte Hafen, gemütliche Cafés und Restaurants mit frischem Fisch. Besucht auch den Leuchtturm Lyngvig Fyr. Von dort habt ihr einen atemberaubenden Blick über Meer und Fjord – oder wagt euch aufs Surfbrett bei Westwind, einem der beliebtesten Surfspots der Westküste.

Wir von wissen: Årgab bietet das ganze Jahr über authentische, unvergessliche Erlebnisse, die Körper und Geist Ruhe gewähren.

GRATIS! Verleih von Hochstühlen und Kinderbetten. Sind Haustiere in diesem Haus erlaubt, stehen auch Hundebetten kostenlos zur Verfügung (Alles zur Abholung und Rückgabe bei ).

E-Auto laden: Bitte überprüfe die Hausbeschreibung, ob das Laden eines E-Autos gestattet ist.


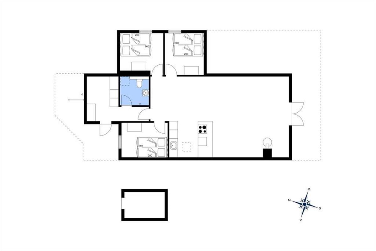
Raumaufteilung

  • Schlafzimmer
    • Doppelbett - 2 x 80 x200 cm.
  • Schlafzimmer
    • Doppelbett - 2 x 80 x 200 cm.
  • Schlafzimmer
    • Doppelbett - 140 x 200 cm.
7 nachten
Vanaf 712,-
Incl. schoonmaak en verzekering
6 personen

Prijzen en kalender

Duur
Personen
Aankomst
Vorige Volgende
  • mei 2026
    madiwodovrzazo
    18123
    1945678910
    2011121314151617
    2118192021222324
    2225262728293031
    23
  • juni 2026
    madiwodovrzazo
    231234567
    24891011121314
    2515161718192021
    2622232425262728
    272930
    28
   Kijk of het object beschikbaar is op de geselecteerde datum
Vrij
Bezet
   Aankomst mogelijk

Prijs

Periode
Aankomst
Vertrek
Duur
1 week
Personen
Geen personen geselecteerd

Let op

Aankomst is niet geselecteerd.
Er zijn geen personen geselecteerd.
Contract- en huurvoorwaarden

Indeling & inrichting

Ligging & omgeving

Locatie pin Kaart Denemarken

Klantenservice

Stel ons een vraag over dit object

Klik hier om ons een vraag over dit object te sturen.