Lærkevænget - Øer - 8400 - Ebeltoft
Objectnr: 045-166146
Beschrijving
De beschrijving is helaas niet beschikbaar in het Nederlands. Bekijk de tekst hieronder in het Engels of bekijk de automatisch vertaalde tekst in Nederlands.
Welcome to this small, authentic retro house with a thatched roof. The owner has chosen to preserve the original look in most areas while adding some modern touches.
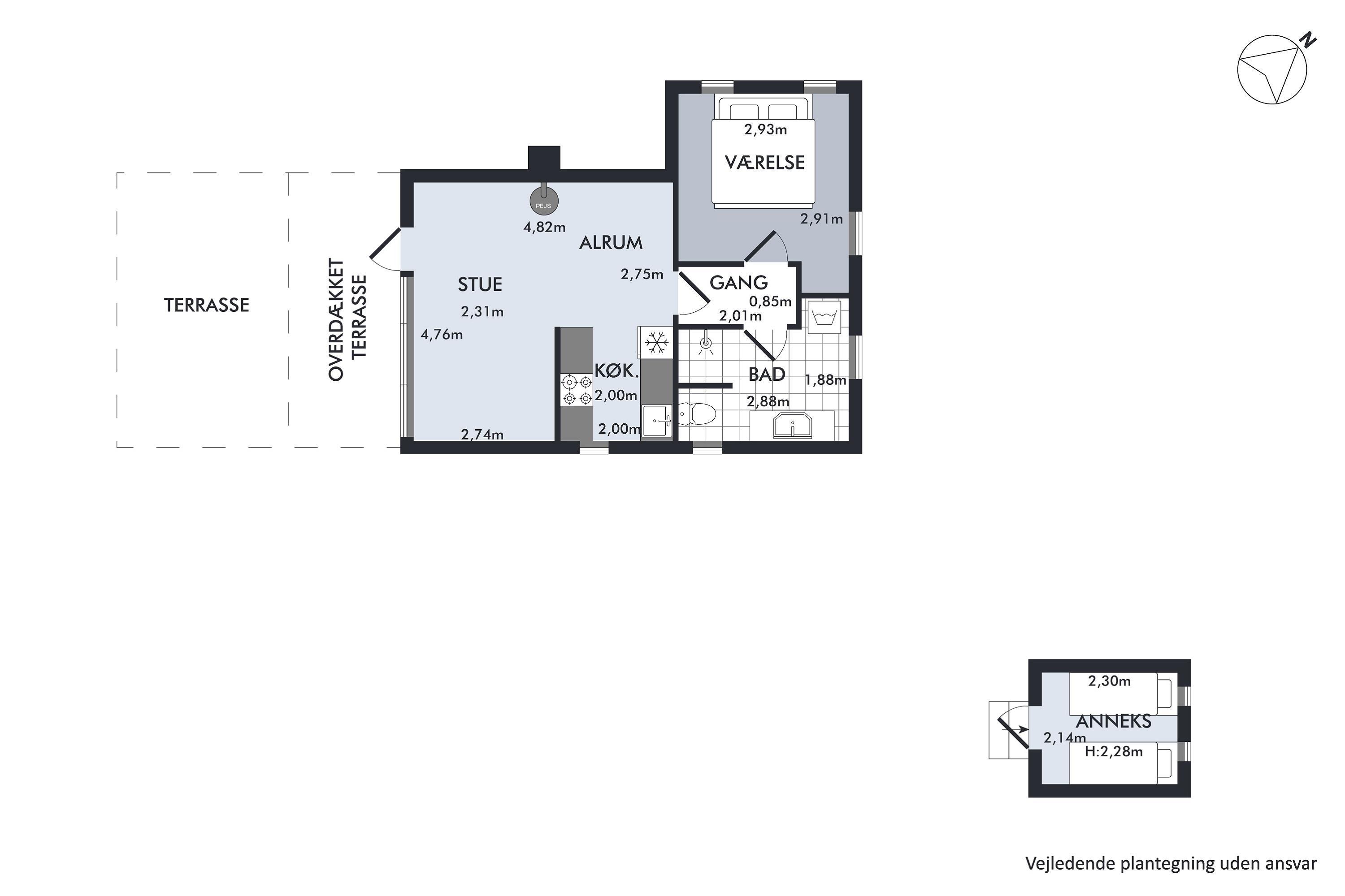
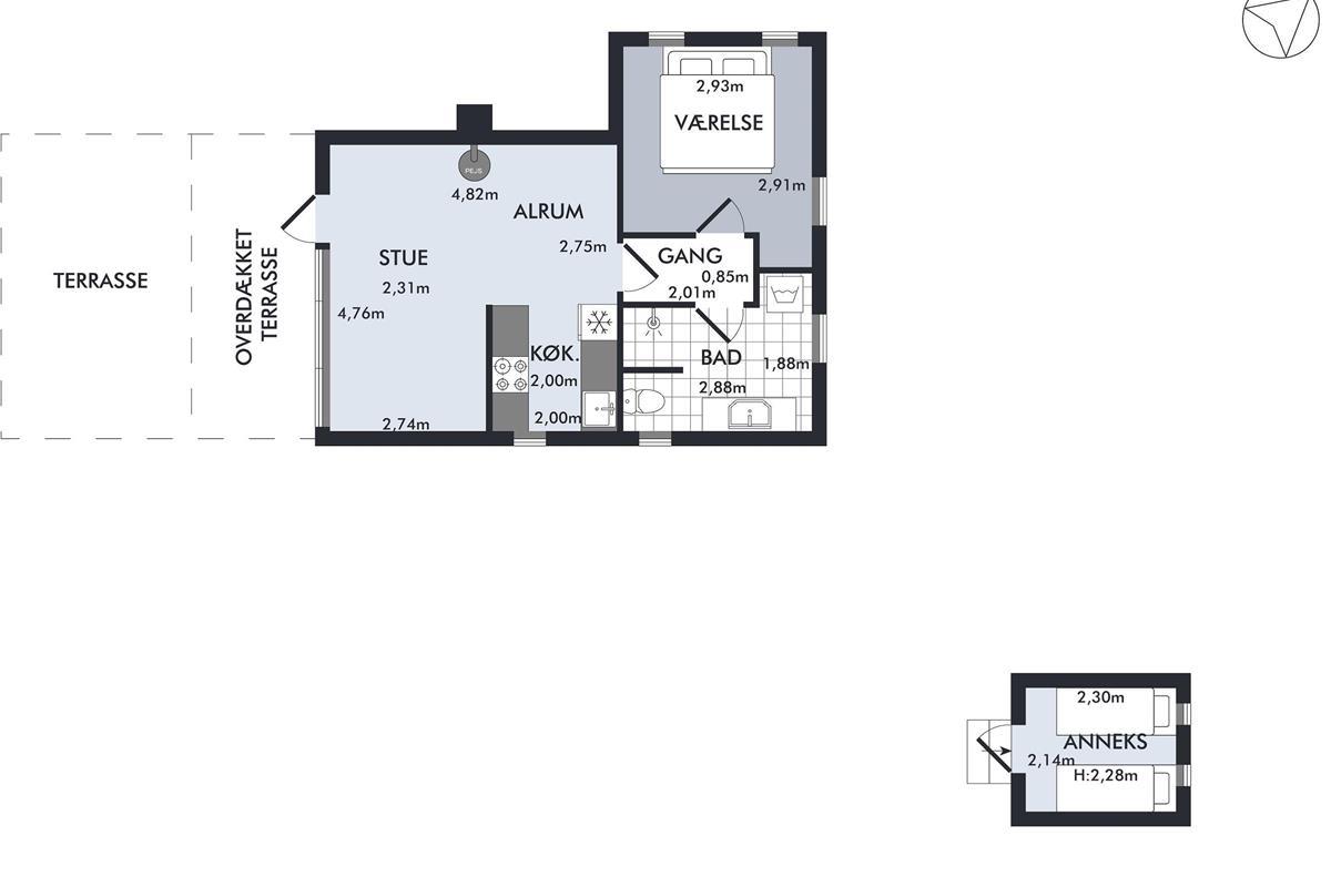
Inside, you’ll find a cosy living room with a wood-burning stove and heat pump, which can easily warm the entire house. The small kitchen is adjacent to the living room, featuring original kitchen wallpaper and handwashing of dishes. The bedroom has a comfortable double bed, and the modern bathroom includes a shower, underfloor heating, washing machine, a baby bathtub, and a changing pad.
The last two sleeping spaces are located in a newer annex with two single beds, heated with an electric radiator. For the little guests, a high chair and a crib are provided.
Outside, there is a cosy terrace with garden furniture and a sandbox for children. The large lawn is perfect for playing and relaxing outdoors. Please note: grilling is recommended only on the lawn, not on the terrace, due to the thatched roof and fire safety.
The area around Øer is a charming and popular holiday destination, close to forests and beaches. The beach features shallow water and sand, though in some spots it may be a mix of sand and stones. For mountain biking enthusiasts, there is a 13 km track with varying levels of difficulty.
At the harbor, you’ll find several good restaurants, small specialty shops, as well as the Frigate Jylland and the Glass Museum. In the town center stands the historic Old Town Hall. About 20 minutes away is Ree Park, where visitors can get close to wild animals. Within roughly an hour’s drive, you can reach the Kattegat Centre in Grenaa and Djurs Sommerland, Northern Europe’s largest amusement park, recently named Denmark’s best.
Inside, you’ll find a cosy living room with a wood-burning stove and heat pump, which can easily warm the entire house. The small kitchen is adjacent to the living room, featuring original kitchen wallpaper and handwashing of dishes. The bedroom has a comfortable double bed, and the modern bathroom includes a shower, underfloor heating, washing machine, a baby bathtub, and a changing pad.
The last two sleeping spaces are located in a newer annex with two single beds, heated with an electric radiator. For the little guests, a high chair and a crib are provided.
Outside, there is a cosy terrace with garden furniture and a sandbox for children. The large lawn is perfect for playing and relaxing outdoors. Please note: grilling is recommended only on the lawn, not on the terrace, due to the thatched roof and fire safety.
The area around Øer is a charming and popular holiday destination, close to forests and beaches. The beach features shallow water and sand, though in some spots it may be a mix of sand and stones. For mountain biking enthusiasts, there is a 13 km track with varying levels of difficulty.
At the harbor, you’ll find several good restaurants, small specialty shops, as well as the Frigate Jylland and the Glass Museum. In the town center stands the historic Old Town Hall. About 20 minutes away is Ree Park, where visitors can get close to wild animals. Within roughly an hour’s drive, you can reach the Kattegat Centre in Grenaa and Djurs Sommerland, Northern Europe’s largest amusement park, recently named Denmark’s best.
7 nachten
Vanaf
€ 353,-
Incl. verzekering
Prijzen en kalender
Prijs
Periode
- Aankomst
- Vertrek
- Duur
- 1 week
Personen
Tot 4 personen
Let op
Aankomst is niet geselecteerd.