Øerkrogvejen 2, lejl. - Øer - 8400 - Ebeltoft
Objectnr: 045-671931
Beschrijving
De beschrijving is helaas niet beschikbaar in het Nederlands. Bekijk de tekst hieronder in het Engels of bekijk de automatisch vertaalde tekst in Nederlands.
Cozy and well-appointed two-story holiday apartment located in Øer Maritime Holiday Village. The lovely terrace offers a view over the boat slips, as well as a charming tiled courtyard where you can enjoy the morning sun. The terrace is equipped with garden furniture and a grill.
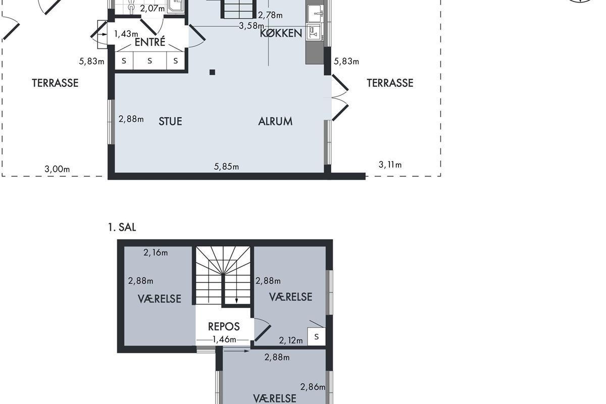
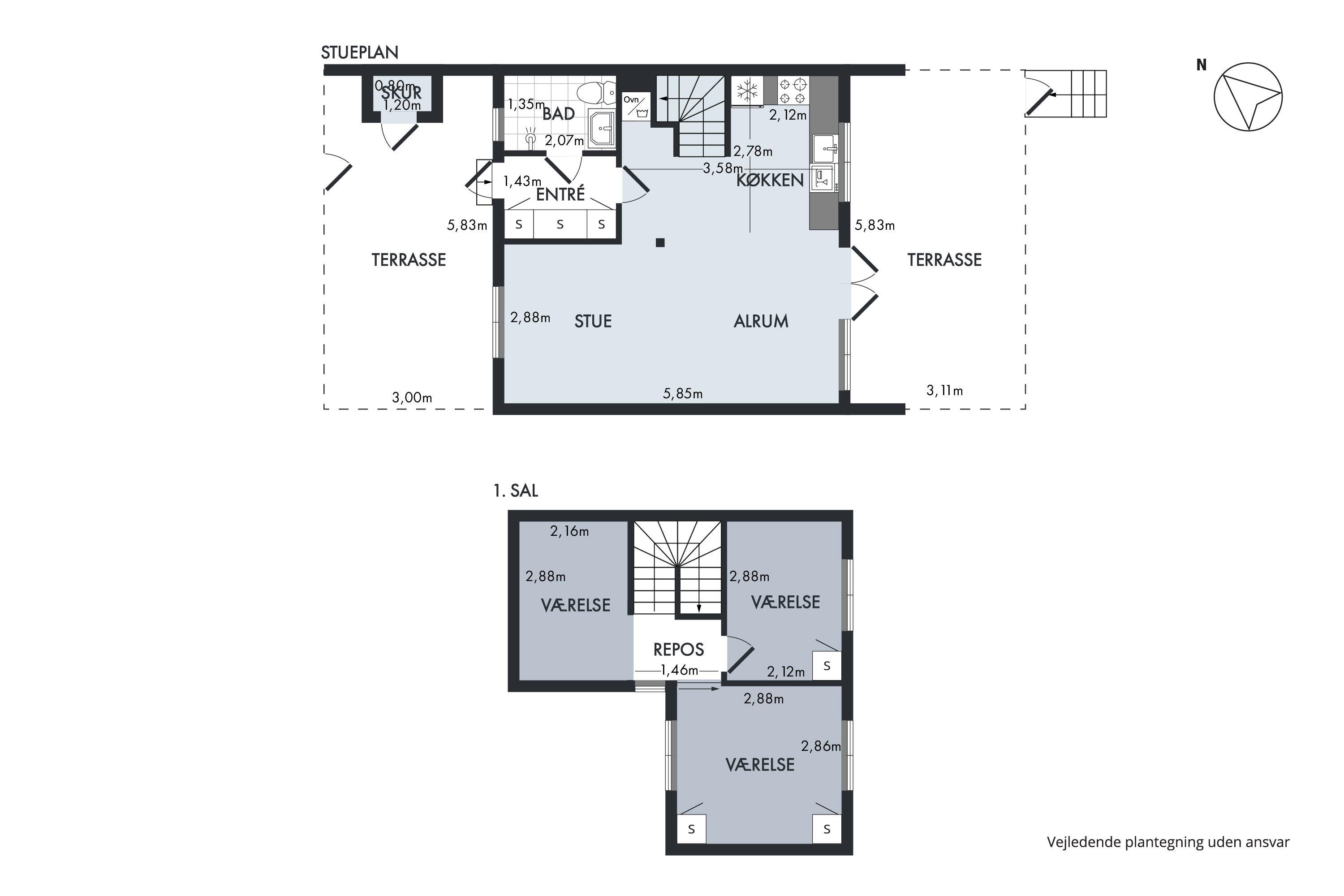
On the ground floor, you'll find a bright and comfortably furnished living room in open connection with the well-equipped kitchen/dining area, which has access to the west-facing terrace. The dining area seats 6 people, and the lounge features a TV with Danish (including TV2) and German channels. The modern kitchen is equipped with ceramic stovetops, a built-in oven, refrigerator/freezer, dishwasher, and washing machine. A lovely bathroom is fitted with a vanity, shower, and underfloor heating. On the first floor, there are 6 sleeping spaces, including two double beds (180x200 cm) and one smaller double bed (140x200 cm). The apartment also has internet access.
Øer Maritime Holiday Village is set in a peaceful and exceptionally scenic location. Guests have access to a variety of sports activities for an additional fee, including an indoor swimming pool, a multi-sport hall with badminton, table tennis, and various ball games, as well as outdoor mini-golf, tennis, petanque, beach volleyball, and football. Sports equipment like balls and rackets can be rented at the village shop. It's also possible to rent pedal boats, SUPs, canoes, or boat slips by contacting the harbor master at tel. 61 61 66 93. For younger guests, there is a playground and a bouncy castle, and chess enthusiasts can enjoy a giant chess set next to the observation tower. A walk to the ice cream shop by the harbor sluice is a great way to end an active day.
Øer is a hilly and beautiful natural area located just a few kilometers south of Ebeltoft, known for its charming cobblestone streets and great shopping options. Øer Strand is characterized by shallow waters, large sandbanks, and abundant birdlife. The area offers excellent opportunities for fishing and water activities, and it’s perfect for cycling and hiking trips.
On the ground floor, you'll find a bright and comfortably furnished living room in open connection with the well-equipped kitchen/dining area, which has access to the west-facing terrace. The dining area seats 6 people, and the lounge features a TV with Danish (including TV2) and German channels. The modern kitchen is equipped with ceramic stovetops, a built-in oven, refrigerator/freezer, dishwasher, and washing machine. A lovely bathroom is fitted with a vanity, shower, and underfloor heating. On the first floor, there are 6 sleeping spaces, including two double beds (180x200 cm) and one smaller double bed (140x200 cm). The apartment also has internet access.
Øer Maritime Holiday Village is set in a peaceful and exceptionally scenic location. Guests have access to a variety of sports activities for an additional fee, including an indoor swimming pool, a multi-sport hall with badminton, table tennis, and various ball games, as well as outdoor mini-golf, tennis, petanque, beach volleyball, and football. Sports equipment like balls and rackets can be rented at the village shop. It's also possible to rent pedal boats, SUPs, canoes, or boat slips by contacting the harbor master at tel. 61 61 66 93. For younger guests, there is a playground and a bouncy castle, and chess enthusiasts can enjoy a giant chess set next to the observation tower. A walk to the ice cream shop by the harbor sluice is a great way to end an active day.
Øer is a hilly and beautiful natural area located just a few kilometers south of Ebeltoft, known for its charming cobblestone streets and great shopping options. Øer Strand is characterized by shallow waters, large sandbanks, and abundant birdlife. The area offers excellent opportunities for fishing and water activities, and it’s perfect for cycling and hiking trips.
7 nachten
Vanaf
€ 628,-
Incl. schoonmaak en verzekering
Prijzen en kalender
Prijs
Periode
- Aankomst
- Vertrek
- Duur
- 1 week
Personen
Tot 6 personen
Let op
Aankomst is niet geselecteerd.