Stenagervej 34 B, st. - Øer - 8400 - Ebeltoft
Objectnr: 045-773583
Beschrijving
De beschrijving is helaas niet beschikbaar in het Nederlands. Bekijk de tekst hieronder in het Engels of bekijk de automatisch vertaalde tekst in Nederlands.
Well-maintained, spacious, and inviting holiday apartment on an elevated, open natural plot with panoramic views of the Kattegat Sea and the hilly landscape south of Ebeltoft. The apartment is on the ground floor and has a southwest-facing tiled terrace with garden furniture, sun loungers, and a grill. On the large plot, shared with three other holiday apartments, there is a bonfire area as well as a swing set and sandbox for the children.
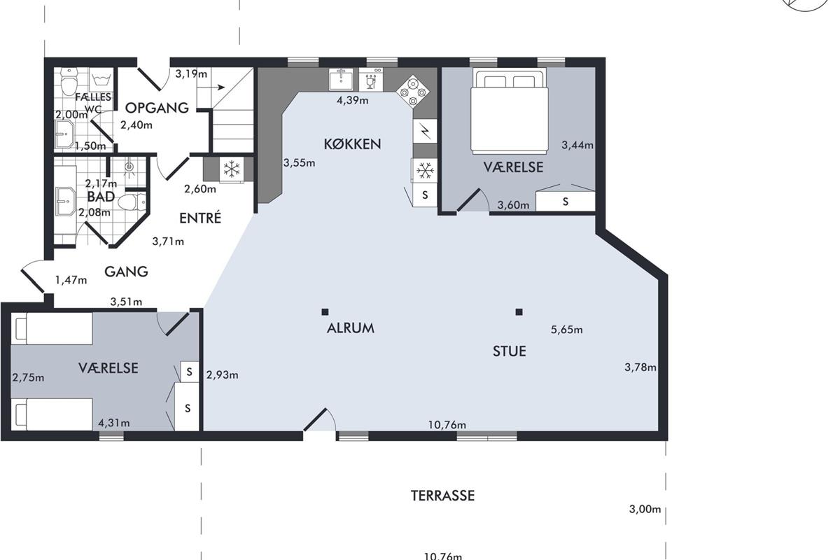
The apartment shares the main door with the apartment on the 1st floor and has its own entrance door in the common entrance. From here, you enter directly into the large living room in an open connection with the kitchen via a small hallway. The living room has access to the terrace and accommodates a good dining area for 7 people, two comfortable sofa areas with armchairs, TV with Danish free channels, CD player, and radio. Large, lovely kitchen with ample workspace, ceramic hobs, built-in oven, large fridge/freezer, dishwasher, and microwave, as well as another dining area for 7 people. The apartment has 7 sleeping places, distributed in 1 large, bright bedroom with a double bed, a slightly smaller room with 1 single bed and 1 extra-wide bunk bed, in addition to 2 sleeping places on a sofa bed in the living room. Nice bathroom with underfloor heating and shower, as well as an additional bathroom with a washing machine and entrance from the entrance. There is a crib and a high chair for the little ones. Internet access.
Only a short distance to the charming streets of Ebeltoft and good shopping opportunities to the north, and to the south, the child-friendly Øer Strand, known for shallow water, large sandbanks, and rich birdlife. Good opportunities for fishing and lovely cycling and hiking trails.
The apartment shares the main door with the apartment on the 1st floor and has its own entrance door in the common entrance. From here, you enter directly into the large living room in an open connection with the kitchen via a small hallway. The living room has access to the terrace and accommodates a good dining area for 7 people, two comfortable sofa areas with armchairs, TV with Danish free channels, CD player, and radio. Large, lovely kitchen with ample workspace, ceramic hobs, built-in oven, large fridge/freezer, dishwasher, and microwave, as well as another dining area for 7 people. The apartment has 7 sleeping places, distributed in 1 large, bright bedroom with a double bed, a slightly smaller room with 1 single bed and 1 extra-wide bunk bed, in addition to 2 sleeping places on a sofa bed in the living room. Nice bathroom with underfloor heating and shower, as well as an additional bathroom with a washing machine and entrance from the entrance. There is a crib and a high chair for the little ones. Internet access.
Only a short distance to the charming streets of Ebeltoft and good shopping opportunities to the north, and to the south, the child-friendly Øer Strand, known for shallow water, large sandbanks, and rich birdlife. Good opportunities for fishing and lovely cycling and hiking trails.
7 nachten
Vanaf
€ 458,-
Incl. verzekering
Prijzen en kalender
Prijs
Periode
- Aankomst
- Vertrek
- Duur
- 1 week
Personen
Tot 6 personen
Let op
Aankomst is niet geselecteerd.
Opmerkingen