Ruim vakantiehuis met zeezicht nabij strand
Strandskadevej - 8950 - Ørsted
Objectnr: 548-999141971
Ruim en licht vakantiehuis met zeezicht, dichtbij het kindvriendelijke Store Sjørup Strand.
Beschrijving
Informatie over de aankomst wordt 4 dagen voor aankomst als bericht verstuurd
Mooi licht vakantiehuis dicht bij het strand.
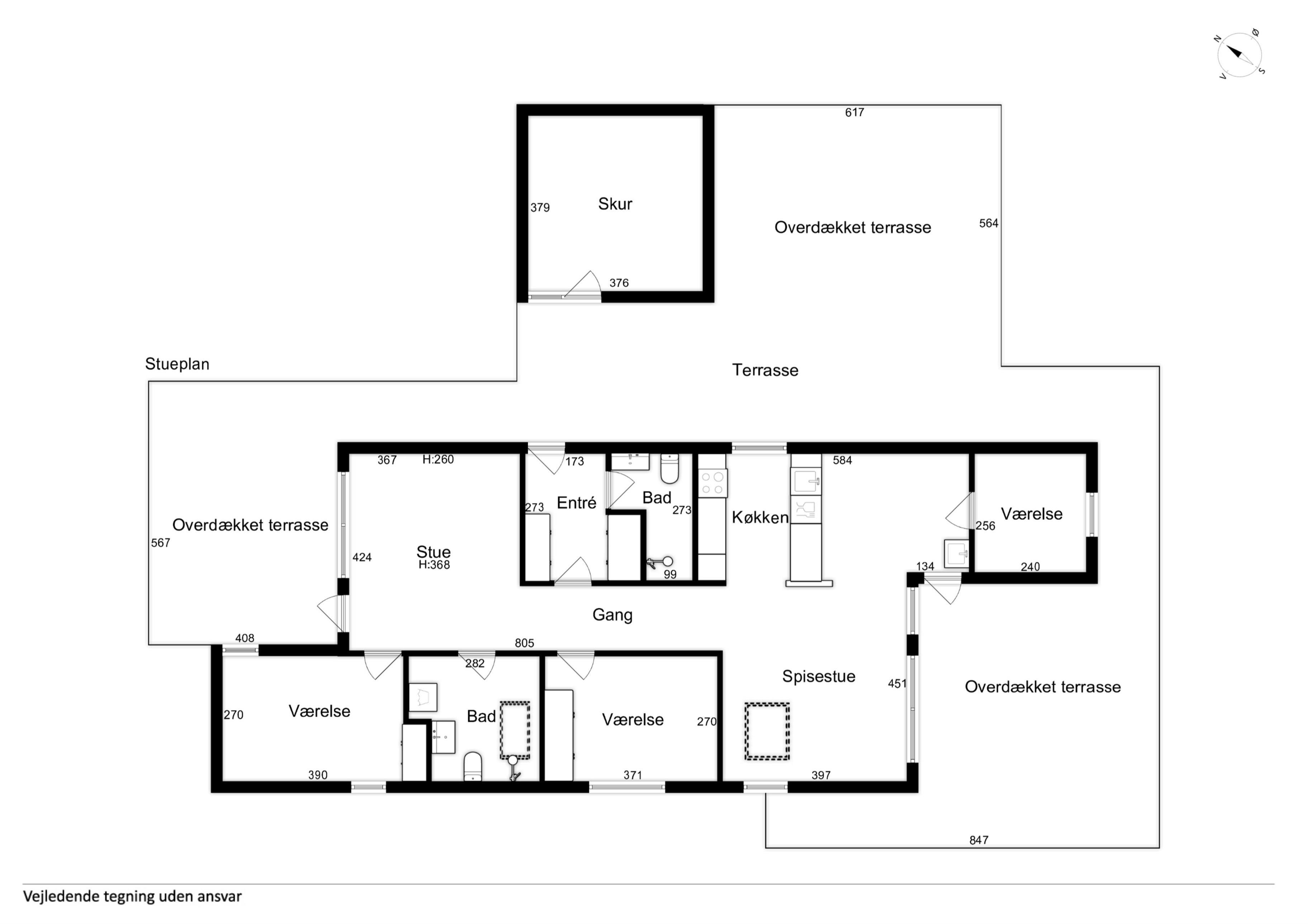
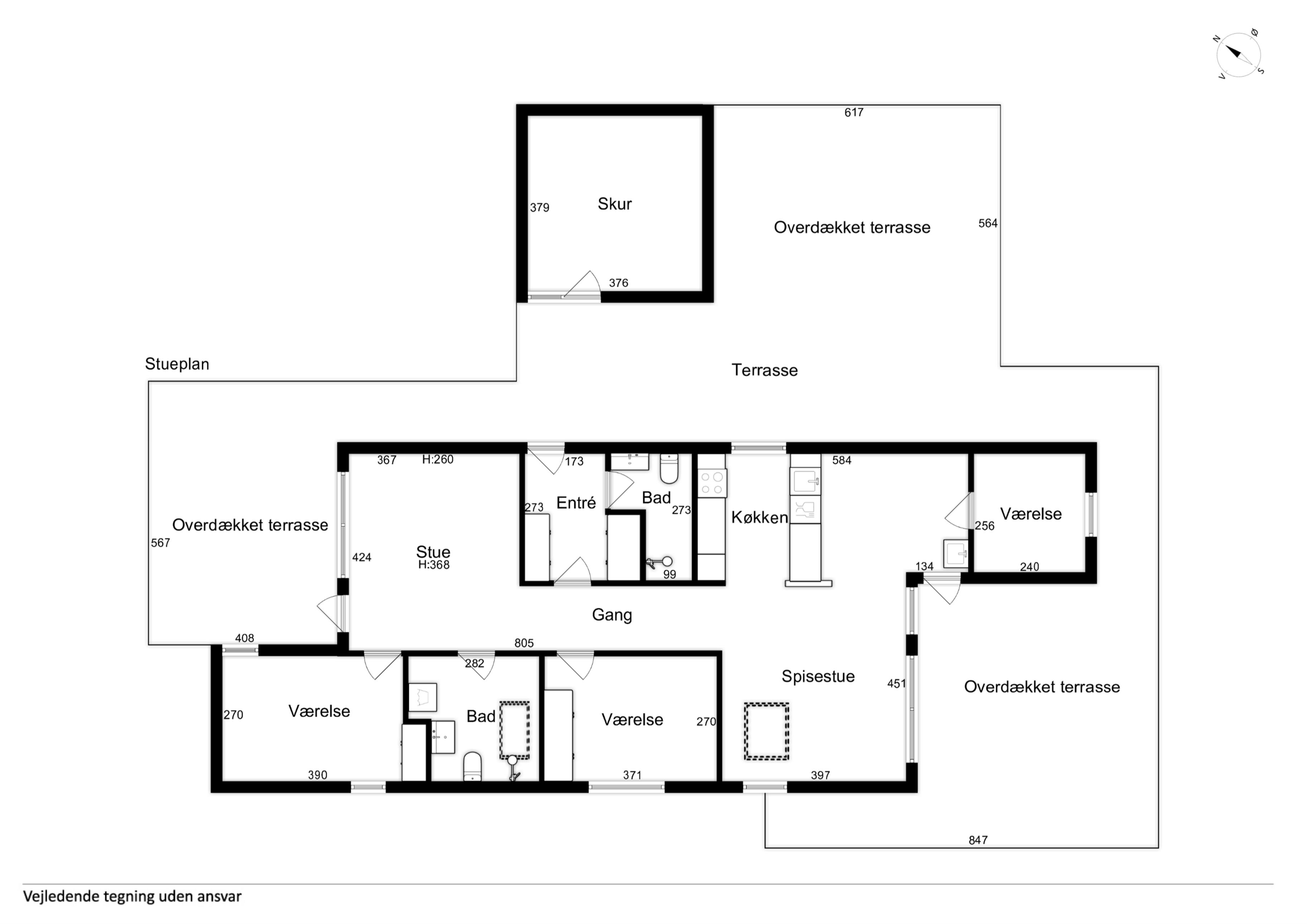
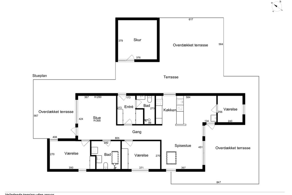
Deze grote en lichte vakantiewoning uit 2016 ligt op 350 meter van het uiterst kindvriendelijke Store Sjørup Strand. Het huis bevindt zich op een prachtig groot perceel en is omgeven door een betegeld terras, zodat u altijd een plekje in de zon kunt vinden. Vanaf het perceel van het vakantiehuis heeft u uitzicht op zee. Het vakantiehuis is ingericht met een goed uitgeruste keuken met een lichte en ruime eethoek. Vanuit hier heeft u toegang tot een groot overdekt terras op het zuidoosten, voorzien van comfortabele tuinstoelen, een tafel en een barbecue. De 7 slaapplaatsen en 1 kinderbed (0-4 jaar) zijn verdeeld over 3 slaapkamers. Er zijn twee badkamers – beide met douche en vloerverwarming, waarvan de grootste met wasmachine en droger. Daarnaast bevat het vakantiehuis een woonkamer met ruimte voor ontspanning, gezelligheid, tv-kijken en spelletjes voor alle vakantiegangers. Het huis heeft gratis internet en Chromecast, waarmee u uw eigen tv-diensten kunt streamen. Vanuit de woonkamer heeft u toegang tot een overdekt terras op het noordwesten met tuinmeubilair, waar u kunt genieten van de middag- en avondzon. Store Sjørup Strand ligt aan het Kattegat met een wad en prachtige witte zandbanken. In de zomerperiode zijn de zandbanken, vooral bij laag water, populair om te ontspannen, spelen, zonnebaden en zwemmen. Neem een strandtas met eten, drinken en zwemkleding mee en loop 300 meter door het wad naar een zandbank voor een unieke en prachtige natuurervaring met het gezin. Ook kunt u vanaf de zandbank vissen met een hengel. De kust is bovendien een uitstekend vertrekpunt voor mooie fiets- en wandeltochten in de gevarieerde natuur. Djursland heeft een overvloed aan attracties binnen korte rijafstand. Vanaf het vakantiehuis is het minder dan 15 minuten rijden naar de Randers Fjord, waar u goed kunt vissen, 15 minuten naar het Fjordcentrum, 15 minuten naar het Groene Museum en het Gl. Estrup Slotmuseum, 25 minuten naar Djurs Sommerland, 25 minuten naar de gezellige vissershaven in Bønnerup, 30 minuten naar Randers Regnskov, 35 minuten naar het Kattegatcentrum en 35 minuten naar het Scandinavisch Dierenpark. Let op: Niet te huur voor commercieel gebruik.
Let op: Niet te huur voor commercieel gebruik.
Mooi licht vakantiehuis dicht bij het strand.
Deze grote en lichte vakantiewoning uit 2016 ligt op 350 meter van het uiterst kindvriendelijke Store Sjørup Strand. Het huis bevindt zich op een prachtig groot perceel en is omgeven door een betegeld terras, zodat u altijd een plekje in de zon kunt vinden. Vanaf het perceel van het vakantiehuis heeft u uitzicht op zee. Het vakantiehuis is ingericht met een goed uitgeruste keuken met een lichte en ruime eethoek. Vanuit hier heeft u toegang tot een groot overdekt terras op het zuidoosten, voorzien van comfortabele tuinstoelen, een tafel en een barbecue. De 7 slaapplaatsen en 1 kinderbed (0-4 jaar) zijn verdeeld over 3 slaapkamers. Er zijn twee badkamers – beide met douche en vloerverwarming, waarvan de grootste met wasmachine en droger. Daarnaast bevat het vakantiehuis een woonkamer met ruimte voor ontspanning, gezelligheid, tv-kijken en spelletjes voor alle vakantiegangers. Het huis heeft gratis internet en Chromecast, waarmee u uw eigen tv-diensten kunt streamen. Vanuit de woonkamer heeft u toegang tot een overdekt terras op het noordwesten met tuinmeubilair, waar u kunt genieten van de middag- en avondzon. Store Sjørup Strand ligt aan het Kattegat met een wad en prachtige witte zandbanken. In de zomerperiode zijn de zandbanken, vooral bij laag water, populair om te ontspannen, spelen, zonnebaden en zwemmen. Neem een strandtas met eten, drinken en zwemkleding mee en loop 300 meter door het wad naar een zandbank voor een unieke en prachtige natuurervaring met het gezin. Ook kunt u vanaf de zandbank vissen met een hengel. De kust is bovendien een uitstekend vertrekpunt voor mooie fiets- en wandeltochten in de gevarieerde natuur. Djursland heeft een overvloed aan attracties binnen korte rijafstand. Vanaf het vakantiehuis is het minder dan 15 minuten rijden naar de Randers Fjord, waar u goed kunt vissen, 15 minuten naar het Fjordcentrum, 15 minuten naar het Groene Museum en het Gl. Estrup Slotmuseum, 25 minuten naar Djurs Sommerland, 25 minuten naar de gezellige vissershaven in Bønnerup, 30 minuten naar Randers Regnskov, 35 minuten naar het Kattegatcentrum en 35 minuten naar het Scandinavisch Dierenpark. Let op: Niet te huur voor commercieel gebruik.
Let op: Niet te huur voor commercieel gebruik.
7 nachten
Vanaf
€ 812,-
Incl. schoonmaak en verzekering
7
personen
Prijzen en kalender
Prijs
Periode
- Aankomst
- Vertrek
- Duur
- 1 week
Personen
Geen personen geselecteerd
Let op
Aankomst is niet geselecteerd.
Er zijn geen personen geselecteerd.
1 externe beoordeling