Stijlvol gerenoveerd rietenhuis nabij het strand
Østkystvejen - Aså Strand - 9340 - Asaa
Objectnr: 130-A27363
Ontspan in een stijlvol gerenoveerd rietenhuis nabij het strand met moderne comfort en landelijke charme.
Beschrijving
Breng ontspannen dagen door in een stijlvol gerenoveerd huis met rieten dak midden in een uitgestrekt landschap.
Gun jezelf een onderbreking van het dagelijks leven en geniet van de charme van een historisch landhuis met modern comfort, op korte afstand van het strand. Maak het jezelf gemakkelijk in de ruime woonkamers. Het huis combineert liefdevol gerestaureerde details met duidelijke, moderne accenten. Ontspan op de grote bank met uitzicht op de tuin of gezellig aan de lange eettafel. Kook samen in de moderne keuken. Op koelere dagen zorgt de houtkachel voor aangename warmte en een gezellige sfeer.
Stap naar buiten in de rustige natuurlijke omgeving van het huis. De grote binnenplaats en de omliggende velden nodigen uit om de dag buiten door te brengen met een kopje koffie, een goed boek of een wandeling direct vanaf de voordeur. De rustige ligging en het weidse uitzicht over de velden creëren ideale omstandigheden om tot rust te komen.
Ontdek de oostkust van Noord-Jutland. Ga naar het kindvriendelijke zandstrand van Aså, wandel of fiets door het zacht glooiende landschap of bezoek de charmante kustplaatsjes in de omgeving. Kleine winkeltjes en cafés wachten op je in Dronninglund, en het Dronninglund Slot nodigt je uit voor een ommetje. Aalborg met zijn gevarieerde culturele programma is ook gemakkelijk te bereiken en wordt aanbevolen voor een dagtocht.
Vakantiehuis
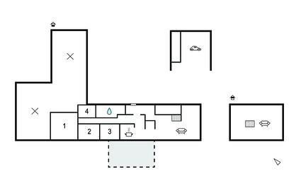
Slaapkamer (nr. 1) - 2 Slaapplaatsen. (Opklapbed(den) of matras(sen)).
Slaapkamer (nr. 2) - 2 Slaapplaatsen. (Stapelbed).
Slaapkamer (nr. 3) - 2 Slaapplaatsen. (2-persoonsbed(den)).
Slaapkamer (nr. 4) - 2 Slaapplaatsen. (Opklapbed(den) of matras(sen)).
Woonkamer
Keuken
Badkamer (nr. 1) - Toilet: warm en koud water. Douche
Terras of vergelijkbaar - Open terras
Gun jezelf een onderbreking van het dagelijks leven en geniet van de charme van een historisch landhuis met modern comfort, op korte afstand van het strand. Maak het jezelf gemakkelijk in de ruime woonkamers. Het huis combineert liefdevol gerestaureerde details met duidelijke, moderne accenten. Ontspan op de grote bank met uitzicht op de tuin of gezellig aan de lange eettafel. Kook samen in de moderne keuken. Op koelere dagen zorgt de houtkachel voor aangename warmte en een gezellige sfeer.
Stap naar buiten in de rustige natuurlijke omgeving van het huis. De grote binnenplaats en de omliggende velden nodigen uit om de dag buiten door te brengen met een kopje koffie, een goed boek of een wandeling direct vanaf de voordeur. De rustige ligging en het weidse uitzicht over de velden creëren ideale omstandigheden om tot rust te komen.
Ontdek de oostkust van Noord-Jutland. Ga naar het kindvriendelijke zandstrand van Aså, wandel of fiets door het zacht glooiende landschap of bezoek de charmante kustplaatsjes in de omgeving. Kleine winkeltjes en cafés wachten op je in Dronninglund, en het Dronninglund Slot nodigt je uit voor een ommetje. Aalborg met zijn gevarieerde culturele programma is ook gemakkelijk te bereiken en wordt aanbevolen voor een dagtocht.
Vakantiehuis
Slaapkamer (nr. 1) - 2 Slaapplaatsen. (Opklapbed(den) of matras(sen)).
Slaapkamer (nr. 2) - 2 Slaapplaatsen. (Stapelbed).
Slaapkamer (nr. 3) - 2 Slaapplaatsen. (2-persoonsbed(den)).
Slaapkamer (nr. 4) - 2 Slaapplaatsen. (Opklapbed(den) of matras(sen)).
Woonkamer
Keuken
Badkamer (nr. 1) - Toilet: warm en koud water. Douche
Terras of vergelijkbaar - Open terras
7 nachten
Vanaf
€ 709,-
Incl. schoonmaak
Prijzen en kalender
Prijs
Periode
- Aankomst
- Vertrek
- Duur
- 1 week
Personen
Tot 8 personen
Let op
Aankomst is niet geselecteerd.