Arvidvej - Bjerregård - 6960 - Hvide Sande

Objectnr: 328-624906
  • Personen
    6 personen
  • Slaapkamers3 Slaapkamers
  • Badkamers2 Badkamers
  • Woonoppervlakte102 m² Woonoppervlakte
  • HuisdierenNiet toegestaan Huisdieren

Beschrijving

De beschrijving is helaas niet beschikbaar in het Nederlands. Bekijk de tekst hieronder in het Engels of bekijk de automatisch vertaalde tekst in Nederlands.

Looking for a traditional holiday home with comfort? This might be the right holiday home for you. This distinctively furnished holiday home with two stars is located at Arvidvej 114 in the popular holiday region of Bjerregård, just 400 metres from the beautiful, rolling North Sea.

Up to six people can enjoy a perfect holiday in this scenically attractive setting. The holiday home is practically furnished and features three bedrooms and two bathrooms.

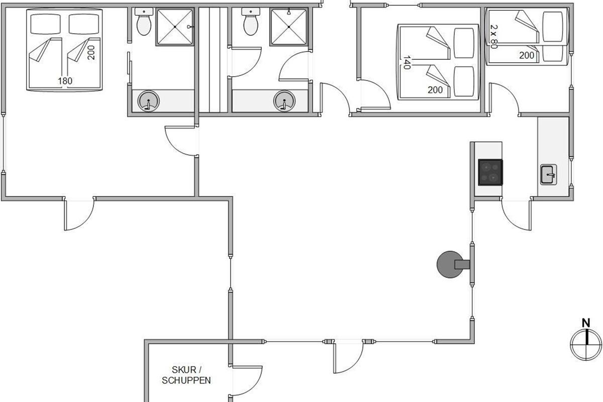
Holiday home for six people with two bathrooms

The heart of this holiday home is its open-plan living space, combining the living room, dining area and kitchen. After an eventful day exploring nature, relax on the sofa with a fun game or a good book. The wood-burning stove provides warmth and a cosy holiday atmosphere. In the morning, before lighting the stove, the energy-efficient heat pump serves as an economical heating source.

The holiday home accommodates six people in three bedrooms, two of which feature double beds. The master bedroom includes an en-suite bathroom and direct access to the terrace. Children will be delighted with the third bedroom's bunk beds. The holiday home has two bathrooms, both equipped with underfloor heating and showers. A washing machine is also provided.

Partially screened and covered terrace

The living room opens directly onto the partially covered and screened terrace. Relax on the sun loungers and enjoy peaceful moments - either with family or friends - while listening to the sound of the North Sea.

In the evening, prepare dinner on the barbecue while planning tomorrow's holiday activities around the large terrace table.

Holiday in popular Bjerregård

The holiday home is situated in Hegnet, just south of Bjerregård. It's only 400 metres to the North Sea and its miles of sandy beach, perfect for long barefoot walks along the water's edge on warm summer days. The beach is worth visiting year-round, whether on a warm summer's day or a windy autumn afternoon.

Bjerregård has a grocery shop for your holiday essentials. For larger shopping trips, visit Hvide Sande, a charming harbour town with activities for the whole family, including a swimming pool and a selection of local shops and restaurants.

7 nachten
Vanaf 514,-

Prijzen en kalender

Duur
Aankomst
Vorige Volgende
  • juni 2026
    madiwodovrzazo
    231234567
    24891011121314
    2515161718192021
    2622232425262728
    272930
    28
  • juli 2026
    madiwodovrzazo
    2712345
    286789101112
    2913141516171819
    3020212223242526
    312728293031
    32
   Kijk of het object beschikbaar is op de geselecteerde datum
Vrij
Bezet
   Aankomst mogelijk

Prijs

Periode
Aankomst
Vertrek
Duur
1 week
Personen
Tot 6 personen

Let op

Aankomst is niet geselecteerd.
Contract- en huurvoorwaarden

Indeling & inrichting

Ligging & omgeving

Locatie pin Kaart Denemarken

Klantenservice

Stel ons een vraag over dit object

Klik hier om ons een vraag over dit object te sturen.