Arvidvej - Bjerregård - 6960 - Hvide Sande

Objectnr: 328-992671
  • Personen
    8 personen
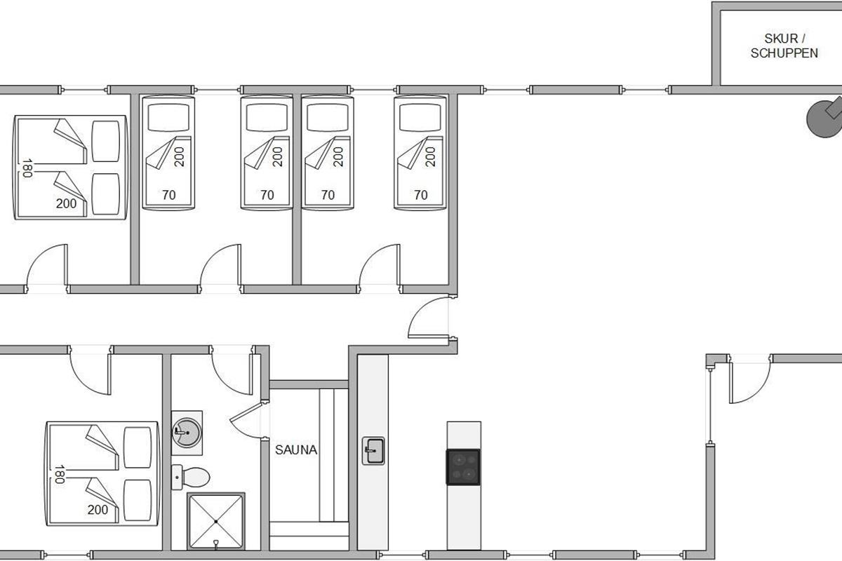
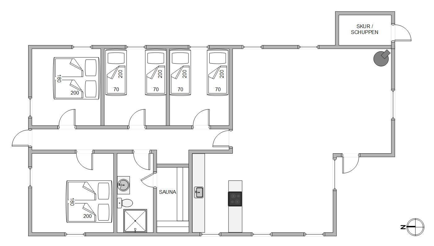
  • Slaapkamers4 Slaapkamers
  • Badkamers1 Badkamers
  • Woonoppervlakte111 m² Woonoppervlakte
  • HuisdierenNiet toegestaan Huisdieren

Beschrijving

De beschrijving is helaas niet beschikbaar in het Nederlands. Bekijk de tekst hieronder in het Engels of bekijk de automatisch vertaalde tekst in Nederlands.

At Arvidvej 37, a spacious and comfortably furnished holiday home awaits you in a pleasant neighbourhood of other holiday properties. Listen to the sound of the sea and enjoy the fresh air from the covered terrace or relax in a lounger on the south-facing terrace. This beautiful holiday home can accommodate up to 8 people for a relaxing break. The holiday home's kitchen and bathroom are renovated in 2025.

4 bedrooms and living area with fireplace and heat pump

The sleeping area comprises four separate bedrooms, two with double beds and two with twin beds. The bathroom features underfloor heating.

An energy-efficient heat pump maintains a comfortable temperature in the living area throughout your stay. Make yourself cosy by the warming fireplace and enjoy a family film night in the large corner sofa.

The practical and moderne kitchen, equipped with dishwasher and microwave, opens onto the living area and invites you to try out delicious new recipes.

Arvdivej 37 - Naturally screened terrace for private outdoor living

The partially covered south-facing terrace allows you to enjoy the natural surroundings. Garden furniture, sun loungers and a barbecue are provided. Although the holiday home is situated in a holiday home community, privacy is well maintained.

Holiday in Bjerregård on the Danish west coast

Located between the fjord and North Sea, this is an ideal spot for relaxation. You'll find numerous opportunities for water sports and fishing trips, while the unspoilt nature of the Danish west coast is perfect for cycling tours and extended walks.

For a picnic in the countryside, Bjerregård has a local shop where you can buy fresh fish and delicious baked goods. For larger shopping trips, visits to Nørre Nebel and Hvide Sande are recommended.

7 nachten
Vanaf 884,-
Incl. schoonmaak

Prijzen en kalender

Duur
Aankomst
Volgende
  • december 2025
    madiwodovrzazo
    491234567
    50891011121314
    5115161718192021
    5222232425262728
    1293031
    2
  • januari 2026
    madiwodovrzazo
    11234
    2567891011
    312131415161718
    419202122232425
    5262728293031
    6
   Kijk of het object beschikbaar is op de geselecteerde datum
Vrij
Bezet
   Aankomst mogelijk

Prijs

Periode
Aankomst
Vertrek
Duur
1 week
Personen
Tot 8 personen

Let op

Aankomst is niet geselecteerd.
Contract- en huurvoorwaarden

Indeling & inrichting

Ligging & omgeving

Locatie pin Kaart Denemarken

Klantenservice

Stel ons een vraag over dit object

Klik hier om ons een vraag over dit object te sturen.