Comfortabel vakantiehuis met sauna en bubbelbad
Solhaven - 6857 - Blåvand
Objectnr: 121-26-0860
Ruim en modern vakantiehuis in Blåvand met sauna, bubbelbad en speelruimte, ideaal voor een ontspannen verblijf.
Beschrijving
Inrichting
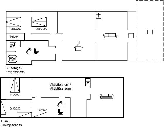
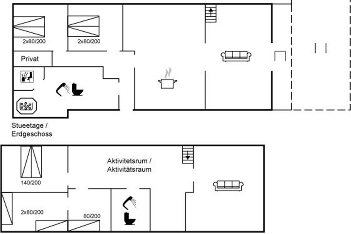
Vakantiehuis is geschikt voor 9 personen. De vakantiewoning heeft een oppervlakte van 210 m2, bestaat uit 2 verdiepingen, en is gebouwd in 1988. In 2020 is de vakantiewoning volledig renoveerd. Het is toegestaan om 2 huisdieren mee te nemen. De vakantiewoning is uitgerust met 1 energiezuinige lucht-naar-lucht-warmtepomp. De vakantiewoning heft Wasmachine. Wasdroge. Vriezer capaciteit van 60 liter. Er is daarnaast houtkachel. Voor de kleintjes 1 stukken Kinderstoel. Verschoningstafel.
Buiten
De vakantiewoning is gelegen op een 2500 m² groot natuural grond. Afstand tot de zee 1500 m. Dichtstbijzijnde winkel 1200 m. Bij de vakantiewoning hoort terras. Daarnaast is er een overdekt terras. Zandbak. Barbecue. Carport ter beschikking. Parkeerplaats bij het huis.
Activiteitenruimte
Dart. Airhockey.
Slaapomstandigheden
Er zijn in totaal 4 slaapkamers. De slaapplaatsen zijn als volgt verdeeld: 6 slaapplaatsen in tweepersoonsbedden. 3 slaapplaatsen in eenpersoonsbedden.
Keuken
De keuken is uitgerust met koelkast Er is 4 inductiekookplaten, heteluchtoven, magnetron en vaatwasser.
Douche en toilet
Er is 2 badkamers met douchehok en 2 toiletten. Er is vloerverwarming in 1 badkamer. De sauna biedt de gelegenheid tot ontspanning.
Bubbelbad
Het binnenbubbelbad (vulwater) biedt ontspanning aan 5 personen.
Multimedia
In het vakantiehuis zijn 3 Smart-tv’s aanwezig.Playstation3. Tenminste 4 deense zenders. Tenminste 4 duitse zenders. Draadloos internet.
Goed om te weten
Geen verhuur aan jeugdgroepen waar iedereen tussen de 15 en 25 jaar oud is. Roken niet toegestaan. Bij overtreding van het verbod wordt een boete van minimaal EUR 420,- in rekening gebracht.
Vakantiehuis is geschikt voor 9 personen. De vakantiewoning heeft een oppervlakte van 210 m2, bestaat uit 2 verdiepingen, en is gebouwd in 1988. In 2020 is de vakantiewoning volledig renoveerd. Het is toegestaan om 2 huisdieren mee te nemen. De vakantiewoning is uitgerust met 1 energiezuinige lucht-naar-lucht-warmtepomp. De vakantiewoning heft Wasmachine. Wasdroge. Vriezer capaciteit van 60 liter. Er is daarnaast houtkachel. Voor de kleintjes 1 stukken Kinderstoel. Verschoningstafel.
Buiten
De vakantiewoning is gelegen op een 2500 m² groot natuural grond. Afstand tot de zee 1500 m. Dichtstbijzijnde winkel 1200 m. Bij de vakantiewoning hoort terras. Daarnaast is er een overdekt terras. Zandbak. Barbecue. Carport ter beschikking. Parkeerplaats bij het huis.
Activiteitenruimte
Dart. Airhockey.
Slaapomstandigheden
Er zijn in totaal 4 slaapkamers. De slaapplaatsen zijn als volgt verdeeld: 6 slaapplaatsen in tweepersoonsbedden. 3 slaapplaatsen in eenpersoonsbedden.
Keuken
De keuken is uitgerust met koelkast Er is 4 inductiekookplaten, heteluchtoven, magnetron en vaatwasser.
Douche en toilet
Er is 2 badkamers met douchehok en 2 toiletten. Er is vloerverwarming in 1 badkamer. De sauna biedt de gelegenheid tot ontspanning.
Bubbelbad
Het binnenbubbelbad (vulwater) biedt ontspanning aan 5 personen.
Multimedia
In het vakantiehuis zijn 3 Smart-tv’s aanwezig.Playstation3. Tenminste 4 deense zenders. Tenminste 4 duitse zenders. Draadloos internet.
Goed om te weten
Geen verhuur aan jeugdgroepen waar iedereen tussen de 15 en 25 jaar oud is. Roken niet toegestaan. Bij overtreding van het verbod wordt een boete van minimaal EUR 420,- in rekening gebracht.
7 nachten
Vanaf
€ 853,-
Optionele schoonmaak: EUR 210,-
Prijzen en kalender
Prijs
Periode
- Aankomst
- Vertrek
- Duur
- 1 week
Personen
Tot 9 personen
Let op
Aankomst is niet geselecteerd.