Rietgedekt huis met sauna en dichtbij strand

Vesterhavsparken - 6857 - Blåvand

Objectnr: 130-P32508
Prachtig rietgedekt rijtjeshuis in Blåvand met 4 slaapkamers, sauna en nabij het strand en het centrum.
  • Personen
    8 personen
  • Slaapkamers4 Slaapkamers
  • Badkamers2 Badkamers
  • Woonoppervlakte134 m² Woonoppervlakte
  • HuisdierenNiet toegestaan Huisdieren

Beschrijving

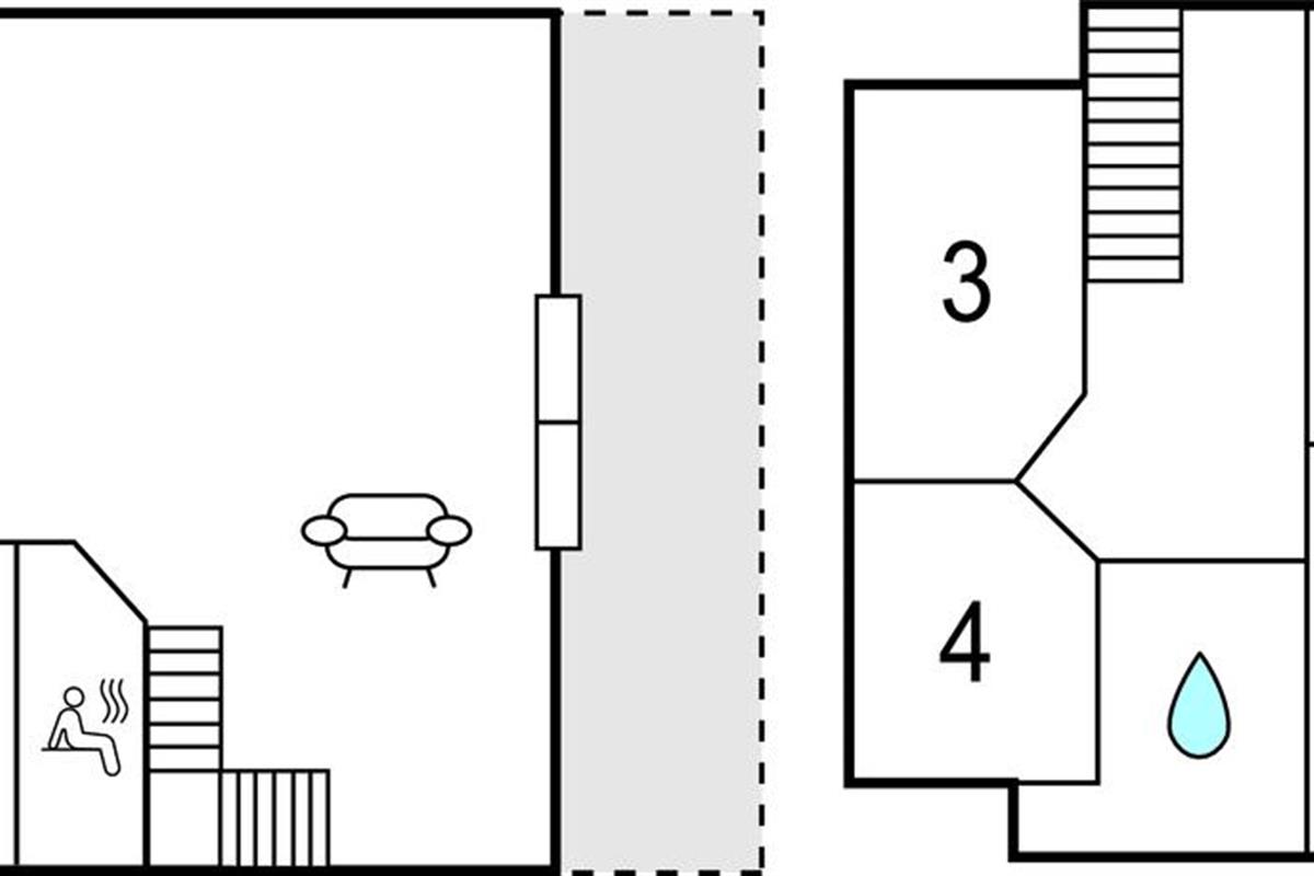
Prachtig rietgedekt rijtjeshuis op een centrale locatie in Blåvand. De 4 slaapkamers op de bovenverdieping, de grote open keuken-woonruimte op de begane grond en een badkamer op elke verdieping vormen de perfecte setting voor een mooie vakantie. U kunt van de zon genieten op het terras op het zuiden. Op slechts een paar minuten lopen omringt de drukte van Blåvand u met restaurants, een bowlingcentrum en diverse winkels. Het lange witte zandstrand nodigt uit tot lange wandelingen en de vuurtoren, het herkenningspunt van Blåvand, is overal vandaan te zien.

Kamerindeling

  • Vakantiewoning
    • Slaapkamer, 2 personen
      • Tweepersoonsbed
    • Slaapkamer, 2 personen
      • Tweepersoonsbed
    • Slaapkamer, 2 personen
      • 2 x Eenpersoonsbed
    • Slaapkamer, 2 personen
      • 2 x Eenpersoonsbed
    • Badkamer
      • Toilet met warm en koud water, Douche
    • Badkamer
      • Toilet met warm en koud water, Douche
    • Terras
      • Open terras
7 nachten
Vanaf 924,-
Incl. schoonmaak

Prijzen en kalender

Duur
Aankomst
Vorige Volgende
  • mei 2026
    madiwodovrzazo
    18123
    1945678910
    2011121314151617
    2118192021222324
    2225262728293031
    23
  • juni 2026
    madiwodovrzazo
    231234567
    24891011121314
    2515161718192021
    2622232425262728
    272930
    28
   Kijk of het object beschikbaar is op de geselecteerde datum
Vrij
Bezet
   Aankomst mogelijk

Prijs

Periode
Aankomst
Vertrek
Duur
1 week
Personen
Tot 8 personen

Let op

Aankomst is niet geselecteerd.
Contract- en huurvoorwaarden

Indeling & inrichting

Ligging & omgeving

Locatie pin Kaart Denemarken

Onze gastbeoordelingen Externe beoordelingen

4,3 gemiddeld 6 waarderingen
5
(2)
4
(4)
3
(0)
2
(0)
1
(0)

Opmerkingen

Geen beoordelingen hebben commentaar op Nederlands
Beoordeling van 1 bevat commentaar in een andere taal.
4,5 gemiddeld

2 externe beoordelingen

5,0
augustus 2025
  • Inchecken 5
  • Schoonmaak 5
  • Comfort 4
  • Faciliteiten 5
  • Locatie 4
  • Prijs-kwaliteitverhouding 4
4,0
augustus 2025
  • Inchecken 5
  • Schoonmaak 5
  • Comfort 4
  • Faciliteiten 4
  • Locatie 4
  • Prijs-kwaliteitverhouding 4

Klantenservice

Stel ons een vraag over dit object

Klik hier om ons een vraag over dit object te sturen.