Hedetoftvej - 6857 - Blåvand

Objectnr: 328-337989
  • Personen
    4 personen
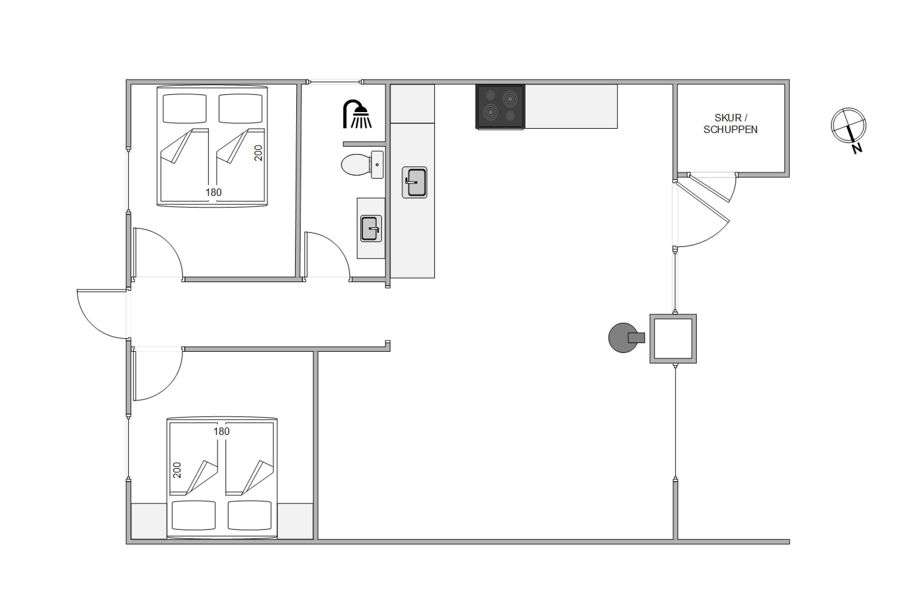
  • Slaapkamers2 Slaapkamers
  • Badkamers1 Badkamers
  • Woonoppervlakte60 m² Woonoppervlakte
  • Huisdieren2 Huisdieren

Beschrijving

De beschrijving is helaas niet beschikbaar in het Nederlands. Bekijk de tekst hieronder in het Engels of bekijk de automatisch vertaalde tekst in Nederlands.

Sometimes you don't need luxury to enjoy a relaxing holiday. Sometimes all it takes is comfortable surroundings and natural beauty to escape from everyday life. If that's what you're looking for, take a look at this thatched roof cottage, renovated in 2022. Situated on a large natural plot at Hedetoftvej 44, this charming house has been lovingly renovated and refurbished with attention to detail. You, your family and your dogs will feel at home straight away. (Please note: Type 2 charging cable required)

Hygge atmosphere by the fireplace

The kitchen with its open-plan living and dining area forms the heart of the house, where you can spend cosy holiday time together. Preparing dinner becomes more enjoyable when done as a family. Plan a games or film evening, or simply enjoy the peaceful atmosphere in front of the crackling wood-burning stove.

During the cooler months, you can warm the holiday home to your preferred temperature using the energy-efficient heat pump. The holiday home also features an electric car charging point.

The two bedrooms each have a double bed. Here you can enjoy a lie-in or retreat with an engaging book in peaceful surroundings. The bathroom also shines with its new renovation, featuring everything you need with a shower, WC and washbasin.

Spacious natural grounds with terrace and children's play area

You should make the most of sunny, warm holiday days on the terrace at Hedetoftvej 44. Sun loungers and garden furniture are provided for outdoor relaxation. While you unwind, children can play to their heart's content or enjoy themselves on the small play tower with swing and slide.

Your holiday home is close to Kallesmærsk Hede, a large nature reserve perfect for walking dogs. The fenced dog forest is also nearby, where dogs can run off-lead.

To end your holiday day, why not fire up the barbecue? There's nothing better than finishing a day of holiday with a delicious steak and a glass of wine.

Blåvand and surroundings

The idyllic centre of Blåvand is just a half-mile (900 metres) away. You'll find various supermarkets, bakeries and delicatessens for your holiday shopping. Don't feel like cooking? Then treat yourself to a meal at one of Blåvand's many restaurants and let someone else do the work.

Besides the beautiful nature of the Danish west coast, Blåvand and its surroundings offer various activities and attractions. Blåvand's landmark, the Blåvandshuk Fyr lighthouse, is definitely worth a visit. The view over the North Sea, the Horns Rev sandbank and the dunes and heathland is uniquely beautiful.

7 nachten
Vanaf 514,-
Incl. schoonmaak

Prijzen en kalender

Duur
Aankomst
Vorige Volgende
  • april 2026
    madiwodovrzazo
    1412345
    156789101112
    1613141516171819
    1720212223242526
    1827282930
    19
  • mei 2026
    madiwodovrzazo
    18123
    1945678910
    2011121314151617
    2118192021222324
    2225262728293031
    23
   Kijk of het object beschikbaar is op de geselecteerde datum
Vrij
Bezet
   Aankomst mogelijk

Prijs

Periode
Aankomst
Vertrek
Duur
1 week
Personen
Tot 4 personen

Let op

Aankomst is niet geselecteerd.
Contract- en huurvoorwaarden

Indeling & inrichting

Ligging & omgeving

Locatie pin Kaart Denemarken

Klantenservice

Stel ons een vraag over dit object

Klik hier om ons een vraag over dit object te sturen.