Ingridsvej - 6857 - Blåvand

Objectnr: 328-578819
  • Personen
    8 personen
  • Slaapkamers4 Slaapkamers
  • Badkamers2 Badkamers
  • Woonoppervlakte160 m² Woonoppervlakte
  • Huisdieren2 Huisdieren

Beschrijving

De beschrijving is helaas niet beschikbaar in het Nederlands. Bekijk de tekst hieronder in het Engels of bekijk de automatisch vertaalde tekst in Nederlands.

Just 300 metres from Blåvand's white sandy beach, this lovely thatched roof house, renovated and modernised in 2020, awaits you. The comfortable décor exudes classic holiday home charm - featuring a wood-burning stove, sauna, sheltered terrace and balcony with surrounding views. The holiday home accommodates up to 8 people and welcomes dogs. From 2021, you can enjoy a new outdoor hot tub and a fantastic covered terrace.

Sauna and balcony with views at Ingridsvej 1

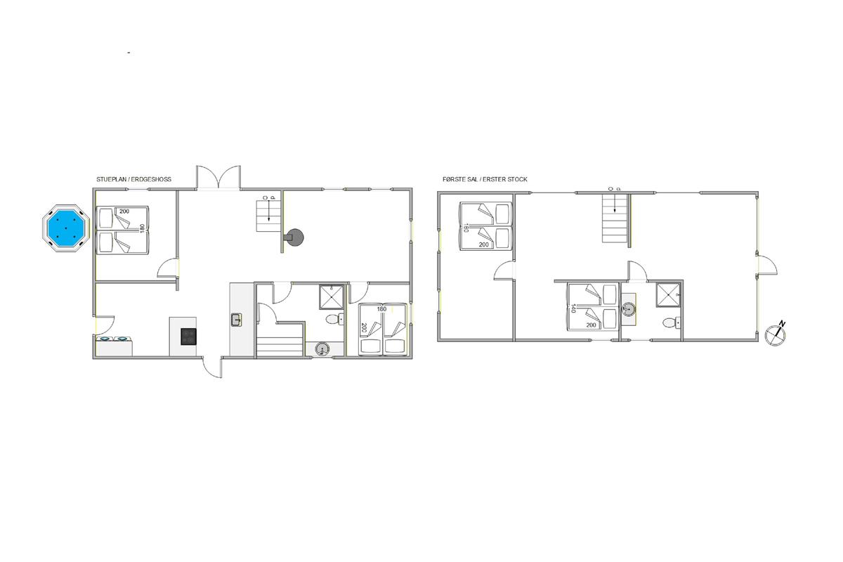
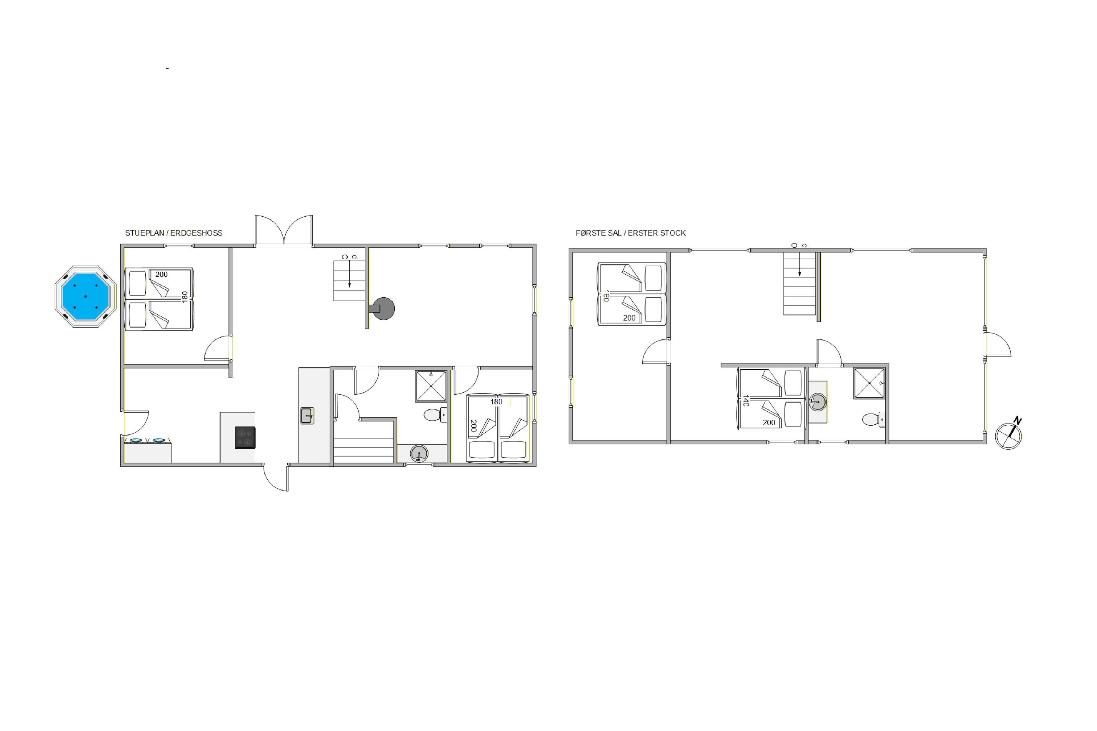
This thatched holiday home at Ingridsvej 1 offers ample space across two floors for up to 8 people. The floors are connected by an internal staircase. Two bedrooms, a cosy seating area with wonderful views, and an additional bathroom on the upper floor are ideal if you're travelling with friends or teenagers, who appreciate their own space. For football enthusiasts there is a table football table on the first floor, where you can hold a tournament or two, as well as in an annex a pool table, which can be used all year round.

Both floors feature shower rooms, with the ground floor bathroom also including a sauna. From the ground floor living room, you have access to a large, sheltered terrace where you can enjoy sunny days. The top floor offers access to a lovely balcony with splendid views of the Blåvandshuk lighthouse.

Cosy holiday atmosphere - fireplace, sauna and outdoor hot tub

The interior radiates a welcoming holiday atmosphere with light-filled rooms featuring wooden beams and classic furnishings. The ground floor living room centres around the wood-burning stove, which is sure to be the focal point of many wonderful holiday moments, with crackling flames providing a cosy backdrop.

For additional warmth and relaxation, enjoy the bathroom sauna and the fantastic outdoor hot tub on the terrace. Here you can spend peaceful hours recharging your batteries. Treat yourself to this experience and a perfect escape from everyday life. The terrace area was extended and modernised in 2020, providing a beautiful and comfortable outdoor space where you can spend many hours relaxing in the fresh air. During breezy weather, you can still enjoy the outdoors from the comfortably furnished covered terrace.

There's also a lockable shed where you can store bicycles and other equipment.

Superb location, just 300m from the beach and 10 minutes' walk from the centre

The house enjoys a truly wonderful location in Blåvand, just 300 metres from the beach. Only a five-minute walk through the dunes separates you from the thundering North Sea and the magnificent beach, which offers exciting natural experiences year-round.

A beach walk is always invigorating, and while children search for stones and shells on the beach, dogs can run free. The charming town centre of Blåvand, particularly lively during summer, is just 10 minutes' walk away. Here you'll find various restaurants, exciting shops and specialist stores worth visiting.

7 nachten
Vanaf 934,-

Prijzen en kalender

Duur
Aankomst
Vorige Volgende
  • april 2026
    madiwodovrzazo
    1412345
    156789101112
    1613141516171819
    1720212223242526
    1827282930
    19
  • mei 2026
    madiwodovrzazo
    18123
    1945678910
    2011121314151617
    2118192021222324
    2225262728293031
    23
   Kijk of het object beschikbaar is op de geselecteerde datum
Vrij
Bezet
   Aankomst mogelijk

Prijs

Periode
Aankomst
Vertrek
Duur
1 week
Personen
Tot 8 personen

Let op

Aankomst is niet geselecteerd.
Contract- en huurvoorwaarden

Indeling & inrichting

Ligging & omgeving

Locatie pin Kaart Denemarken

Onze gastbeoordelingen Externe beoordelingen

4,0 gemiddeld 1 waardering
5
(0)
4
(1)
3
(0)
2
(0)
1
(0)

Opmerkingen

Geen beoordelingen hebben commentaar op Nederlands
Beoordeling van 1 bevat commentaar in een andere taal.

Klantenservice

Stel ons een vraag over dit object

Klik hier om ons een vraag over dit object te sturen.