Fyrvej - 6857 - Blåvand

Objectnr: 328-937637
  • Personen
    7 personen
  • Slaapkamers4 Slaapkamers
  • Badkamers2 Badkamers
  • Woonoppervlakte97 m² Woonoppervlakte
  • Huisdieren2 Huisdieren

Beschrijving

De beschrijving is helaas niet beschikbaar in het Nederlands. Bekijk de tekst hieronder in het Engels of bekijk de automatisch vertaalde tekst in Nederlands.

This charming, compact holiday home at Fyrvej 17 enjoys a central location in the holiday resort of Blåvand. Just 200 metres on foot takes you to shops for daily essentials, while a 500-metre walk in the other direction leads to the magnificent white sandy beach. The holiday home accommodates up to 7 people, and up to 2 dogs are also warmly welcome.

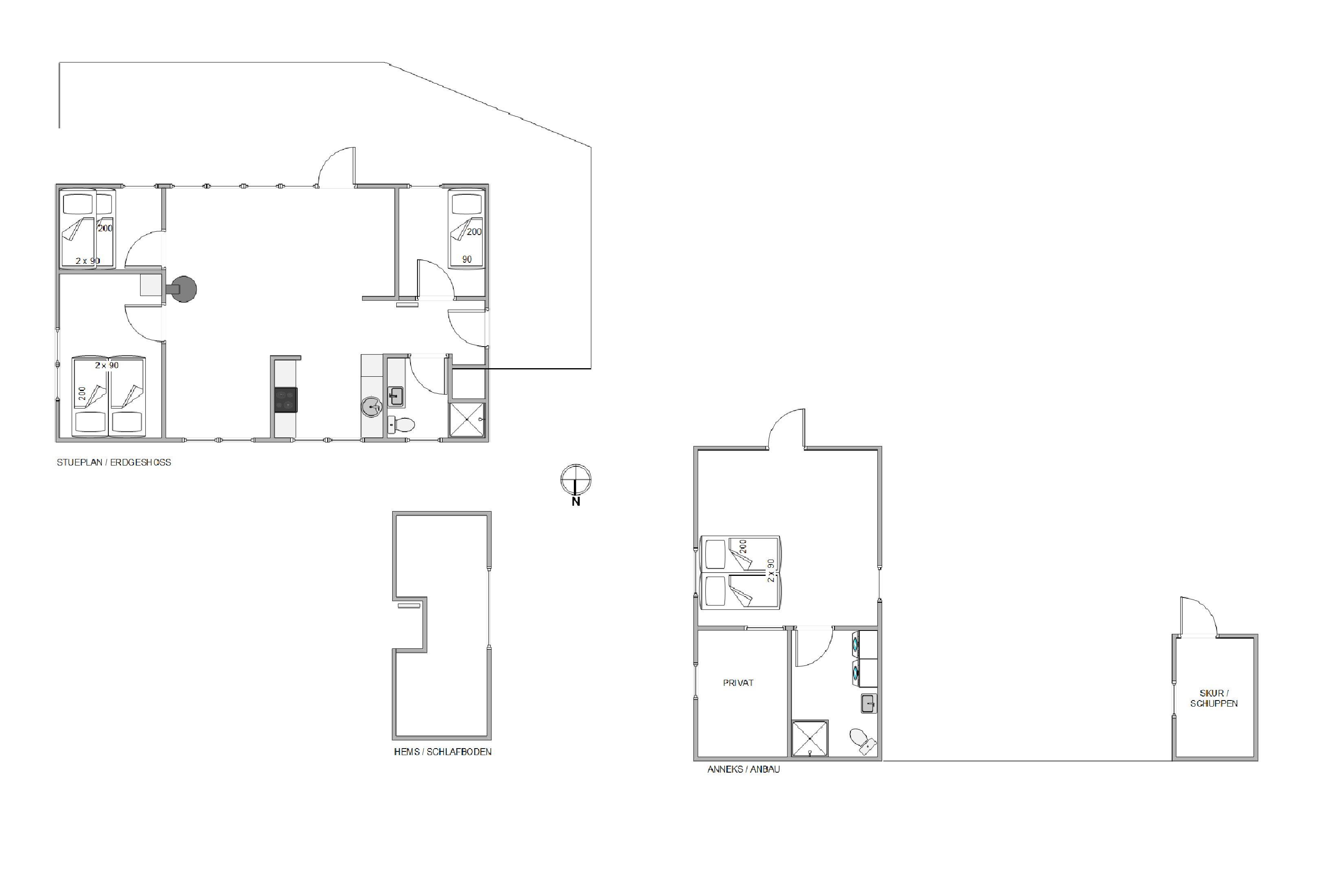
2 bathrooms and 4 bedrooms

The holiday home features a high, open-plan living and dining area with kitchen space, made bright and welcoming by the skylight window. The 64-square-metre holiday home includes a bathroom with underfloor heating and 3 bedrooms. During cooler weather, you can light the wood-burning stove and enjoy watching television or reading a good book by the crackling fire. Free internet connection is also provided.

An energy-efficient heat pump ensures a comfortable climate, whether you prefer the house warm or cool.

After an eventful holiday, everyone can retire to their bedrooms to recharge for the next day. The main house has 3 bedrooms: one with a double bed, one with bunk beds, and one with a single bed. The bathroom features underfloor heating.

The separate annex contains 1 bedroom with two single beds and a bathroom. Here too, underfloor heating ensures warm feet throughout your stay.

Dishwasher, washing machine and tumble dryer take care of daily household tasks, making your holiday as hassle-free as possible.

Enclosed terrace with gas barbecue

The terrace is fenced and equipped with garden furniture and sun loungers. The whole family can find a pleasant sunny spot here, though children will likely be more interested in the trampoline and swing. In the evening, you can prepare a delicious barbecue on the gas grill and enjoy the evening together in the fresh air.

Excellent central location in Blåvand

With the holiday address at Fyrvej 17, you're not far from Blåvand's centre for fresh morning rolls or daily shopping. Blåvand also offers many exciting boutiques and restaurants waiting for your visit.

The holiday home is just 500 metres from the North Sea beach with its white sands, perfect for swimming and walking.

7 nachten
Vanaf 924,-
Incl. schoonmaak

Prijzen en kalender

Duur
Aankomst
Vorige Volgende
  • april 2026
    madiwodovrzazo
    1412345
    156789101112
    1613141516171819
    1720212223242526
    1827282930
    19
  • mei 2026
    madiwodovrzazo
    18123
    1945678910
    2011121314151617
    2118192021222324
    2225262728293031
    23
   Kijk of het object beschikbaar is op de geselecteerde datum
Vrij
Bezet
   Aankomst mogelijk

Prijs

Periode
Aankomst
Vertrek
Duur
1 week
Personen
Tot 7 personen

Let op

Aankomst is niet geselecteerd.
Contract- en huurvoorwaarden

Indeling & inrichting

Ligging & omgeving

Locatie pin Kaart Denemarken

Klantenservice

Stel ons een vraag over dit object

Klik hier om ons een vraag over dit object te sturen.